欢迎来到筑巢家

您的位置:筑巢家 >学装修 >装修流程

现代时尚简约精致的家装设计,温馨舒适,休息的时候就想宅在家里

134人已浏览 时间 : 2021-06-16 16:39:56

[ 手机扫码 ]

导语:举报评论432…

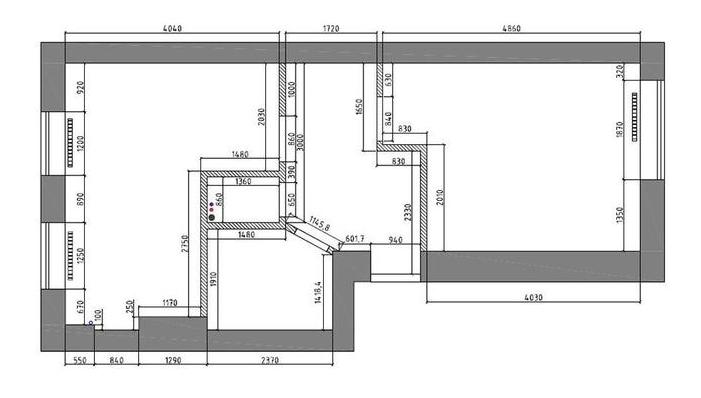
68㎡的小户型,现代时尚简约精致的家装设计,温馨舒适,休息的时候就想宅在家里,哪都不想去,感觉家居设计装修好,以后的日子都很省钱。

进门本来没有玄关的,餐边柜设计了一个侧面的鞋柜,结果就弄出来了一个迷你玄关空间,非常实用方便,整体还很美观。餐边柜的设计简约实用,整面墙的空间占满,还把冰箱融入其中,侧面玄关柜完美结合。柜子通体都是白色,台面也是白色石英石的,干净整洁美观大气。


厨房选用了长虹玻璃门,简约时尚,L型布局的厨房设计了高低台,洗切炒动线流畅,虽然不大但绝对实用方便,深灰色的模压柜门美观耐脏。
全屋选择了人字拼的实木地板,在家光脚踩在上面的感觉很舒服,客厅背景墙简单的乳胶漆墙壁,沙发背景墙做了照片墙的设计,为了凸显效果,特意在上面安装了三盏射灯,夜晚的时候特别有感觉。电视柜简单实用型,墨绿色沙发给人一种高贵气质,圆形茶几对于小空间来说更合适,不那么占地方,而且还更安全。小阳台铺设了黑白花砖,时尚美观,阳台柜里融入进了洗衣机,空间利用的很充分。旁边柜门到顶的收纳空间,用来放置大件物品很实用。
小次卧选择了绿色的背景墙,清新自然,黑色铁艺床简约时尚,没有定制衣柜,直接选择了一种组装的简易收纳柜,简单实用。


唯一的卫生间在主卧门口,属于两段式,干区特意墙壁铺贴了时尚美观的绿色花纹砖,很上档次甚至有点轻奢感。搭配金色边框的浴室镜,深色壁挂式浴室柜,美观大气。湿区用了长虹玻璃门,让干湿区的搭配更完美,湿区没有再做淋浴间,门后直接就是淋浴区,和阳台同款的花砖,墙壁白色瓷砖,视觉效果干净清爽。


主卧粉色背景墙,浪漫温馨,衣柜做了嵌入式的设计,柜门直接到顶,大气实用。吊灯很显奢华,提升主卧整体气质,房间虽小但气势不小。#夏日酷生活# #21天图文打卡挑战(第二期)# #寻找头条生活家#

举报

评论 43

头像

评论

查看全部 43 条评论

周立波:恩怨25年,背叛“大哥”关栋天的日子

周立波:恩怨25年,背叛“大哥”关栋天的日子

往事叉烧

1095评论

29天前

1948年,毛泽东经历了人生中最为惊险的刺杀,他究竟是咋脱险的?

元哥说历史

24评论

26天前

抽烟、喝酒和喝茶,哪种对身体伤害最大?医生告诉你真相

抽烟、喝酒和喝茶,哪种对身体伤害最大?医生告诉你真相

杨庆闲弹医迹江湖

131评论

9天前

朝鲜平壤涉外商店:对中国游客只收人民币,可买回国有哪些商品?

朝鲜平壤涉外商店:对中国游客只收人民币,可买回国有哪些商品?

张艺摄影

2030评论

2月前

溥仪的月薪仅有180元,毛主席托人送他两千,主席:他是皇帝嘛

历史详说官

7192评论

3月前

网红炒作无底线,马洪涛直播输给了小沈龙,价值上亿的庄园被拆

网红炒作无底线,马洪涛直播输给了小沈龙,价值上亿的庄园被拆

娱乐女将

7评论

2天前

三位航天员太空常驻90天,吃住该如何解决?揭秘中国空间站黑科技

宇宙v空间

4评论

2小时前

夏天多吃这些蔬菜,清热去火,含钙量比牛奶还高

夏天多吃这些蔬菜,清热去火,含钙量比牛奶还高

北青网

4评论

1天前

刺穿潜艇,敢和人类硬刚!从米粒般暴长一万倍,旗鱼是怎么做到的

大别山小农人

566评论

23小时前

苗苗这回真放得开,穿健美裤走机场不见赘肉,配2万4的包太洋气

苗苗这回真放得开,穿健美裤走机场不见赘肉,配2万4的包太洋气

时尚美妆妞

1评论

2天前

姐弟恋也有未来,陈妍希大陈晓4岁,穿短裤秀美腿,年龄差模糊

Ainee小屋

3评论

22小时前

富豪男友变一贫如洗?吴佩慈用4个孩子和近10年青春换来了什么?

富豪男友变一贫如洗?吴佩慈用4个孩子和近10年青春换来了什么?

独家影视

138评论

19小时前

45㎡公寓44岁姑娘一人居住,室内设计细节温馨,太治愈了

优讯家装

12评论

21小时前

1950年台湾统一战,中国集结了65万大军,又是谁阻止了收复台湾?

1950年台湾统一战,中国集结了65万大军,又是谁阻止了收复台湾?

战史纪

2评论

21天前

好温馨!霍启刚郭晶晶带儿女听音乐会 打扮低调气氛融洽

好温馨!霍启刚郭晶晶带儿女听音乐会 打扮低调气氛融洽

北青网

8评论

7小时前

刚刚看到这里,点击刷新


上一篇:时尚轻奢的家装风格,虽然还没有进软装,但大气奢华的气质已经初现了 下一篇:80㎡的精致纯白风格的家装设计,给人一种干净整洁舒适温馨的家居感受

相关推荐:

评论(共0条)


最新评论

免费装修设计