欢迎来到筑巢家

您的位置:筑巢家 >学装修 >装修流程

厉害了!这个2居室改造得比别人家3居室功能还多!

87人已浏览 时间 : 2023-05-17 16:09:02

[ 手机扫码 ]

导语:上一次我们详细扒过了冠军作品,而亚军作品也同样精彩!接下来小编就带着大家一起来回顾~这套案例来自设计师二毛,各自小小却充满元气,风风火火的性格再加上本身专业过硬,几乎所有接触过她的客户都赞不绝口。…

历时半月,

由U家工场与酷家乐联合推出的全景设计大赛

最终榜单终于出炉!

上一次我们详细扒过了冠军作品,

而亚军作品也同样精彩!

接下来小编就带着大家一起来回顾~

111

这套案例来自设计师二毛,各自小小却充满元气,风风火火的性格再加上本身专业过硬,几乎所有接触过她的客户都赞不绝口。

设计师档案111 

刘玲

昵称:二毛

射手座,擅长北欧、简约、简美等风格

这次她为一个三口之家设计了一个温馨的新家。男主人作为IT行业从业人员,对房屋设计上什么注重功能细节,而女主人作为教师则更重视家庭氛围和孩子的成长。这套房将用于家里小朋友上学常住,所以在设计上需更注重功能与环保。

111

基本信息

设计师:刘玲

风格:现代简约

楼盘:千禧河畔

面积:118

户型:三室两厅两卫

全包价:11W

111

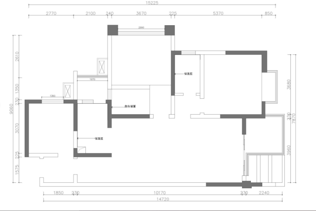
改造前

111

1、入户过道太长

2、冰箱放厨房,橱柜不够用

3、户型赠送面积多,部分空间需重新划分

4、安装中央空调外机位不够放外机

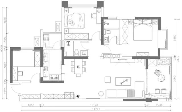
改造后

111

1、入户过道分区(玄关+收纳柜)

2、冰箱外移(嵌入订制柜内)

3、主卧儿童房的新改造

4、将中央空调外机放置在阳台一角,并进行隔音处理,上方仍保留为窗户(保留采光)

二毛在设计上首要考虑的就是增加了许多实用功能,充分考虑到户主使用要求的同时,在设计上也别出心裁。

111

客厅

配合中央空调的分区吊顶空间层次更加分明,木质家具更温馨,更柔软,更自然。

111

餐厅

餐厅大面积使用了木质家具,营造出更温馨,更柔和的氛围。

111

厨房

厨房采用L型橱柜,充分利用有限空间。

111

过道

通过定制柜体的高低层次,划分了不同的空间,凸显了空间的变化与过渡。

111

卧室

充分利用空间增加了许多收纳功能,同时采用了更加简洁明快的色调搭配。

111

黑板墙

“每一个宝宝都是天天小画家”,设计中为家里的小朋友设计了一面黑板墙,让他可以自由发挥奇思妙想。

上一篇:拒走冤枉路,装修施工你一定要知道的流程 下一篇:鸡肋空间也能改出新花样,他们的每间房都能当别人两间用!

相关推荐:

评论(共0条)


最新评论

免费装修设计