欢迎来到筑巢家

您的位置:筑巢家 >学装修 >装修流程

请设计师的钱不能省,我是说真的

105人已浏览 时间 : 2023-05-23 12:07:46

[ 手机扫码 ]

导语:当你打算装修时,第一件事一定是找灵感,保存参考图。各种网站,比如:花瓣、微博、housezz、ins、FB狂翻图,右键保存存了不知道几个G。事实上,那是因为,每个设计作品服务的一定是特定的对象,基于ta的面积、功…

 

当你打算装修时,第一件事一定是找灵感,保存参考图。各种网站,比如:花瓣、微博、housezz、ins、FB狂翻图,右键保存存了不知道几个G。

想象着自己未来的新家就跟图片一样,可以躺在软软的沙发上枕着抱枕撸着猫...

事实上,

搜集了很多图片参考,看过了许多貌美案例

却依旧装不好一套房。

那是因为,每个设计作品服务的一定是特定的对象,基于ta的面积、功能需求、色彩搭配、设计元素不见得能全盘套用于你的户型。

以下面两套案例为例,同样的楼盘户型面积,因居住者对空间使用诉求、审美喜好、整体预算的不同,加上分别是由两个不同设计师进行主案设计,使最终呈现出两种截然不同的风格。

轻美混搭

1111

设计师:飞飞

楼盘:娇子一号(成都)

面积:84.3㎡原户型

户型:A1 (3室2厅1厨1卫)

施工方式:半包

预算:半包5.4万

(含设计施工辅料及部分主材,其中门、地板、瓷砖、橱柜、卫浴洁具需业主自购。)

1111

 

户型解析

 

1111

户型缺陷:

  1. 三个卧房空间都小,不利使用;

  2. 厨房阳台空间较小,使用鸡肋

改造解析:

 

在设计上遵从“除非影响到功能使用度,

可不动就尽量不动”

 

  1. 两个卧房拆除墙体,扩大使用空间;

  2. 厨房拆除原始门窗,使厨房与生活阳台相连,除扩大厨房使用空间外,还可放置洗衣机及其他物品

1111

设计师飞飞在做这套设计时客厅采用常规布局,在硬装造型设计上,沙发背景墙美式线条点缀,搭配客餐厅顶部挂镜线做呼应;软装色彩选择两年大热的色系,卡其色/脏粉/水洗蓝;搭配细节上选择带有金属材质的分子灯、茶几腿、单人沙发桌腿、电视柜镶边等,简洁不简单

1111

客餐厅连通,拓展了客厅的使用空间,同时从动线考虑,从推拉门背后厨房出来就是餐桌,绕过餐桌直达客厅。

1111

由于开门即见客厅在风水上有一定禁忌,故设计师飞飞采用吧台做一定视线阻隔,不影响整体客餐厅采光,兼具实用性与美观度

1111

卧房过道相对狭长,在细节部分采用不占空间的装饰画做点缀,顶部加射灯营造温馨氛围。

简美工业

1111

设计师:艾武

楼盘:娇子一号(成都)

面积:84.3㎡原户型

户型:A1 (3室2厅1厨1卫)

施工方式:整装(全包)

预算:11万

(含设计、施工、主材)

1111

客户是媒体行业工作者,舒适度为首要考虑因素,在储物功能方面有明确需求。目前规划是一人居住,父母偶尔过来需保留一个卧房,希望能把衣帽间和书房结合。同时在设备上需要提前规划暖气片。

 

 

户型解析

 

1111

户型缺陷:

  1. 该户型开门正对电梯,是买房时忽略的地方;

  2. 厨房阳台空间较小,使用鸡肋,放了冰箱基本无法增加橱柜。

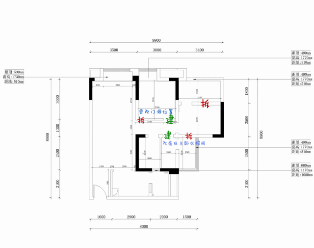
  3. 原始卧房三扇门正对,同时开门略显尴尬。

改造解析:

 

先满足核心功能需求,

能不动则不动,要动就要充分利用

 

  1. 三个卧房变成减少成两个,把与主卧相连的卧房改造成衣帽间,确保主卧空间足够,兼具睡觉+办公+储物(杂物+衣帽)功能

  2. 为确保空间平衡感,次卧门洞做了平移,错开正对卫生间门的尴尬

1111

设计师艾武在客厅采用常规布局,业主对舒适度和氛围仪式感的诉求很强,所以在灯光部分做了特殊考虑。客厅正中为主灯作为主要照明;当夜晚回家则可以只打开电视背景墙两侧壁灯或者开客餐厅吊顶筒灯,这样无论身处何处都能有不一样的舒适氛围。

1111

进门正对客厅且一开门就有可能面对电梯,所以在隔断材质考虑上,增加了相对复杂的造型线条。厨房空间过于局促借用客厅空间对开门冰箱,通过相近色系将整墙定制柜体与冰箱进行风格统一

1111

客厅用餐区主要通过吊灯营造一人食的仪式感。

1111

电视背景墙背后为次卧,于是设计师艾武改动了门洞位置让客户平时在房屋行走的动线更合理。避免狭长走廊后三扇门开门正对的尴尬。

我们之所以把家又称作“居心地”,是因为家的主角一定是居住在里面的人,目之所及都需要符合居住着的个性、喜好、生活习惯。而设计的价值在于能通过简短的沟通捕捉客户需求本质,通过专业的设计,引导居住者找到适合ta的生活方式。

上一篇:家里刚装修,有哪些值得推荐的高逼格家具和装饰品? 下一篇:爆改18年老房,二手也有春天

相关推荐:

评论(共0条)


最新评论

免费装修设计