欢迎来到筑巢家

您的位置:筑巢家 >学装修 >装修流程

陆肖TOD147m²法式中古家YYDS,在家就能拍出高级感大片!

204人已浏览 时间 : 2023-05-24 20:55:42

[ 手机扫码 ]

导语:…

1111

 

 

作为成都TOD的开篇之作,陆肖TOD麓鸣九天以有序的城市生态网络、完善的资源配套和公园生活环境为特色,把强大的慢行系统、高效的轨道交通、各城市功能空间进行一体化编织,最终形成了交通与生活紧密连接的“沉浸式”生活体验。

 

在这种沉浸式的背后,每个家庭的生活环境才是源动力,致美优家长期专注于陆肖TOD的户型研究和生活策划,为注重生活品质的顶尖生活家们规划理想新生活。

 

本期呈现,陆肖TOD147m²户型美好生活提案▼

 



 

 

楼盘:陆肖TOD

面积:147m²

户型:四室两厅两卫

类型:精装改造+全案软装

 

 

1111

1111

 

屋主Seki是一个游戏动画设计师,她有着超前的审美和设计品位,可以说是时髦界先锋。

 

1111

 

她的家,既要与众不同的高颜值,也要贴切生活方式的超舒适。在家居设计版块,她深受某书影响,对于装修的细节元素情有独钟:如弧形电视背景墙、无主灯设计、人字拼木地板、主卧套房双开门、客厅绿植角……她想要的,就是集合所爱在一个家里。

 

在设计上颇有想法的Seki,和大宅设计师小明老师一拍即合,历经多次需求共创和相互碰撞后,最终呈现出的家,不管在空间格局上还是生活习惯上,都让Seki非常满意,最重要的是这个法式中古混搭风的家,可以分分钟在家拍出高级感大片。

 

 

1111

 

陆肖TOD原始户型优势明显,但同时也存在需要设计来解决的户型痛点,聚焦在Seki比较关心的“厨房空间略小、阳台空间如何利用、主卧空间零碎”等三个核心问题上。

 

1111

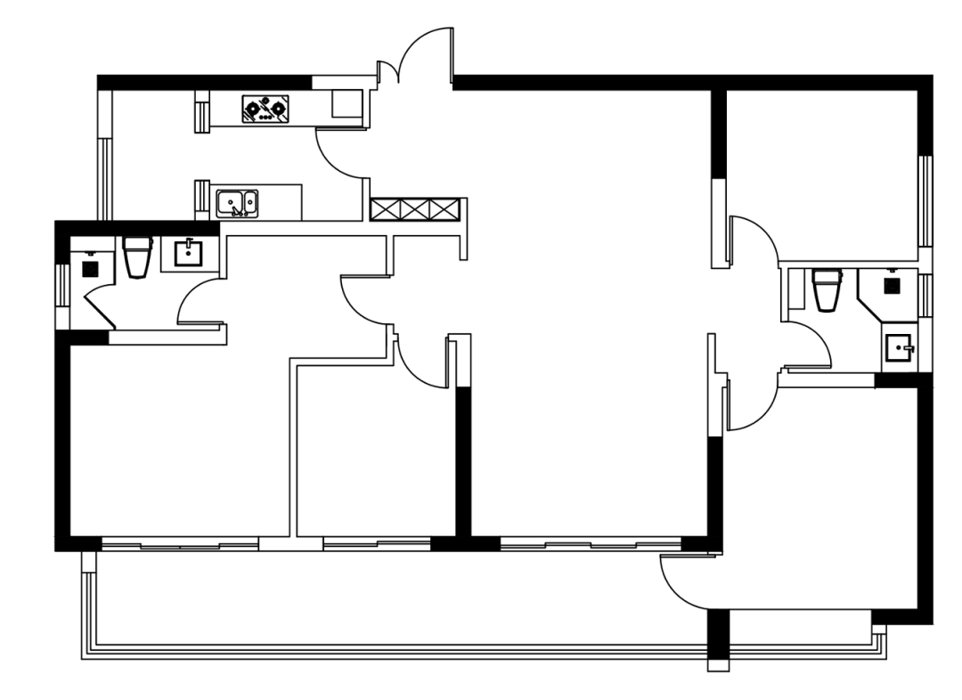
原始户型图▲

 

1111

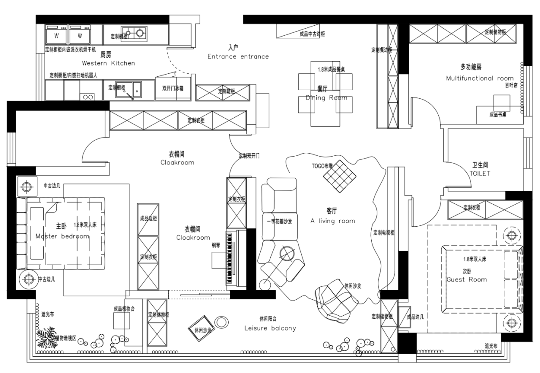
平面布局图▲

 

 

改造点:

❶.拆除客厅阳台隔断,把阳台纳入客厅,扩大客厅空间,增加采光;

❷.打通主卧及相临次卧,变身为“主卧+衣帽间+阳台”大套房;

❸.打通厨房及生活阳台,扩大厨房空间,增加整体采光;

❹.客厅阳台与主卧阳台进行隔断,增加主卧隐私性,打造阳光浴室。

 

 

小明老师基于屋主对全屋生活场景的需求规划,结合自身丰富的生活经验,通过打拆扩大空间、调整原始布局、局部改造增加风格元素等方式,把原有套四改成套三,最终实现了“厨房空间大大大、总统套房、阳光浴室、生活咖啡厅……”等多个生活场景。

 

1111

 

生活场景规划图(生活方式决定家的不同)

 

 

 

1111

 

入户,是回家的第一印象。

 

Seki来说,影响归家第一感觉的风格定位一定要精准,而原始精装房的鞋柜风格和后期想要的法式风有一定的差距,且原有鞋柜的收纳空间也较小,很难满足Seki对于次净衣、入户杂物、包包饰品等的收纳需求。

 

1111

1111

 

设计师在整体风格定调后,进行了原始鞋柜柜门调整,适应整体风格的搭配,同时在入户餐厅区域增加成品边柜,提升整体效果的同时,增加了入户的收纳功能,达到两全齐美的效果。

 

1111

 

陆肖TOD原始精装的厨房空间略小,且没有西厨功能。

 

设计师打通原有厨房和生活阳台,剔除原先的外墙漆,改成和厨房一样的墙砖,让整个厨房空间变大1/2,左右的地柜长度由原来的1m多变成3m多,操作空间变大,整体采光直透大厨房。变大后的厨房同时可以满足洗碗机、扫拖机器人、嵌入式电器等物品收纳,实现厨房的多功能性。

餐厅区域为满足法式中古风格,进行了顶面和墙面的微改调整,顶面拆除原来的石膏线条,墙面拆除原本的墙纸墙布,重新涂刷乳胶漆,顶墙都更换为具有法式元素的石膏线条。餐厅墙面正好打造成一个照片展示墙,可以根据屋主的需求进行时常更换,给人一种时换时新的感觉。

 

1111

 

餐厅选用了1.8m的弧形圆角长方餐桌,一旁的餐边柜选用有纹理的大理石匹配白色柜体,可实现西厨功能,满足Seki一家三口的日常用餐,也可满足三五朋友聚会时做做咖啡和西点。

 

 

1111

客厅拆除阳台隔断,把原有阳台地面和客厅地面做成一样的高度,整体客厅变大且采光增加。

 

1111

 

同时改变客厅的整体布局,电视墙和沙发的位置进行了调换,调换后主卧的法式双推门便成为沙发背后的造景,更加美观。

 

1111

 

调换后的电视墙做了简单的造型,拱形门洞造型与弧形电视背景墙相连接,上下增加灯带,下面用柜子定做了地台。Seki想要客厅显大没有要茶几,电视墙地台和纳入的阳台储物柜正好可以补充客厅的收纳需求。

 

1111

1111

 

客厅选用了黑色系的花瓣沙发,让整个空间有了重心和沉稳质感。客厅的屏风、挂画、植物元素和色系选择都是设计师精心挑选的,一方面体现出屋主的审美趣味,一方面成为了法式中古的点睛之笔,整体相互呼应又细节满满,可见设计师的用心之处。

 

1111

全屋套四改套三,拆除原来的墙后,阳光可以直接透入大主卧的每个角落,整体显得非常通透,实现了“主卧+衣帽间+阳台”的总统式大套房。

 

1111

 

双推门进入后,右手边是一字形大衣柜,增加了衣物收纳空间。而原来的衣帽间也不仅仅是一个衣帽间,它变成了一个可以承载钢琴、唱片机、香薰的音乐角,在音乐角和主卧之间做了一个边柜,增加主卧的隐私性,同时补充收纳功能。

 

这个音乐角也是Seki最喜欢的角落之一,每天下班回到家,走到音乐角随手打开黑胶唱片机放上喜欢的唱片,优雅的音乐会飘入房间的每个角落,一天的工作疲惫都将消失不见。或是坐下来弹弹喜欢的音乐,声音可以从主卧穿透整个房间和阳台,非常有家的氛围感。

 

1111

 

主卧进行了无主灯改造,顶面进行了6-8cm下沉,内嵌筒灯。拆除原始的主卧背景墙,在整面墙上做了方格的石膏线条,床品选用了深色系和客厅进行呼应,同时增加厚重质感。床头柜选用了精致的金属小边几,造型上显得更有趣。

 

1111

 

在这样的家里,每个角落都可以分分钟拍出大片,非常符合Seki想要的样子。

 

希望在城市打拼的你我,不管在外面是鲜衣怒马还是步履沉重,回到家中,都能卸掉防备,畅快呼吸,做回真实的自己,和家的样子一样美好。


上一篇:中建锦澜壹号230㎡跃层合集 | 覆盖三种家庭类型,难看承重柱秒变颜值核心区! 下一篇:精装房全屋换地板,只为打造下沉式玄关?新希望锦麟府这个空无一物的客厅我爱了!

相关推荐:

评论(共0条)


最新评论

免费装修设计