欢迎来到筑巢家

您的位置:筑巢家 >学装修 >装修流程

贝果的家:灰白与多彩的二重奏

139人已浏览 时间 : 2023-05-25 13:09:06

[ 手机扫码 ]

导语:CLICKTOGETTHEQUOTESINTRODUCTION楼盘名称:成都·阳光城未来悦房屋面积:127…

1111

CLICK TO GET THE QUOTES

点击获取报价

INTRODUCTION

年轻时我们离群索居,热爱孤独,家是一面与自我对话的镜子;后来我们立室成家,爱人、孩子、父母陪伴在侧,家成为我们互为依靠的居所。孩子的童言在晨曦响起,老人的絮叨伴随午醒,夜晚爱人耳鬓私语,这样的日常很平凡,却让属于家的幸福感越来越充盈。

楼盘名称 :成都 · 阳光城未来悦

房屋面积 :127㎡

房屋结构 :3室2厅2卫

房屋类型 :精装房

装修类型 :软装全案+硬装局改

装修预算 :添加小U微信ujia01详询

 

1111

家的动人之处,在于人所赋予它的情感。本案业主周先生从事于IT行业,妻子就职于儿童教育领域,家庭成员包括6岁的孩子和父母,是典型的三世同堂五口之家。因此,装修的重点将从三代人的生活习惯出发,照顾和满足每一个人的需求。

 

周先生的家共有127㎡,随着小孩渐渐长大,客厅活动空间便显得捉襟见肘,因此在沟通方案的前期,他向设计师提出需求:希望能调整客厅格局,让小孩和老人拥有较为宽阔的活动区域,同时增加居家收纳,更好满足五口之家的需要。

1111

1111

相比重视功能性的周先生,他的妻子李女士则把视线更多放在家居风格上,源于作为妈妈的细腻感知,她觉得之前的轻奢风过于硬朗,不太符合五口之家的亲子氛围。

 

“我理想中的三世同堂家居,应该是温暖蓬勃的,大大的窗户,可以看到一年四季,暖色的线条,能让人感受到满满爱意,家是爱的表达,希望我的孩子能在这样一个温馨的环境里长大。”

 

从毕业到留在成都打拼,周先生和李女士与这座城市结下十余年的缘分,心中自有热爱。成都是夫妻两人事业发展的起点,见证他们从年轻莽撞走向成熟,遇上所爱,结婚生子,经营生活,学会在小家里收获安宁与充实,摇摆的人生自此落地。

1111

1111

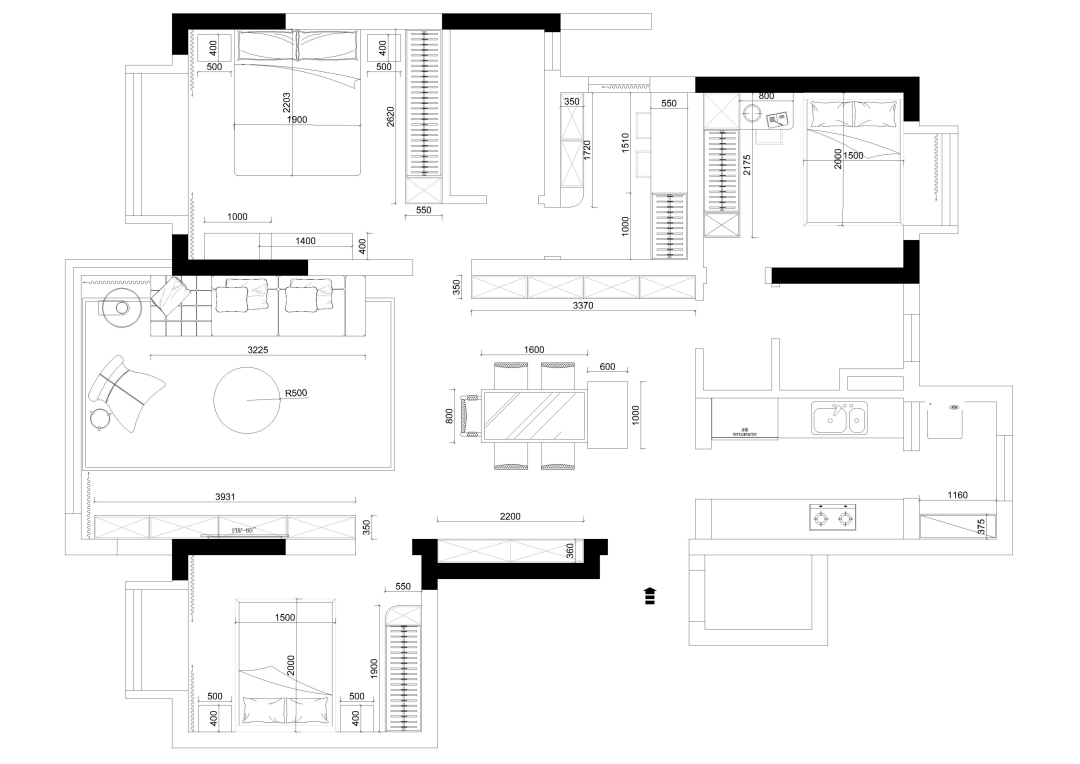
△原始户型

1111

△改造后户型图

确定装修方案的过程中,夫妻两人共同的诉求是尽量少拆改,避免过多去改变原有的硬装结构,因此设计师根据对周先生一家的需求把控,保证家居功能性与实用性的同时,调整装修为北欧简约风,选择以原木设计打造李女士理想家的温馨感,最终方案如下:

①拆除阳台推拉门,扩大客厅活动空间;

②封闭原始户型餐厅的门洞,打造餐边柜增加餐厅储物空间;

③原始书房空间改为衣帽间+书房多功能室。

1111

三世同堂的圆满,理想家的幸福来源。

1111

1111

 

 

 

 

Dining room and entrance

餐厅+玄关

增强收纳,实现理想家的功能实用性

1111

1111

五口之家的生活,收纳需求一定排首位,因此设计师分别在玄关及餐厅打造两面柜体。玄关柜直接延伸至天花板,极致化扩大收纳空间,并且采用与墙面契合的白色,营造玄关柜仿佛与墙面自成一体的效果,视觉上完成空间减负。

 

餐边柜是在封闭原始餐厅门洞的基础上增加出来的,原始门洞在视觉上略显错乱,因此设计师直接大刀阔斧改造为餐边柜,用原木材质打造,辅助大片白色北欧层次效果,给餐厅增加更多储物空间。

1111

1111

家具选择1.6米的成品餐桌+岛台组合搭配,餐桌按照五口之家配比,刚好满足一家需要,岛台可辅助餐桌做二次置物需要,平时也能根据季节放置不同的鲜花绿植,下班回家推开门就能看见一抹绿意舒展,或花香满屋,使人疲惫尽消。

 

 

 

 

The sitting room

客厅

打通阳台,实现开阔温馨的互动空间

1111

客厅往往承载着家庭互动、情感交流的作用,比起要将它打造的“令人眼前一亮”,遵循它原本的情感意义反而更重要。

 

依照男业主需求,设计师将原本阳台位置的推拉门做了拆除,使改造后客厅的光线更加明朗。同时新增收纳地柜,将柜体延伸至阳台,优化整体空间布局,实现了开阔的活动区域,方便孩子平时走动玩闹,一家人聚在一起也毫无拘束,更能享受自在的家庭生活。

1111

正中电视背景墙改动为弧型造型,用线条弱化白色墙面的单调,加上精心搭配的木质落地沙发,浅浅灰色呼应墙面,极具格调,辅以圆形单人沙发+茶几,配合不规则形地毯,整体色调和谐统一,兼顾美学与品质,打造出属于北欧式的简约意境。

 

这样的客厅,一眼看去,脑海中就不由得冒出柔和、舒适两个词。

1111

视觉上,整体色系采用大面积白色搭配原木色,用以中和原始硬装留下的轻奢硬朗感,给人营造出慵懒、质朴视觉效果,恰到好处去还原李女士脑海中对于理想文艺家的想象:

 

夜晚全家人坐在沙发上,电视里放着剧情,小孩在旁边独自玩耍,而窗外正是千家万户灯火通明时,这便是属于人间的烟火气。

 

 

 

The master bedroom

主卧

衣帽间+书房多功能室,创造私密空间

1111

1111

推开主卧房门,其间设计依旧沿用灰色与原木材质结合,看起来简单,但也暗藏许多设计巧思,比如在衣柜靠近出风口的位置增加半柜处理,弱化衣柜因大面积带来的视觉臃肿,多余空间还可放置挂画,增加艺术效果。

1111

1111

家具选用柔软饱满的布艺床,看起来特别具有安全感,配合夜晚的柔和灯光,便能为男女业主提供一个私密舒适的休息空间。

 

最大改动来自原始书房,设计师将其一分为二,改造为衣帽间+书房多功能室,优化主卧整体格局,层次更分明,同时满足周先生和李女士的不同需求。设计师自己最喜欢书房多功能室,空间高度为750mm,因为男业主爱好摄影,因此书桌墙可作为摄影作品展示区域,日常在这里处理工作事务,未来也可在此辅导孩子学习。

1111

虽然书房整体面积不大,但却脏腑俱全,书桌旁配置衣柜,可放置男业主衣物。书柜增设转角收纳架,辅助留白,减少整体空间的狭仄感,也可以放一些绿植,为书房增添几分绿意。同时还有小窗给予光线,点亮整个空间,处理工作也会变得心情愉悦起来,实用性满分。

 

 

 

Children room

儿童房

打造孩子专属空间

1111

小孩的房间总是要与大人不同,更多一点童趣与活泼,在保留北欧基础风格之下,增添一些可爱的装饰作为点缀。

 

考虑到孩子会有许多心爱的玩具物品,便在衣柜最外层增加展示格,用以孩子展列,里面靠近床头位置,则做成一个L型小书桌,满足孩子后期看书做作业的需求。

1111

床选择了一款趣味性较强的,符合孩子目前年龄段,后期可以根据孩子的需求再做更换。此外床的摆放位置是靠近榻榻米,两个空间连在一起,自然扩大了孩子的床上活动区域,嬉闹时便不会受限。

 

 

 

Old person room

老人房

简静宁人的休息空间

 

1111

客厅往往承载着家庭互动、情感交流的作用,比起比起小孩房的童趣,老人房则更重视舒适、便利与安全。考虑到业主父母睡觉时上下床不方便,因此设计师选用角度偏低的床,以方便起卧,可以预防老人不慎摔伤。

 

衣柜柜体在侧边专门做了单独的开放柜,一是考虑出风口,二是老人有经常穿外套的习惯,开放柜的设置可以方便他们挂衣取物,十分方便。

1111

1111

end

 

高级家的概念,不在于多么高深的设计技巧,而是设计本身忠于人的情感需求。一个五口之家的家居装修,虽然风格是简约,但家人之间那种情感却是热烈的,爱人作伴,小孩绕膝,父母健在,这才是理想家最大的幸福感来源。

上一篇:127㎡三世同堂之家,藏着平凡而动人的人间烟火气! 下一篇:129㎡中梁云玺台,母女二人的避风港

相关推荐:

评论(共0条)


最新评论

免费装修设计