153人已浏览 时间 : 2023-05-25 18:32:19
导语:家居设计是充满流动性的,它满足的不仅仅是功能需求、审美追求,更重要的是对居者生活习惯和日常舒居体验的洞察考量与尊重。「户型分析」…
家居设计是充满流动性的,它满足的不仅仅是功能需求、审美追求,更重要的是对居者生活习惯和日常舒居体验的洞察考量与尊重。
本期小U为大家带来的是诚投绿城凤起蘭庭230㎡户型的全新设计场景解读,对于好住实用又颜值在线的家,设计师会如何发挥自己的创想呢?
Analysis
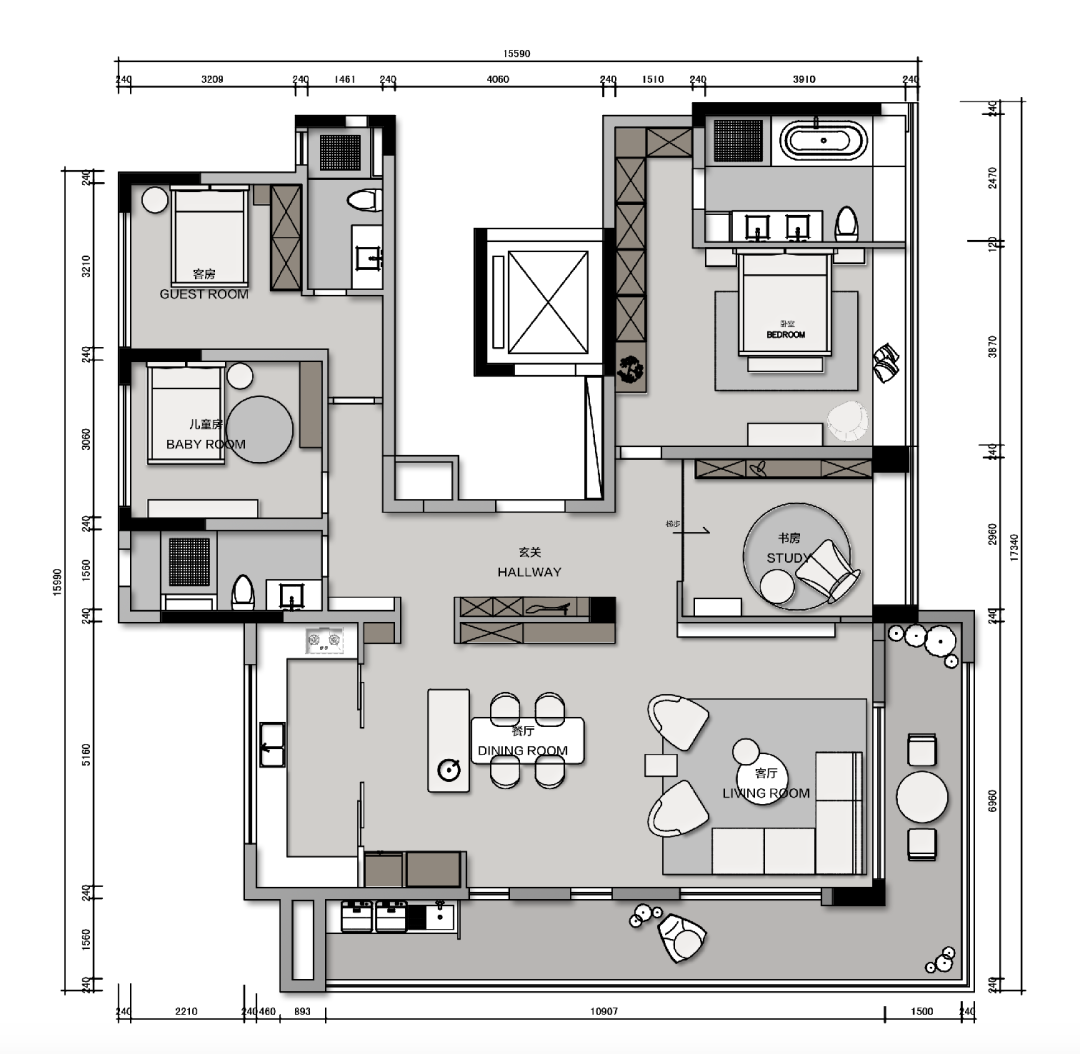
「户型分析」
楼盘名称:诚投绿城凤起蘭庭
房屋面积:230m²
房屋结构:4室2厅2卫
房屋类型:精装房
装修类型:硬装局改+软装全案
#优势&劣势
1.原始为精装房户型,动线相对合理,基础硬装条件较好无太大问题。
2.入户玄关采光差,影响视觉通透感。
3.主卧衣帽间墙体,浪费空间略显鸡肋,整体观感较差。
#拆改方案
1.拆除玄关柜及中间墙体,通过增添玻璃增加入户采光。
2.主卧拆除衣帽间的两堵墙,改为开放式的L型衣帽间,扩大空间视觉观感。
3.卧室及客厅背景墙更换,全屋风格配搭更加和谐。
Demand
「设计背景」
本案的常居者是一家三口,在接触屋主后,设计师邢瑜总结出他们希望二套房是宽敞明亮的。S先生想要一个安静独立的办公书房,而他的爱人则想拥有一个专属自己的化妆台和衣帽间,方便舒适是首先需要被满足的。
在此基础上设计师将空间功能与设计美学作为主要思考命题,为这个一家三口的栖身之所,带来了全新的可能性。
Design
「设计方案」
光的空间,让家秩序又松弛
光是具备魔力的规划要素之一,更是空间氛围的营造者。入户区域由于原始开发商打造了一处墙体隔断,导致玄关部分采光非常缺失。
设计师为引光入室,拆除了原始墙体和玄关柜,通过增加玻璃材质和收纳柜的组合形式,将这里打造成了一小处端景。装饰流线型艺术品,整体感官体验变得更加细腻入微。
设计方案一
设计方案二
步入玄关,映入眼帘的则是现代格调满满的客餐厅,L型观景大阳台为这个空间注入了更多自然光线,以黑色、棕色、灰色为主色调的中性色系运用,时尚大方,完美地契合了屋主的审美点。
为营造整个视觉氛围,设计师还选择用新的饰面墙板替换掉了原本层次单调的电视背景墙。
开放格的运用不仅可以缓解墙面的死板压抑,也可以给喜欢收藏工艺品的屋主预留出一个展示个性喜好的情感角落。
餐厅的设计主要以简洁便利为主,邢瑜根据屋主的饮食喜好将这里打造了一组餐桌+岛台的组合式操作台。多功能餐边柜设计便于藏酒,将烤箱、冰箱等家用电器嵌入其中,餐厅空间也被最大化地利用起来。
家内外的别样景致
全屋另一个颇为亮眼的设计,就是玄关旁的玻璃书房。S先生日常工作繁忙,加班较多,其爱人则是自由职业,两人在家中都需要一个可以独立办公的书房。
考虑到屋主不喜欢传统全封闭空间的设计,邢瑜干脆在此利用长虹玻璃做了一个屏风隔断,这样既能起到分割空间的作用,也让这一区域的视野变得更加宽敞。
搭配玻璃书架和跳色的休闲椅,整个空间便充满了现代纯粹的美感。
玻璃书房是室内的一道风景线,而超大的L型阳台则是室外的别样景致。
作为视野极佳的观景阳台,生态吊顶和木地板的材质运用,让阳台更加充满自然气息。靠墙的多功能收纳柜+清洗台盆的定制设计也让屋主拥有了规划适宜合理的家务空间。阅读小憩和打理家务乐趣在这里统统得以实现。

养眼卧室,拯救睡眠氛围感
打造一个从外表到内在都适宜睡眠的卧室,一定是至关重要的。
卧室的设计上同样沿用了轻奢现代的装修风格,设计师将原始背景墙替换为格栅板和木墙板组合形式,整体视觉层次变得更加丰富。
同时拆除了原本衣帽间两组阻隔墙体,将其改造为开放式设计完美地扩展了整个空间的视觉比。
床头对面定制梳妆台与飘窗台巧妙结合,搭配小斗柜使用,既不用担心收纳问题,也让女主人拥有了一个优雅干净的专属化妆区。
儿童房在设计规划上,目前采用了偏蓝调的清爽风格,对于这一空间来讲,邢瑜更加着重思考如何让空间去适应孩子未来不断成长的需求。
全屋软装包括床品、柜体家具、细节装饰设计等大部分均选择进行成品购买,方便日后小朋友长大依照自己的审美爱好去重新打造自己的自在天地。
无论是日日奔忙在写字楼间,还是偶尔宅家享受和家人的热络联结,我们相信点点滴滴的细节设计改变,都会给屋主带来发自内心的新体会与好心情。U家正将更多的目光聚焦于怎样让空间去满足业主的心理诉求,为客户打造一处真正好住的美好家。
最新评论
在线客服
官方微信
联系电话
返回顶部