161人已浏览 时间 : 2023-05-25 18:48:28
导语:
实用主义和精致主义能否合二为一?答案是肯定的,一个实用型空间,可以满足物质化的居住需求,而一个精致感家居,则可以带来视觉审美与精神舒展上的双重体验。
本期小U要介绍的设计案例,来自中梁云玺台一套一梯一户房型,设计师遵从三口之家生活习惯,将实用主义与高级审美结合的淋漓尽致,最终打造出一处品质感极强的空间。
Analysis
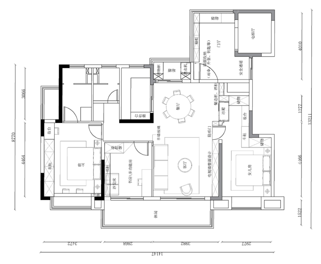
「户型分析」
楼盘名称:中梁云玺台
房屋面积:135㎡
房屋结构:3室2厅2卫
房屋类型:精装房
装修类型:硬装局改+软装全案
#优势&劣势
1.独立电梯厅户型,家居私密性高,但原始精装风格较死板,质感不强;
2.阳台开阔,但封窗影响效果,空气流通性不强;
3.收纳区域未足够利用,空间布局不合理,影响居住体验。
#拆改方案
1.拆改原始客厅储物间,一分为三,规划酒柜、餐边柜、冰箱区域;
2.改除书房墙面,中间开槽打造开放书房,视线更加通透,避免办公环境密闭;
3.拆除阳台封窗,打造开放环境,采光及视野更开阔
4.全屋墙面更换,视觉风格更加简约柔和。
Demand
「设计背景」
本案的居住者为一家三口,夫妻二人皆从事于银行工作,膝下共育一女,正是18岁年纪,因此一家三口首要的居住需求除收纳功能以外,更注重个人的空间私密。
男业主高先生偏好硬朗男性风,希望家以黑色系为主,妻子与女儿却认为家应“柔和舒适”,三人在前期的设计讨论上一度陷入僵持。后经过设计师田淑琴反复沟通,权衡三人喜好的同时,从专业的设计角度出发,采用米色和咖色等中性色调为设计方案,最终收获全家人的满意点头。
Design
「设计方案」
重视收纳,重视家的实用性
高先生一家三口都喜欢买买买,家的收纳功能便显得格外重要,正好房子是典型一梯一户型,多重空间便于打造最极致的功能规划。
因此,设计师选择将入户花园直接打造为收纳门厅,作为独立的门外玄关空间。
△户外玄关
入眼之内,左边墙面收纳用于展示装饰品及各种日常的外出携带物,右面是大面积鞋柜,提升居家的收纳性。左右规划不一,视觉上形成层次感,配合大面积米白色铺垫,百叶窗作搭配,整体便有简约雅致之风,尽展格调。
进门后视野直入餐厅,玄关原本是鞋柜+收纳间的搭配,但由于原始空间利用率不大,所以改造后直接拆除鞋柜,将整块区域一分为三,设置餐边柜+移动式酒柜+冰箱区域的多功能区,多出部分则作为侧边柜补充。
因为原始户型厨房空间较小,小型冰箱又无法满足生活需求,故将冰箱放置在此处,不仅节约厨房空间,又能将玄关的功能规划利用到极致,设计妙哉。
刚柔并济,打造极简格调空间
考虑到客厅布局的不同,设计师在客餐厅提供了多套设计方案供高先生选择,方案一保留原本的阳台推拉门,规划窗内外两重世界,客厅色系以黑为主;方案二则意在拆除阳台推拉门,给予客厅更宽阔的空间,色系以简约暖系为主;方案三则是在不做拆改的情况下通过软装规划和布局为高先生打造舒适居所。

△上图方案一,中间方案二,下图方案三
其中方案一的客厅设计,墙面采用大面积米色,满足两位女性居住者对于“柔和感家居”的要求,同时为避免墙面单调,设计师也在背景墙做透明收纳柜处理,巧妙的增加墙面层次感。
软装搭配则遵循男业主高先生的需求,简式的黑色沙发成为中心主题,辅以驼色茶几、沙发凳作为点缀,中和纯黑的硬朗,使整体空间有“刚柔并济”之意。
软装色系与电视墙的米白基调对比,一暗一明、一繁一简、一浓一淡,极具层次与格调。
方案一的设计手法不仅糅合了一家三口的风格偏好,更具有浓烈的现代轻奢质感,和方案二跟方案三相比,你会怎么选呢?
卧室居所,女性视觉下的睡眠角
除客厅外,高先生家的睡眠卧室是改动最大的区域,无论主卧或女儿卧室都带有强烈的女性化色彩。
主卧由于女业主提出收纳需求,又因原始户型空间难以满足,因此设计师在规划时便将床位置调换,将衣柜填满飘窗沿墙,边角充分利用,最大化调动空间实现,辅以侧边柜,打造卧室超强的收纳功能。
同时针对衣柜右侧所剩空间,设计师将之打造为一方梳妆台,正好迎合最右小窗,利用窗光、灯光打造氛围感,创造出专属于女性的精致与浪漫。
虽然家有书房,但因为业主的女儿刚刚成年,学习需求较高,考虑到业主夫妻偶尔也会处理工作,故设计师将主卧的自带飘窗改造为阳台书桌,搭配书架,方便工作使用。
女儿房也同样遵循主卧的实用原则。由于整体空间较小,所以初始便将玄关收纳间的部分空间归于女儿卧室,辅以门洞造型来区分里外空间,打造专属化妆区域,也因此延展出收纳功能。
米白墙面、木质地板、弧型门洞,三者搭配相宜,法式浪漫浑然天成,配合艺术感极强的装饰摆件,女性化风格尽显,优雅满分。
多功能书房,居家品质更上一层楼
书房的格局重视多功能打造,色系黑白配,给人以简单视感,取之环境低调,工作便更加放松自在的理念。
入门是三角形的斜切面侧边柜,辅以灯带打造夜间阅读氛围。落地式的柔软沙发可直接伸展,若家有来客,书房瞬间成为一间小卧室。平时看书学习或工作疲累后,便可成为一方舒适的休闲空间。
原本的书房为白墙,原始空间过于封闭,学习氛围十分逼仄,因此改造后拆除书房墙体,重新打造为开放式的玻璃墙面,客厅空间尽收眼底,视觉上使整个书房更加开阔。
搭配简易木质书桌,简单雅致,工作环境减负,学习看书累了,移动推拉门便可眼见另一方世界。
书房连接户外阳台与客厅,动线一体。
将阳台原有的封窗拆除,打造开放式环境,新鲜空气直达室内。若要闲情逸致,便在阳台放茶几小桌,清晨冥想,日落品茗,还原“坐看云卷云舒,静听花开花落”的文化意境。
高先生的家一梯一户,保留自家居住极大的自由度,也为我们缓缓展开一副品质化生活画面。
密集的钢铁森林之中,以设计极简勾勒,造化一方天地,与家人共度三餐四季,重拾内心的自然平静,这是高先生家的情感魅力。
最新评论
在线客服
官方微信
联系电话
返回顶部