202人已浏览 时间 : 2023-05-25 20:29:17
导语:
本期要介绍的设计案例,来自朗诗乐府137㎡户型,常住人口为张女士一家三口。如果用两个词语来形容他们的家那大概就是”阳光”和“自然“。
Design
「设计方案」
将阳光纳入房间里
“在我家,绿植和阳光,
是绝对不会缺少的东西。”
△超大全景落地玻璃窗
本次设计最令人瞩目的莫过于那面价值不菲的全景落地窗,业主张女士最大的爱好是插花、种植和享受阳光,对她而言,绿植和阳光是生命中绝对不可缺少的一部分。
对此全屋的设计基调都围绕着自然这个主题去打造。从绿色+奶油色系的选择,再到全屋定制柜体和绿植的提前规划摆放,这个家的每一处小心机,都被规划师肖肖所拿捏。
#客厅
横厅的设计让这个家的客餐厅视野极为开阔,为了让室外的美景能够“走入室内”,肖肖拆除原始推拉门并将阳台封窗处理,为客厅增添了更多使用面积。整面超大落地窗,让窗外的自然风光与屋内的众多绿植融为一体,哪怕是望着窗外发呆也别有一番风味。
#阳台
窗外的美景若是无人欣赏岂不太过可惜,对此肖肖将封窗后的阳台作为多功能空间处理,左侧区域划分为嵌入式储物柜,放置客厅杂物。右侧则放置一张舒适的躺椅,搭配地柜及绿植,与全屋形成了贯通的流畅感。
自然色系的完美融合
#餐厅
考虑到业主家常会有客人拜访,因此肖肖在餐桌旁设计了岛台,客人来了可以在这里小酌一杯,平日里也可以用来放置和整理刚买回家的鲜花。休息日还可以跟孩子一起包饺子烹饪。

客餐厅区域的硬装均选择了百搭的米色,为了让整体色调不至于太过单一,肖肖选择了业主喜欢的绿色点亮空间,就比如餐厅区域的草绿色嵌入式餐边柜和墨绿色的懒人沙发椅,大自然的色调与屋内的绿植相结合,营造温馨舒适的居住氛围。
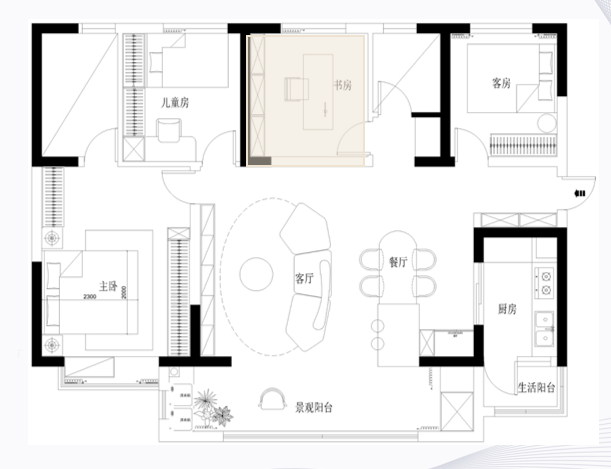
#书房
除去绿色以外,代表着大自然的木头原始色调也多次在这个家中出没,光是书房就选用了两种不同的木色进行配搭,泥土和木头的原生态色调贯穿整个书房,搭配屋内摆放的绿植,让居家办公也能随时感受大自然的气息。
打造舒适静区氛围
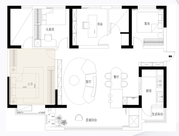
#主卧
主卧在色调上沿用全屋的米色与绿色系,更多的将视线聚焦于睡眠氛围及收纳的打造。考虑到张女士有较多的衣物收纳需求,肖肖利用床尾的空间,打造整面墙的收纳柜,侧边的空间则根据进门的动线,设计成开放格放置书籍和杂物。靠近主卫的空间同样也定制了到顶的收纳柜增加全屋储物空间。
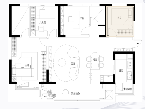
#儿童房&次卧

不算大的儿童房需要满足未来孩子10年的居住需求。儿童房床头的墙面被利用起来,整面收纳柜搭配开放格足以放下孩子的大部分物品。侧边再延伸出一个L型的书桌,满足未来孩子可能会在房间内储物、休憩、学习、玩耍等一系列的动线。
张女士的家,在喧闹的城市里显得格外静谧,宛若住进了大自然里。未来他们的生活,也将伴随着绿植和阳光展开。
Analysis
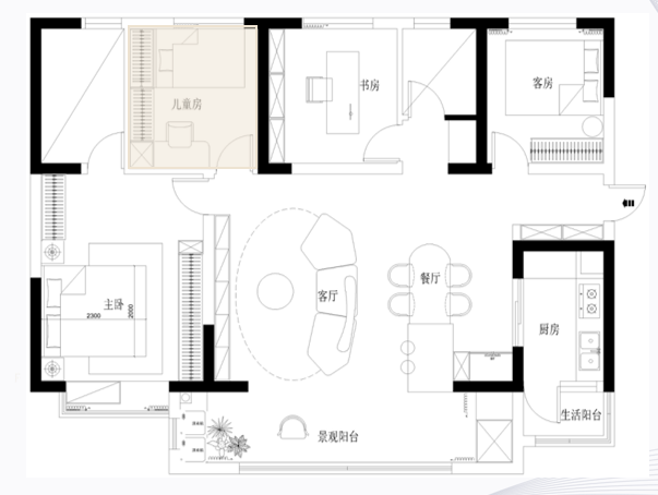
「户型分析」
楼盘名称:朗诗乐府
房屋面积:137㎡
房屋结构:4室2厅2卫
房屋类型:精装房
装修类型:硬装局改+软装全案
#拆改方案
原始户型分区较为合理,无需过多拆改。因此设计师仅将阳台封窗,空间纳入客餐厅内,增加视觉通透性。更多的通过软装布局和动线规划去为张女士打造理想家。
最新评论
在线客服
官方微信
联系电话
返回顶部