欢迎来到筑巢家

您的位置:筑巢家 >学装修 >装修流程

140㎡西樾锦宸,意式风外衣,诠释暖意三世同堂家!

177人已浏览 时间 : 2023-05-25 20:42:38

[ 手机扫码 ]

导语:「设计方案」业主夫妻对家的设计要求很高,尤其是客餐…

去掉色彩的复杂堆砌,还原家原本的线条。本期来自西樾锦宸的140㎡三世同堂之家,设计师利用空间与线条,实现视觉简化,打造出棱角分明的轻奢家居。

 

11111

Design

「设计方案」

 

 

11111

 

业主夫妻对家的设计要求很高,尤其是客餐厅区域。本案呈现之初,为了充分把握业主需求,设计师共展示出三套设计方案。

11111

11111

11111

△图片按上下顺序为方案一、二、三

 

三套方案设计风格迥异,业主最终放弃法式浪漫风的方案二和时尚摩登的方案三,敲定方案一。而方案一的呈现设计,客餐厅楚河分明,户型简洁而棱角分明,充满轻奢质感。

11111

#客厅

客厅的空间线条感是最吸睛之地。设计师特意在沙发墙打造局部氛围灯,以直线设计去配合原始户型的方正效果,视觉上呈现出简洁利落之美。

11111

11111

同时更换全屋背景墙,采用大面积米色装点空间,营造温馨视感,让软装有更多发挥空间。经典的棕色沙发,线条极简,辅以圆形茶几,品质满满。整个场景遵循“留白”,颇有一番意式风家居之美。

#餐厅

餐厅的设计基于实用与收纳需求出发。原始户型缺少餐边柜位置,所以后期设计师专门弥补这一需求,同时配置可移动餐桌+岛台,给予餐厅更多灵活性与功能操作性。

11111

11111

随处可见的大理石纹元素,点到即止的一株绿色植物,保证不破坏空间简约视感的同时,赋予场景层次及一丝绿意色彩,让餐厅瞬间充满生动韵味。

11111

没有人能拒绝这样的植物角落。比起客厅的简洁有序,阳台则是植物野蛮生长的天地。

 

大大的玻璃窗前,阳光肆意落满整座屋子,同样也给予窗前植物充足的光照,枝条抽芽繁密生长,成为整个家最具生命力的地方。

11111

11111

 

硬装改造上,设计师拆除了原本的阳台推拉门,瞬间释放逼仄的阳台空间,采光度蹭蹭上涨。并对阳台做了封窗处理,安装透明大玻璃,视野开阔,更起到安全防护效果,实现女业主的闲暇窗前放空的生活梦想。

11111

 

原始的平铺直叙的卧室空间,经过设计师改造后,不仅格局改变,睡眠私密性也因此提高。

 

#主卧

11111

主卧是卧室+衣帽间+卫生间的套房格局,睡眠区域较为开放,因此设计师选择在衣帽间与睡眠区之间打造衣柜阻挡,辅以侧边柜设计,增强卧室收纳的同时,也能营造更加私密的睡眠环境。

 

11111

卧室整体色调配合全屋风格,多采用饱和度低的简约颜色,如地垫、窗帘、床品等都以米咖色为主色,展示睡眠空间氛围质感。床尾空间还打造半面收纳柜,作为日常放置物品使用,或摆置艺术摆件,增加卧室的艺术气息。

#老人房&儿童房

11111

11111

 

老人房的改造遵循长辈的睡眠习惯,装饰多简单而素雅,避免杂乱,让长辈能够在一个安静舒适的睡眠空间里休憩。

 

儿童房则根据业主小孩的年龄作了一番改造,米奇式的床更呼应小孩的童真活泼,侧面打造衣柜,辅以侧边柜,可以放上孩子喜欢的手办、玩具等。最重要的是考虑到未来孩子的学习需求,利用窗边区域打造书柜和书桌,让孩子拥有一个人的学习空间。

 

11111

11111

11111

 

书房作为男业主的阵地,是一个集阅读、休闲和工作为一体的区域,重在设计简约,以及收纳充足。

 

11111

11111

书桌迎窗而置,自然采光极佳,平日工作时抬头便是窗外四季风景。

 

墙面任何角落也没放过,四面打造收纳柜+书柜,解决收纳需求,黑白色的搭配更赋予工作环境一种静谧之感,身临其中,便能得到全身心的沉浸式放松。

11111

11111

既要有家长里短的烟火气,也要有意境高级的艺术感,便是这套西樾锦宸户型的改造出发点,抛弃墨守成规的三世同堂家设计,把线条感做到极致,让五口之家也能与众不同,你心动了吗?

11111

Analysis

「户型分析」

 

 

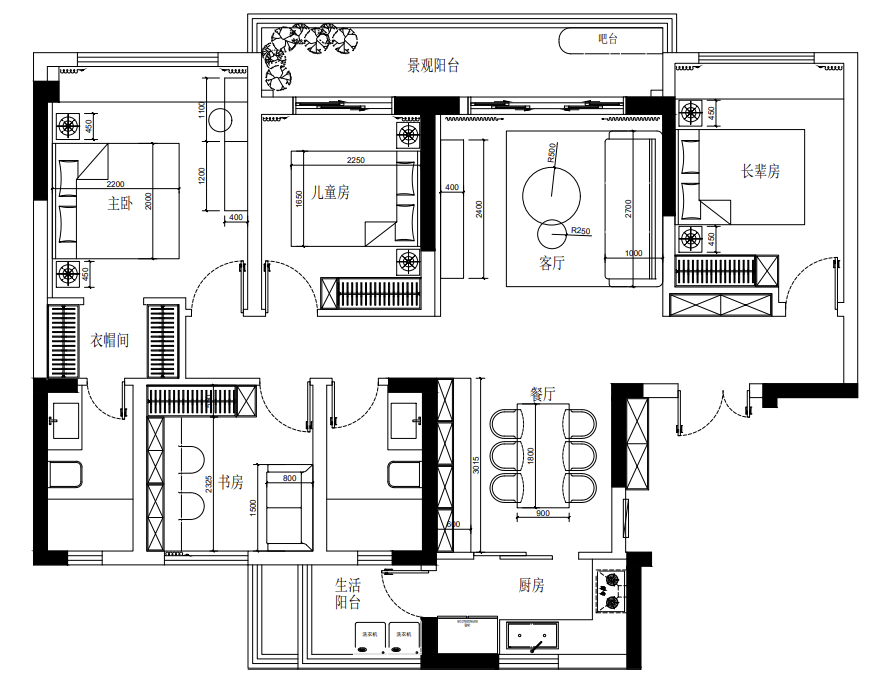
楼盘名称:西樾锦宸

建筑面积:140㎡

小区户型:4室2厅2卫

设计风格:现代轻奢

装修类型:硬装局改+软装全案

 

 

本案常住人口为五口之家,业主育有小孩,与父母同住,所以希望家可以同时兼具艺术气质与生活氛围。后期改造中,设计师利用原始格局打造空间线条感,并采用百搭米色赋予家温暖属性,最终获得业主肯定。

 

色系搭配&改造后户型

11111

11111

11111

拆改方案

①打造餐厅岛台+可移动餐桌设计,增加餐厅功能性;

②全屋背景墙更换,统一风格;

③拆除阳台推拉门,作封窗处理,延展阳台空间

④阳台作景观绿植布局,优化家居视觉氛围

上一篇:22W巧造美式复古家,成都这对文艺夫妻不仅有诗和远方,还有开放式琴房! 下一篇:成都 · 龙湖三千庭,130㎡居室以复古元素构建活力空间!

相关推荐:

评论(共0条)


最新评论

免费装修设计