99人已浏览 时间 : 2023-09-09 15:30:36
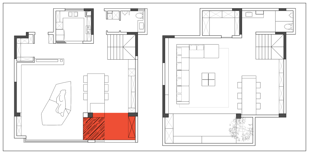
导语:△1层和负1层平面规划图红色为新建阳台及预留采光井年轻人的家能有多恣意任性?…
锦澜壹号 | 230㎡ | 四室两厅
精装全案设计

△ 1层和负1层平面规划图
红色为新建阳台及预留采光井
年轻人的家能有多恣意任性?
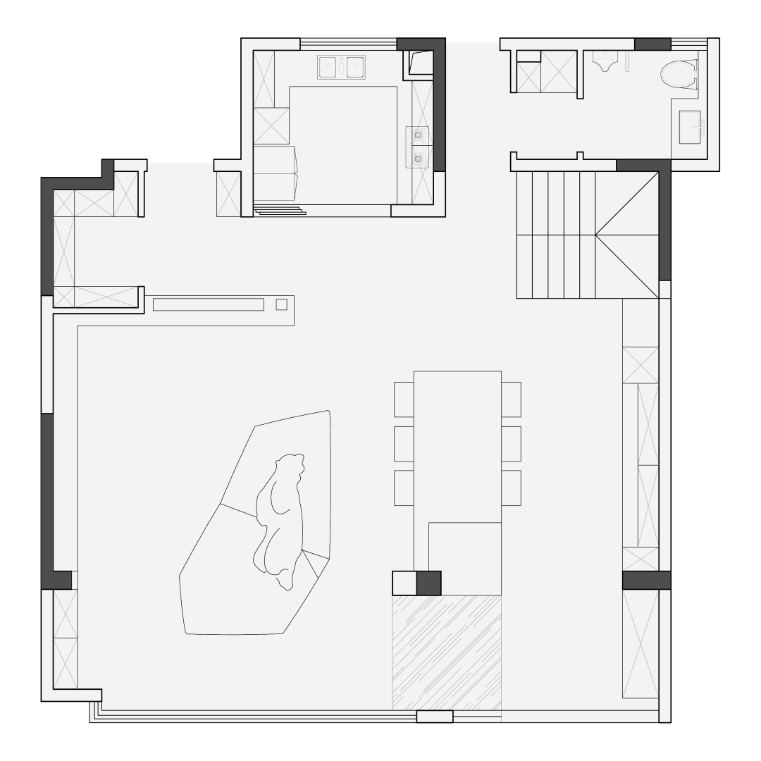
毛毛和大果家是特别有代表性的答案,230㎡三层楼的户型,硬是造出两个客厅,经典的LDK布局只能说是基础套路,地下一层才是真正的主战场。
全屋都以沉稳的木色和黑白为主调,低调质感下隐藏的是两个人自由无拘的精神能量场。
免费获取设计预案
一层的客厅可以说是毛毛和大果对外的礼貌社交厅,但即便是采用经典客餐厅布局,也暗藏不少精致亮点。
在极致的空间跨度下,设计师使用屋脊结构天花板,避免传统无主灯设计的寡淡,通过视觉重心转移弱化梁的存在,并完美实现隐形功能分区。
原始户型中入户门直对客厅,虽有电梯厅做缓冲,但还是有一眼看穿的感觉,我们通过L形定制柜解决了这一问题。
客厅更具围合式安全感,双面镂空柜隔而不断,人造小玄关同时解决收纳、隐私保护、空间分隔等功能。

△ 半围合式柜体
在软装搭配上,天然材质的纯色地毯与定制柜和墙板呼应,如同风衣的卡其色和大衣中的驼色,中性色彩于上乘材质的组合,是永不过时的经典。
低靠背白色沙发与白色茶几提亮趋向统一的底色,黑色单人椅带来视觉重点与色块上的平衡。
餐岛区是户型与功能间教科书般的结合,由于本层需要为负一层预留采光井,以及有无法拆除的梁和柱,设计师直接以柱为始,与梁找齐,延伸出岛台和长桌。
全定制餐岛可以做到同质同材同色,桌腿也使用同材质,以尽极简之能。
改水入岛台,拓展了餐岛区的「业务范围」,咖啡简餐,清洗切配,烘焙面点不用入厨房即可完成,开阔的空间和充足照明,也是美食拍摄提供天然布场。
全墙定制柜体是餐厅的绝佳背景板,蒸烤箱、直饮机和嵌入式冰箱都为餐岛区扩容,不锈钢开放格和灯带的组合是氛围利器,艺术餐厅徐徐展开。
有机会进入到负一层私人会客厅的,一定是毛毛和大果盖章认证的好友,这里是娱乐的主场。
曾兼职影评人的大果与同样热爱电影的毛毛视这个空间为「灵魂原点」,两人偶尔也会组织主题观影趴,但更多的时候是属于彼此的独享时刻。
与一楼「屋脊」不同,天花板最高线与沙发平行,刚好通过木质吊顶与石膏板间的高差隐藏幕布,投影仪放在背后的柜体展示架上,无需腾挪调整,即可快速进入观影状态。
只能看电影怎么配称为大人快乐屋,Homebar的加入让一切拥有了灵魂,无论是藏酒展示还是简单调酒,都能轻松驾驭。
微醺时刻,来一场girls talk或者梦幻舞曲,都是值得标记的人生乐趣。
墙内预埋钢管打造的悬浮楼梯,与跟随灯带,本身就是一种装饰。交错的地台和小雕塑,都为家庭酒吧增加了不少氛围,这里也可以作为临时座位使用,一举多得。
有酒当然不能没茶,靠近天井的部分设计师使用软膜天花板,与天井共同营造天然采光的呼吸感。
植物墙增添生机,天然石材与金属展示架都无惧日光直射,作为茶具展示非常合适。
大果和毛毛都偏爱天然材质的东西,她们说这更具有真实感,甚至她们特别要求在茶台旁增加真实的火炉,冬季围炉饮茶,氛围不要太安逸。
:
设计从来都是围绕人展开,无论是两个客厅还是几个什么别的空间,只要身处其中的人觉得好看好住,能提供精神能量,那么一切就是刚刚好的。
最新评论
在线客服
官方微信
联系电话
返回顶部