234人已浏览 时间 : 2023-09-09 17:08:04
导语:鹿溪樾府172㎡|三室两厅两卫|精装全案设计每个人小时候都梦想拥有属于自己的专属空间,不仅是自由玩耍,更重要的是能够与家…

鹿溪樾府
172㎡ | 三室两厅两卫 | 精装全案设计
每个人小时候都梦想拥有属于自己的专属空间,不仅是自由玩耍,更重要的是能够与家人一起共度时光,享受童真的随性。
在团队实践调研后发现,选择鹿溪樾府172户型的业主一般均处于人生的两个阶段,家庭形态主要围绕孩子的成长节点可分成0~6岁学龄前与7~18岁青少年期两种结构。
小朋友不断成长对公区的活动空间需求增加,同时需要独立的卧室来保证自己“小王国”的私密感;这期间家中老人也会偶尔来访帮忙照看小孩,有三代同堂的居住境况变化……
但172的三房原始户型方正空间相对宽敞,关键承重墙位于户型中间位置,可改拆范围不大,针对家庭的多样化真实需求和户型特点,我们的设计团队重点给出了两种落地解决方案。
免费获取设计预案
在专为孩子0~6岁的家庭设计的方案中,我们将重点放在客厅和儿童房上,分别给出了两种解决方案,以应对不同需求。
客厅是一家人自在游玩的天地,“游乐场”式的开放空间,既可以满足幼龄孩子爬行娱乐的需求,又能促进亲子间的陪伴交流营造适宜全家人放松的环境。
客厅平面规划
在主方案中,我们取消客厅茶几,让渡整个客厅空间打造游乐区,使用整墙书柜营造阅读氛围。
考虑到家具高度设计对孩子独立行动的塑造力,定制柜体的下层也可以特别设计适合小朋友身高的收纳空间,平时让孩子自行决定空间分配和使用方式,非常利于幼儿责任感与主动性的培养。
客厅背景墙效果示意
将阳台与客厅一体化思考规划,打造了超强收纳空间来容纳书籍、杂物及小朋友的玩具。
一旁搭配书桌还能解决家中空间不够规划书房的小遗憾,让整个公区的学习氛围更加浓厚。
阳台书桌效果示意
在备选客厅方案中,则以双面沙发作为客厅核心,将空间分为阅读、观影游玩、工作三大功能区,360°可坐沙发让低龄宝宝随时可以亲近玩耍。
备选客厅平面规划
在保留客厅基本功能的基础上去掉多余物品,获得一个玩乐与成长并存,更适合亲子关系互动的潜力空间~
双面沙发+书柜效果示意
餐厅尺度有限,设计师特别选择无吊柜的餐边柜作为收纳补充,减少满墙柜体的压迫感。
餐边柜效果示意
在0~6岁年龄阶段的孩子,基本还与父母同睡,在这套方案中,儿童房设计更多需要考虑的是让相对不变的空间拥有更多复合功能,来满足小朋友多阶段成长变化的使用需求。
儿童房平面规划
在主方案中,我们以蒙氏儿童房为蓝本,仅设置柜体以打造可灵活移动的自由场域,让空间能适配孩子成长从爬行探索到后期自主管理的多元化需求。
蒙氏儿童房效果示意
在孩子稍大后,也可以在原有空间上增加床垫,帮助孩子平稳过渡至分房阶段。
加床效果示意
另一种解决方案是通过全屋定制,设计为睡眠、娱乐、学习、收纳于一体的上下组合家具,同时实现地面玩耍和上床睡眠。分区满足孩子的成长需要,尽可能地利用设计来平衡空间与孩子的成长关系。
备选儿童房平面规划
定制儿童房效果示意
在为已进入分房睡阶段家庭设计的方案中,我们将重点放在了餐厅和儿童房上,在相同空间内呈现更多元化的解决方案。
独众相宜是客厅最自由动人的特点,不同于上版设计方案以开放式布局为主的思考点,这一次设计师将客厅打造成了一个视野开阔,围合感更强的社交空间。
客厅布局效果示意
全收纳系统让客厅趋于变成了一个既能保证强收纳功能又能闲适阅读的开放学习区,将生活功能完美复合。
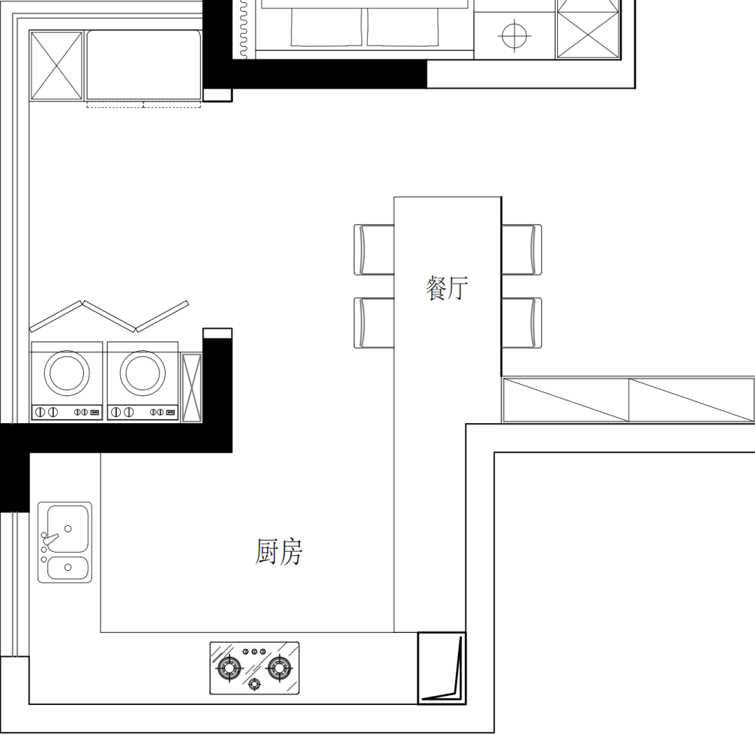
餐厅平面规划
餐厅区域设计师拆除了生活阳台和厨房的推拉门,整体规划出了一个开放便利的餐厨区,延伸的餐桌更适合一家人交互备餐享受烹饪美食的乐趣。
橱柜延伸餐桌效果示意
将冰箱置于阳台顺应了不少人的购物-收纳动线,新鲜买回的菜品在餐桌上进行集散,一部分囤货分流至冰箱,另一部分现吃食材放入厨房,动线依然流畅。
备选餐厅平面规划
对于不想冰箱太远的邻居,我们也给出了以冰箱为隔断的解题思路,通过折叠门与冰箱找平,形成统一视觉。
冰箱隔断效果示意
针对这一阶段的青少年,卧室采用了三面定制柜体将床、书桌和收纳进行组合处理,让有限空间发挥出了更大性能,搭配上孩子喜欢的色彩,便成就了小朋友可以自由玩乐的专属天地。

△ 两种儿童房布局方案
而不同尺寸与高度的收纳规划布局,在满足玩具、绘本等基础物件整理的同时还能培养孩子不断养成独立良好的整理习惯。
方案1·床头桌+衣柜组合效果示意
方案2·床边桌+床尾矮柜组合效果示意
合理设计的居住空间,是让人可以心安的地方。在家沉浸阅读、烹饪、观影……享受和爱人孩子静静陪伴的幸福,这便是一处真正可以好住的美好家。
最新评论
在线客服
官方微信
联系电话
返回顶部