235人已浏览 时间 : 2023-09-09 17:18:53
导语:困顿于周遭的繁琐细节,无论是自我思绪的拉扯,还是被外界拧得过紧的发条、轰鸣的城市噪音、不断传来的手机消息声……无…
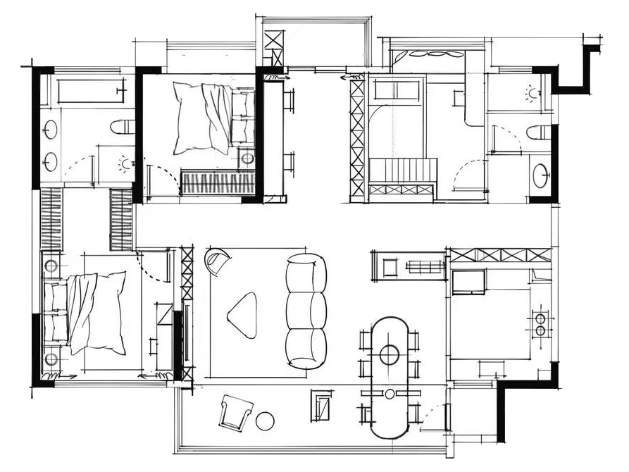
招商时代公园 | 177㎡ | 四室两厅两卫
精装房改造设计

困顿于周遭的繁琐细节,无论是自我思绪的拉扯,还是被外界拧得过紧的发条、轰鸣的城市噪音、不断传来的手机消息声……无数的干扰存在于当下的城市生活中,使我们无法找到内心的宁静。
对于这对95后的新婚夫妻来讲,与其跟风总会过时的设计潮流,TA们更想将新家变成一位成长陪伴的“老友”,将喝茶、收藏老物件、书法等爱好装进家中。
在过快的生活节奏中通过恬静中式氛围的营造找到属于自我的精神归属,重塑一个能够随时逃离喧嚣汲取能量养分的理想家。
免费获取设计预案
家居风格是内在性格与真实需求的体现。材料被正确得以使用,空间的内在外显身处最怡然的包裹之中,它传递出的舒适度才能渗透至居者内心,与人构建良好的外界联结。
入户进来,首先映入眼帘的就是黑金色的一副挂画,从端景装饰物的选择上设计师就在汲取中国传统文化中《易经》的配色灵感,来彰显第一视野的自然之美。
与玄关紧邻的餐区,屋主希望在有限的空间之中打造出功能丰富的餐边柜,餐岛台和一个随时可以休闲放松的小茶室。
设计师为满足这一系列需求,将餐区与玄关、阳台、客卧一起进行组合规划。将走廊次卧墙体内推40公分,嵌入了一个可以容纳咖啡机、饮水机的实用型餐边柜,既解决了公区收纳点位缺失的遗憾,也让日常从客厅和书房的饮用水动线变得更加流畅。
柜体对侧设计师考虑到面积的最大利用率,一反传统地将长2m的宝格丽岛台与餐桌拆分摆放,围绕厨房形成了一个烹饪与就餐无缝衔接的一体化空间。
超长的操作岛台可以充分满足这对夫妻工作日繁忙时简易用餐的需求,而平时在这里自制甜点、招待亲友来一顿自助小火锅或是夜幕低垂享受二人小酌的独处时光都非常惬意。
依据中式建筑框景如画的设计感,从岛台抬头看过去便是餐区设计的另一绝妙之处。如诗意屏风般的花纹定制隔断将阳台与餐区分格出了别有洞天的两个场所。
一面是餐食烟火的热络感,一面则是茶香气宁静致远的避世感。
简约自然的茶杯展示架、复古味儿极浓的小斗柜,具有世外高人气息的摇椅……两种生活的虚实交织让这一方天地幻化出了“犹抱琵琶半遮面”的意蕴风趣。
将男主人烹茶品茗和女主人研墨习字的爱好,在居家场景中一个不落的巧妙融合。
进入客厅空间,骨骼线造型与少量奢石将整个形态结构衬托的大胆又吸睛,这种处理手法在做空间分割提升视觉格调的同时,同时也解决了一部分客厅收纳需求。
自然古朴的木质背景搭配奶白色松软沙发和中式单椅融合的恰到好处,让客厅同样延续着自在写意的韵味。
坐下来的瞬间就能让人卸去室外的疲惫不安,回归到身心最适宜的活力状态。
此外,阳台的吊顶也暗藏了小巧思。斜面造型搭配木质元素让主视觉更完整。
地台区为未来屋主是有小孩提前考虑的成长玩耍区,目前仅用一把单椅做装饰,日后在这里铺上一块软垫,一家人晒晒太阳看看窗外的风景就是最解压的时刻。
“中式”并非像大众想象的那样古板。“新中式”在这个家中将传统与现代家居元素相结合,通过对立质感碰撞,开拓着新颖、不拘一格的气质。
主卧空间主卧空间可以找到很多的眼熟元素。和屏风花纹一致的墙纸、始终贯穿全屋的骨骼线,全案设计把整体效果拿捏的非常到位。
床尾柜、床头柜、背景墙、均采用了格栅造型,无论是单个空间、还是全屋空间都保持了高度的统一,而边几+吊柜替代成品床头柜进入空间的做法,也让这里更具轻盈感。
屋主二人恋爱时喜欢去咖啡厅,为将这份回忆中的温暖同样复刻进家中,设计师将书房的门头造型做成了咖啡厅的形式,并用木饰面将整个墙面进行包裹与餐边柜进行和谐过渡。
二人平时淘来的挂画和壁灯还被当作咖啡厅门牌使用~小窗设计模拟的出餐台,斜面造型刚好遮住了空间内的电脑屏幕,让隐私性和安全感均有保障。
另外书房内部,足够双人使用的台面搭配满墙的洞洞板,与电视墙相呼应的书柜,竖板和层板突出不仅放大了柜立面的整体性,还扩大了整个空间的视觉效果。
从阳台看过去,窗口与门洞好像女主人相机里的取景框,将每一帧的生活与美好都定格下来。
中式设计的自然之美,让每颗在城市流浪的心都能找到一片诗意的栖居地,我们始终相信家的治愈力除了设计上的构思,更在于屋主对家长此以往的点滴热爱。
最新评论
在线客服
官方微信
联系电话
返回顶部