101人已浏览 时间 : 2023-09-13 11:52:30
导语:Dietandeducationareequallyimportant,andcanteensareplacestocultivatestudents'tasteandhealth.…
"饮食与教育同样重要,食堂是培养学生品味和健康的场所。"
Diet and education are equally important, and canteens are places to cultivate students' taste and health.
- 罗伯特·奥普利

对于许多学生而言,与同学和朋友围坐一桌,品尝美食、探讨问题,是大学生活中最平凡而珍贵的时刻。而这些大学食堂设计的精华,被誉为:不仅是校园,更像现代社会餐厅。
For many students, sitting around a table with classmates and friends, eating food and discussing problems is one of the most mundane and precious moments of university life. And the essence of these university cafeteria design is known as: not only the campus, but also like the modern society restaurant.
高校食堂装修设计是学校发展中不可忽视的重要环节。学生们的健康饮食需求与多样化口味的追求,给承包学校食堂的餐饮管理企业带来了痛点和核心需求。一方面,他们需要提供丰富多样、安全卫生、具有吸引力的用餐环境,以满足学生们对美食的渴望;另一方面,他们要求高效的食堂管理和精细化的服务。
The decoration design of college dining hall is an important link that cannot be ignored in the development of college. Students' demand for healthy diet and the pursuit of diversified tastes have brought pain points and core needs to the catering management enterprises that contract school canteens. On the one hand, they need to provide a diverse, safe and attractive dining environment to satisfy students' hunger for food. On the other hand, they demand efficient canteen management and refined service.
校园食堂是功能性、人文性、生态性和艺术性的和谐统一,应为学生传达一种质朴、开放、包容和以人为本的社会价值观。学生食堂应该超越就餐这个最基本的功能,拓展为集休息、交流、休闲为一体的社区化空间,以赋予生活区更多的意义和影响力。
Campus dining hall is a harmonious unity of functionality, humanity, ecology and artistry, and should convey a simple, open, inclusive and people-oriented social values to students. The student canteen should go beyond the most basic function of dining, and expand into a community space integrating rest, communication and leisure, so as to give more meaning and influence to the livingarea.
每一口美食都是幸福的味道,将孤独化为米面肉蔬,将美食与爱装进心怀。
Every bite of delicious food is the taste of happiness, will be lonely into rice, noodles, meat and vegetables, food and love into the heart.
直跑楼梯,节节向上、步步登高。在用餐之余,学生们会自然而然地在楼梯上聊天、宣传、招新,形成一个活跃的富有亲和力的社交场。通透的柱廊空间和盘旋的楼梯空间能让人看清在食堂内发生的各种日常活动,有利于学生们沟通合作能力的锻炼和开放创新精神的培养。
Run straight up the stairs, up and up. In the spare time, students will naturally chat on the stairs, publicize, recruit new, forming an active and friendly social field. The transparent colonnade space and spiral staircase space can make people see the various daily activities in the canteen, which is conducive to the training of students' communication and cooperation ability and the cultivation of open and innovative spirit.
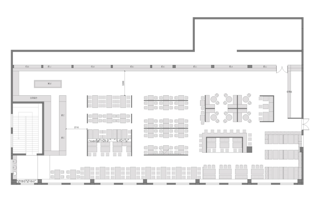
平面布置图
项目信息项目名称:北京----某大学食堂
设计团队:晶晶设计组
项目类型:餐饮设计
项目地址:北京朝阳区
撰文:晶晶
最新评论
在线客服
官方微信
联系电话
返回顶部