欢迎来到筑巢家

您的位置:筑巢家 >学装修 >装修流程

烤肉店装修,谈情怀烤肉---- 京派烤肉

129人已浏览 时间 : 2023-09-13 14:20:35

[ 手机扫码 ]

导语:VOL.01谈情怀烤肉京派烤肉Thedesignoftherotisseriehasalwaysbeena…

前言

KEJIAN&SKUN



“深夜烤肉”在城市中并不少见,多藏于巷尾路边,灯火阑珊处城市重压下一切能让人欢畅的,愉悦的成为我们幸福的子弹,对让人这无法喘息的生活开枪。这一切,也许只需要一顿烤肉!随着年轻消费人群的崛起,餐厅不再只是满足饱腹的单一功能,现在烤肉店装修设计变的是越来越注重运用适应时代潮流的新理念。



VOL.01

谈情怀烤肉 京派烤肉

TQHKR & JTG DESIGN

烤肉店铺的设计一直是吸引年轻客户群体的重要因素。在设计上,需要紧跟时代潮流,追求简约、大气、有烟火气的氛围,同时不能忽视降低预算的需求。

The design of the rotisserie has always been an important factor in attracting young customers. In terms of design, it is necessary to keep up with the trend of the times, pursue a simple, atmospheric, pyrotechnic atmosphere, and at the same time cannot ignore the need to reduce the budget。

在店铺的装修和摆放上,要考虑到烤肉店铺的特点和客户的需求。一些时尚的元素和潮流玩偶形客营造出时尚潮流的氛围。

In the decoration and placement of the store, it is necessary to take into account the characteristics of the barbecue restaurant and the needs of customers. Some fashion elements and trendy doll shapers create a trendy atmosphere.

在网红经济的带动下,网红元素也是可以考虑的。在空间的设计上,可以添加一些符合年轻群体口味的元素,譬如璀璨的LED灯、可爱的装饰品等等。同时,引入一些特色的设计元素和场景,让店铺成为特别的拍照打卡地,可以为店铺吸引更多的客人和关注度。

Driven by the Internet celebrity economy, the Internet celebrity element can also be considered. In the design of the space, you can add some elements that meet the tastes of young people, such as bright LED lights, cute decorations and so on. At the same time, the introduction of some characteristic design elements and scenes makes the store a special photo spot, which can attract more customers and attention for the store.

一家烤肉店铺的设计需要综合考虑到时尚、经济实惠、年轻化、感官刺激、网红元素、特色服务等多方面的因素,在这些方面取得平衡,才能吸引更多目光,成功地打造一个独具特色的店铺。

The design of a barbecue restaurant needs to take into account many factors such as fashion, affordability, youthfulness, sensory stimulation, Internet celebrity elements, and special services, and strike a balance between these aspects in order to attract more attention and successfully create a unique store.

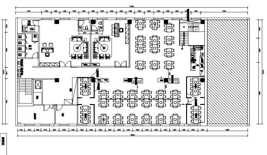
VOL.02

平面布局

VOL.03

项目概括

项目地点:北京西城区

项目面积:600㎡

主要材料:水泥艺术漆 镜面不锈钢 水磨石 

设计团队:晶晶设计组

平 面 视觉识别系统

空 间 原创空间设计

孵 化 全案策划品牌

实 施 整体解决方案

上一篇:尚沐影院足道装修设计-释然|静怡|活力 下一篇:湘十三 ----北京湘菜小馆装修设计

相关推荐:

评论(共0条)


最新评论

免费装修设计