97人已浏览 时间 : 2023-10-07 16:44:04
导语:左右滑动查看装修前后平面图(红色为新建/拆除墙体)改善型住房,顾名思义是改善和提升生…
西派融城 | 179㎡ | 四室两厅
精装房全案设计


左右滑动查看装修前后平面图
(红色为新建/拆除墙体)
改善型住房,顾名思义是改善和提升生活质量的住房,而非一味加大面积却忽略格局。
西派融城179户型就是非常典型的「大而无用」,客餐厅空间完全分离,餐厅开间不足3米,连餐边柜都塞不下,更不必考虑西厨、岛台等等真正提高生活质量的拓展功能了。
屋主夫妻都是设计工作者,常年忙于工作,回家也需要加班,父母偶尔来陪同居住,所以新家需要顾全两代人的生活需求。
设计师通过简单的户型重构,在保留四室的同时,为餐厅「打开格局」。换个视角,会获得真正的改善和意想不到的精彩。
免费获取设计预案
179户型的玄关是客餐厅的过渡和纽带,看惯了横厅的开阔,就总觉得客餐厅得在一起才方便,仔细想来未必一定要捆绑营业,独自美丽也是不错的选择。
我们将入户门两侧的墙面拉通进行收纳规划,进门的墙壁不必承担收纳功能,就有了足够的「风花雪月」空间。
本案的玄关墙面更像是传统宅院中的回壁,是独属于一家人的归家仪式,红色框架将中式写意与留白表达得淋漓尽致。
客厅主要预留给父母使用,延续了玄关的写意与留白,以色块勾勒松弛的休闲空间。
白色悬空电视墙,通过巧妙的板材切割方式,避免了大色块的枯燥。左侧使用「它山之石」作为造景,右侧则通过悬空石材将客厅与阳台贯通连接,以达到视觉上的平衡和空间整体性。
沙发造型墙通过隐形门隐藏次卧入口,增加造型连贯性,在阳台转角处使用弧形板材进行过渡,与沙发弧度契合,造型间有一丝心照不宣的默契。
深灰色岩石沙发与带有莫比乌斯意味的茶几组合,呼应电视,成为整个空间的重色。
加之与玄关色调呼应的橙红艺术单椅,再次强调主色调,将现代艺术气息拉满。
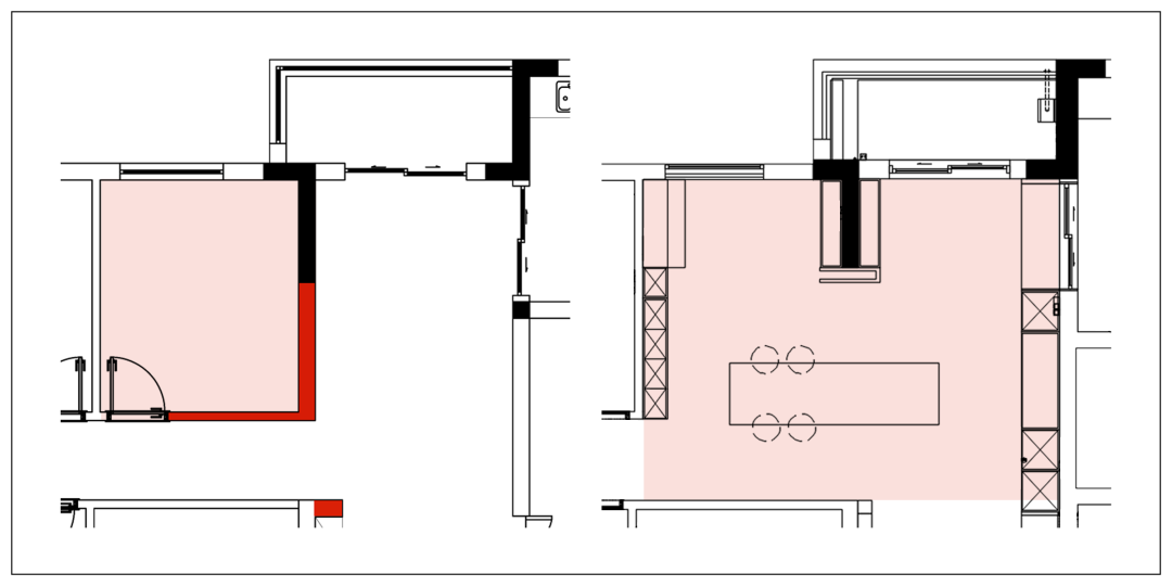
餐厅是最「有违常规」也最令人心动的空间。
原始餐厅的开间仅有2.86米宽,餐桌+餐边柜的组合太过拥挤。我们将一旁的次卧打开,利用原始过道和次卧的一部分空间,打通作为餐厅,可以轻松放置3米长桌。
餐厅改造前后平面图
根据餐桌方形制作原木吊灯和隐形轨道灯,进一步增强纵向视觉拉伸,让空间更显整体和开敞。
靠近厨房一侧顺势设置餐边柜、零食柜和西厨空间,蒸烤箱和小家电都能轻松容纳,动线和功能都更为合理,真正提升生活质量。
餐边柜完整视图
对侧衔接全墙收纳柜和书桌,并保留原始过道白墙作为投影幕布,实现「边吃饭边看电视」的理想场景。
餐桌,是中国人情感沟通的重要场景。全家人共追一部剧,就餐时与爸爸喝一杯酒,聊聊今天发生的新闻和趣事,是藏在日常生活中治愈力量。
在餐桌旁,我们倚靠承重墙设置了双面收纳柜,并利用24墙体和两个柜体的宽度隐藏了一扇折叠门,给空间留有更多可能性。
结构展示
折叠门打开时,这里属于公区餐厅,是开放书房。折叠门关闭时,打开桌下的折叠床,这里也是朋友临时留宿的小客房。
当代年轻人的父母也已经到了临近退休的年级,对于子女的依赖也越来越多,更开放兼容的空间可以给予父母更多陪伴。
拆掉一间房,获得了餐厅、西厨、书房和客卧四大功能,是设计师基于原始户型和屋主生活方式的巧思,也是对屋主和其父母关系的考量。
最新评论
在线客服
官方微信
联系电话
返回顶部