149人已浏览 时间 : 2023-10-07 17:07:03
导语:绿城诚园186㎡|精装房全案|4室2厅3卫❷"°客厅…
绿城诚园
186㎡ | 精装房全案 | 4室2厅3卫
❶"
本期的屋主是一对偶像剧般的梦幻组合——机长与空姐,两人育有幼儿园萌妹一枚。由于俩人工作性质,都是比较忙碌的,所以很在意居家生活品质和全家人在公区的互动和陪伴。
在云端的日子里,他们把旅人送进好风景,将游子带回故乡。在家的日子里,他们珍惜每一刻的陪伴与家人的团圆。
获取免费设计预案
❷"
°客厅
诚园三期186户型是特别典型的横厅+餐厅组合,超7米的景观阳台,让客厅除了沙发+电视的经典组合外,还留有灵活的X空间。
对于重视家庭生活与陪伴互动的屋主一家来说,这个空间的设计尤为重要。
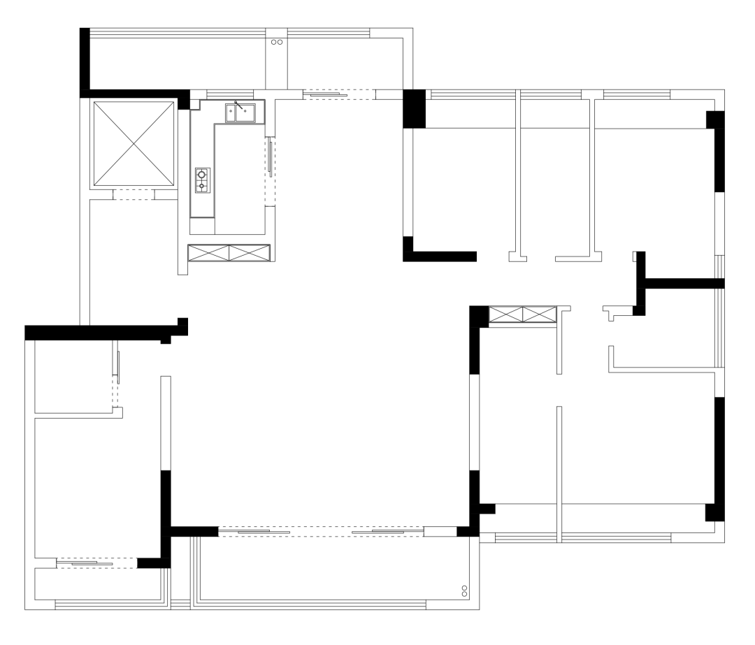
公区平面图
装修前·效果图·实景图
电视墙拆除了原始偏法式现代的硬装,以石材+木材+金属的组合模式,配合灯带和壁炉火光,与全新艺术涂料无主灯吊顶,如同冬日的山羊绒围巾,温和优雅,质感上乘。
装修前·效果图·实景图
电视背景墙、地柜与茶几使用了三种粗细不同的石纹,以天然纹理赋予客厅非凡质感。
背景墙使用三层嵌套式结构,黑色柜体部分使用双侧悬空的悬浮搁板,将简约线条做到极致。同时拉宽电视比例,增强延伸感,无形中放大客厅空间。
与电视墙气度相应的,是作为公区中心的黑色真皮沙发,意大利进口全青皮的肉眼可辨的高级肌理搭配矮靠背造型与宽大坐深,无不彰显它的大气矜贵,为整个公区定下品质基调。
效果图·实景图
°西厨茶室
原始结构中的餐厅尺度有限,增加餐边柜会过度拥挤,所以我们利用客厅的X空间,设置长桌、岛台和西厨。
满足男女主人的喝茶聊天、净水直饮、轻办公、咖啡烘焙、家政清扫,以及小朋友的手工制作、画画练字等功能。甚至在长桌岛台中内嵌了恒温酒柜,方便二人的酒品收藏。
装修前·实景图
根据屋主需求,我们特别改了上下水到此处,不仅有方便洗水果和杯子的水池,还增加了自带上下水的扫拖一体机,节省家务时间。
上柜内退250mm,不仅薄柜更适合拿取,操作时视野更好,还为上方的空调回风口让出空间。同时将父母房间的门拉通为隐形门,使造型更为整体。

°餐厅
由于餐厅没有设置边柜,所以重头戏放在了墙面的统一板材装饰上,在黄金分割点嵌入不同材质和灯带,打破了窄空间的方正无聊,并与客厅空间呼应,增强空间连贯性。
顶面也进行了修改,黑色加长出风口与悬浮吊顶,一改四周吊顶、短出风口和繁杂线条分割的小气,整个空间都舒展起来了。
装修前·效果图·实景图
° 主卧
主卧室承袭了公区的温润木色,并使用暖灰白与其相配,打造平静的睡眠氛围,减少空间压抑感。
装修前·效果图·实景图
悬浮床头柜与床头背景板统一定制,整体性更强。搭配同色系窗帘、挂画和抱枕,无疑是当下最流行的美拉德家居。
床尾拉通设计为衣柜,靠近房门处使用与床头呼应的木色圆角开放搁架,减少进门的压抑感,增加随手置物的便捷性。
原始衣帽间空间较窄,除了在床尾增加补充衣柜外,在衣帽间靠近睡眠区一侧也增加了平挂薄衣柜,充分利用收纳空间。
° 书房
书房使用全屋定制,提升小空间的利用率,双层开放搁架方便展示手办玩具,加长书桌为电子设备预留充足空间。
靠窗处利用飘窗设置了榻榻米,书房也可以作为临时睡房,男主人偶尔航班晚归或办公较晚,直接在书房就寝,不打扰已经入睡的女主人。
:
起飞,降落,这个家更像是夫妻二人的定位系统,无论飞往何处,家永远是最甜蜜的牵绊。这份牵绊,让他们得以在航班往来中,在忙碌的罅隙中,细尝生活的滋味。
添加微信ujia01
可与本案设计师1v1交流并获取免费设计规划方案
代言人招募中
……
❸"


左右滑动查看户型更改
❶ 入户鞋柜改门板,与公区材质色调统一;
❷ 客餐厅顶面改为无主灯设计,刷艺术涂料,更显质感;
❸ 沙发后的X空间改上下水,增加直饮机、水池、扫拖一体机,次卧门统一设计为隐形门,造型更整体;
❹ 主卧床尾增加衣柜,补充衣帽间收纳空间;
❺ 书房利用飘窗增加榻榻米,晚归人可以直接书房就寝,不打扰另一半。
最新评论
在线客服
官方微信
联系电话
返回顶部