216人已浏览 时间 : 2023-10-07 17:41:09
导语:❶"❷"…
电建洺悦珑庭
122㎡ | 清水房全案 | 4室2厅1卫
❶"
本期美宅的女主人是一名语文老师,和先生育有一儿一女,平日与老人同住,是平和有礼的书香门第。
一家人向往平静自然的生活,在柴米油盐中细细品味时光中的甜。
设计师通过对原始户型的细微调整,为她们打造了家庭图书馆、不换季衣柜、无中生有储藏柜以及1㎡家政区。为日常生活场景提供方便舒适的体验,家不必浮华,安心就好。
获取免费设计预案
❷"
°客厅
一家人都热爱阅读,特别是身为老师的屋主与分别在小学、初中阶段的孩子,拥有不少读物,加上又没有看电视的需求,直接将客厅改为家庭图书馆。
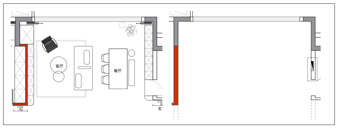
客厅平面布局
轻移客厅与主卧之间的墙壁,为主卧让出超长衣柜,为客厅打造深度适宜的书墙,并在窗边隐藏一个两平米储物柜。
书墙前铺上地毯,去茶几,双面可坐主沙发搭配毛毛虫沙发单人位,可躺可坐可靠,让阅读更自由。
书柜上方未做顶板,为空调回风口让出空间,也避免书籍放置位置太高难以拿取。
书柜与窗户之间,利用墙体移动的深度差,打造深色门储物柜,各类家庭囤货都可以轻松塞下。
客厅过道的墙壁是一家人的照片墙,每次路过都能感受到快门定格下的美好时光。
定制的黑色极窄边框长虹玻璃厨房门,在浅色空间中增加一抹重色,避免视觉太过漂浮。
°餐厅
餐厅的桌椅与柜体之间的搭配呼应堪称完美,原木与黑色色块的比例刚刚好,靠近沙发一侧特别选择条凳,方便沙发与餐厅之间的互动,也为过道释放更多空间。
加长餐桌不仅拥有进餐功能,还可以作为孩子们的手工桌、写字台,大桌子在当代家庭中不可替代的多重身份不言自明。


餐边柜与老人房的房门共同规划,构建整体造型,白色柜体与开放操作台的黑色背板搭配,更具层次感,上方的「随手置物格」则采用木色背板,与餐桌和地面相呼应。
台面改了上下水过来,杯子和水果清洗,甚至一家人的饭前洗手都可以在厨卫餐三处同步解决。
°主卧室
主卧室的重心放在了营造柔和睡眠氛围与大容量储物上,墙板与床头柜一体化设计,与窗帘色彩同步。
因为是定制,所以能轻松做到完全对称与严丝合缝,营造出引发舒适的秩序与节奏。
卧室最重要也是最巧妙的两处改动在床尾的衣柜和床头的玻璃砖墙。
玻璃砖墙阻隔了主卫的水汽,也避免门直对床的不安全感。玻璃砖又具有透光性,让两侧都没有憋闷感,空间更为通透。
同时在隔墙与主卫之间的墙面,还有空间增加柜体,睡衣内衣浴巾就近收纳更方便。
床尾则是通过客厅移墙,让出了足够设置整排衣柜的空间,针对靠窗处无法移动的墙体,直接使用同款柜门作为饰面,让视线更具延伸感,空间更显通透。
° 女儿卧室
小女儿年龄尚小,卧室选用一米二的上下床,半封闭下床为孩子提供安全感。开放搁架代替床头柜功能,收纳小件物品非常在行。
另一面墙设置全墙衣柜,充分收纳妹妹的漂亮裙子。
窗边是妹妹的专属画廊,毛毡软垫上墙,让她的画作可以随时更新展出,成为房间里最好的装饰。
女儿画作 · 未修原图
° 儿子卧室
哥哥的卧室则是活泼不失稳重,婴儿蓝与黑白搭配,既有少年的率真,又展示出日渐缜密的思维与个性。
与妹妹房间不同的是,哥哥的房间有更多的DIY空间。
通过集成化定制的方式实现床、衣柜、书桌的整体呈现,同时在进门处设有开放搁架,书桌旁墙面设有壁挂式置物和小黑板,哥哥的工具和收藏的宝贝都能完整的予以展示,各种灵感也能直接在黑板墙上具象化。
° 父母房
父母房在色彩上更为沉静,乳胶漆和柜门定下柔和的基准色调,浅卡其的床头和床头柜作为过渡色进行补充,深木色画框则是最深色进行收尾。
渐变色阶的使用在营造空间色彩情绪上非常有效。
:
回顾王老师的家,没有大开大合的绚烂「艺术」,更多的是细水长流的岁月静好,生活中的小幸福充满整个家,家人脸上的笑容就是一个家最好的装饰。
如果你也喜欢今天的案例,欢迎添加ujia01,免费获得专属你家的规划哦!
❸"


左右滑动查看户型更改
❶ 移动客厅与主卧之间的墙体,让出衣柜和储物柜空间;
❷ 卫生间干湿分离,增加洗衣机和烘干机,弥补户型上的无生活阳台问题;
❸ 餐边柜增加上下水,多一个水池洗杯子水果都方便。
最新评论
在线客服
官方微信
联系电话
返回顶部