212人已浏览 时间 : 2023-10-14 11:27:59
导语:首创国际城137㎡|旧房改造|4室2厅2卫❷"°入户阳台改造前后平面对比…
首创国际城
137㎡ | 旧房改造 | 4室2厅2卫
❶"
本期改造引发强迫症极度舒适,一扫三孩超拥挤户型的杂乱,改为一人独住的开敞大宅。
屋主从事网红推手工作,对生活之美有着较高要求,同时也有部分在家取景拍摄的需求,家既是他的私人宅居,也是他的工作室和社交场,一人居住让空间连通性拥有更多可能。
❷"
°入户阳台
改造前后平面对比
入户阳台是原始户型的极大优势,拥有更多的可利用空间,封闭的阳台在空间开敞度上难免不足。
既然同为公区,屋主选择拆除了原始厨房的部分墙体和入户花园的门,让光线直通室内。
黑色百叶与黑白组合定制柜的组合,搭配同色系的地垫和洗地机,干净清爽。靠近入户门特别设置了矮柜,方便换鞋、挂衣、开关操作的同时,也避免开门后的视线拥堵。
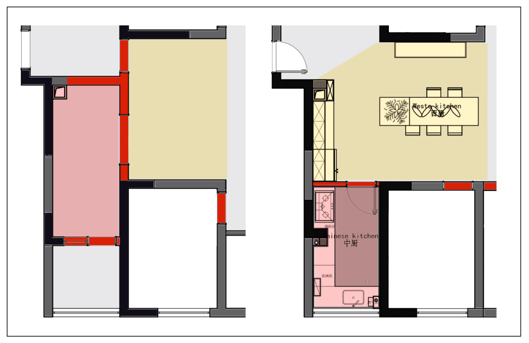
°餐厨区
改造前后平面对比
餐厨区拆除了原始厨房,并将原始生活阳台纳入餐厨区,重新划分空间,形成了封闭中厨+开放西厨+餐岛的复合型功能区。
作为「混乱重灾区」的厨房,更为精细的功能划分会提高收纳效率和使用便捷性。
从入户阳台正式进入室内,就是西厨和餐岛区域,不同于明亮外部,餐厨区的全黑柜体凸显优雅高级质感。
嵌入式冰箱和无拉手柜体设计,用更昂贵复杂的工艺做出高级的极简效果。
西厨操作台拥有上下水,方便就近清洗,并在上方吊柜特别做了内退,方便身高较高的屋主无遮挡操作,也完美隐藏了延长烟道。
餐桌区使用黑白两种石材作为桌面和桌腿,纹理间和谐呼应,保持方正造型。
岛台靠近餐桌部分增加轨道插座,吃火锅烤肉和轻办公场景都能轻松cover,底部特别增加灯带,不仅丰富造型,也为无直接采光的幽深餐厨区增添通透质感。
中厨部分使用中灰色大砖墙地通铺,顶面采用极简铝扣板吊顶,空间显大也更易打理,关门进行川式爆炒不怕油烟扩散。
°客厅
改造前后平面对比
客厅区域电视一侧的墙面通过次卧开门方向的修改,拥有平整的透视线。
沙发一侧的墙面则进行了拆除,设置为半开放书房,与阳台打通,创造餐厨区域以外的第二洄游动线。
电视墙上方使用黑色加长风口,视觉上拉长空间,纯白背景墙与电视柜都是「背景」,两侧的手办和音箱才是专属屋主的气息。
粉蓝几何地毯与粉色猫猫抱枕是家中为数不多的彩色,让黑白灰不止是严肃与理性,小小的跳脱即可轻松点亮整个空间。
与电视墙的极简气度相应的,是同样具有开放一是的单扶手方正黑色真皮沙发,靠近动线一侧不加扶手,空间交互感和开阔感都有所提升。
°书房
沙发背后的T字形承重墙,既作为沙发背后的「靠山」也是书桌的起始点。定制加长桌面可以双人同时办公或游戏,让公区承载更多生活场景。
改造前后平面对比
书桌背后是家里的日杂囤货柜与衣物棉被补充收纳区,依然是全白柜体,与空调风口的边顶找平,减少凹凸让空间更简洁显大。
°阳台
改造前后平面对比
虽然是竖厅户型,屋主仍拥有7米长的景观阳台,阳台三段式分区各有责任:
靠近电视墙一侧做落地柜,方便麻将桌直接推入收纳,上方层板根据需求放置游戏周边;
中段是客厅休闲区的外溢和猫咪的专属区域;
靠近书房的一侧则是洗烘和清洁物品收纳区。
° 主卧
一人独居的好处就是不必追求极致的单空间私密性,主卧可以只承担纯粹的休息功能,一张舒适的大床,一盏柔和的吊灯即可。
小猫咪真的好可爱!
至于衣物存放,完全可以单独启用一个房间!
衣帽间与卧室相隔整个客厅的距离,全黑柜体+黑色百叶窗酷感十足,拍摄OOTD都会更具灵感!
❸"


左右滑动查看户型更改
① 拆除原始入户阳台与厨房、厨房与客厅之间的墙体,入户阳台纳入公区,增加通透性;
② 入户阳台加部分原始厨房组合为新中厨,另外一部分原始厨房打开成为开放西厨,与餐厅相通;
③ 次卧与主卧修改开门方向,为客厅打造平齐墙面;
④ 主卧门后新增临时换衣区;
⑤ 沙发背后的小客厅墙体拆除,设置为开放书房;
⑥ 原始客卫面积过小,微移一面墙设置壁挂马桶,让空间功能更齐全;
最新评论
在线客服
官方微信
联系电话
返回顶部