164人已浏览 时间 : 2023-12-27 10:57:33
导语:❶"本期屋主是一对年轻夫妻,两人享受当下的美好,也为未来的三口之家做好了准备。新悦府的精装房轻奢的硬朗元素较多,尤其是金边框吊顶,屋主实在爱不起来。两人更期待温暖柔和的空间氛围和舒适的温湿度,希望有大大的餐桌能邀请…
高投新悦府珺园
143㎡ | 精装房全案 | 3室2厅2卫
❶"
本期屋主是一对年轻夫妻,两人享受当下的美好,也为未来的三口之家做好了准备。
新悦府的精装房轻奢的硬朗元素较多,尤其是金边框吊顶,屋主实在爱不起来。两人更期待温暖柔和的空间氛围和舒适的温湿度,希望有大大的餐桌能邀请朋友一起聚餐,希望有惬意的阳台休闲区来享受生活,以及足够的储物空间来收纳自己精心挑选的美好物件。
我们理解他们对家的憧憬,并通过简单的户型调整与改造,为他们带来真实且有温度的新家。
识别二维码
获取免费设计预案
❷"


左右滑动查看户型更改
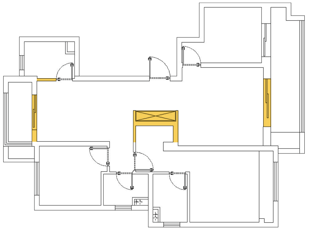
❶ 拆除拥挤的入户鞋柜和鸡肋主卧衣帽间,拓宽玄关尺度,形成真正的南北通透空间;
❷ 景观阳台纳入室内,打造休闲区并增设收纳空间;
❸ 次卧改为隐形门,让电视墙更整体,电视与沙发可以居中放置;
❹ 生活阳台纳入室内,通过不同深度柜体,照顾到冰箱烤箱放置以及餐边柜与餐厅之间的位置关系;
➎ 主卧增设地台,让空间更显大也更具温馨感。
❸"
°玄关
原始户型中,开发商为了主卧衣帽间和入户鞋柜,对原本南北通透的墙面做了截断,但衣帽间进深极窄,实用性不强,鞋柜布局也不甚合理,二者叠加也让入户变得更加拥挤。
我们将这一部分的鸡肋空间全部拆除,让客餐厅恢复为真正的南北通透。在门口的电梯间打造了鞋柜作为日常使用,入户玄关使用装饰边柜和挂画造景。
打开家门,视野通透,精心挑选的饰品和挂画迎接屋主回家,是属于平凡日常的精彩仪式。
°客厅
客厅使用无主灯设计,可调节的轨道灯提供精准的照明,电视墙与卧室隐形门联通,形成更完整的视觉体验。沙发背景墙亦通过乳胶漆延续奶油白色配色,使用纵向线条作为装饰,避免大白墙的单调。
方中带圆的同色系丝绒沙发,把空间的温柔属性发挥到极致,抱枕、地毯、坐垫加入黑色,避免全浅色空间的浮躁。
手机拍摄原图
客厅的另一个重点在于与阳台的衔接,单向弧形收口避免了双弧线的过多遮挡,也加入了柔和的过渡。直角收口的一侧则通过无拉手定制柜与墙面找平,增加大量储物空间。
临窗处设置原木茶台和躺椅,打造不可替代的休闲空间,得闲饮茶,坐看云卷云舒,三只燕子悬于身侧,营造出「燕燕于飞,下上其音」的意境。
手机拍摄原图·燕燕于飞
°餐厅
△ 改造前后平面图对比
餐厅一侧为了满足亲友团聚、烹饪交互和充足的收纳三大功能,我们打通了生活阳台,并通过深度差柜体,同时实现了功能和美观上的双赢。
自阳台到餐厅的柜体分文储物、餐边、烹饪三个区域,零嵌冰箱和蒸烤一体机提前量尺,严丝合缝地其纳入。
深度差部分,使用黑色开放搁架进行过渡,不仅弱化高度差,还成为了餐厅最具装饰性的空间。
°主卧室
由于主卧面积有限,屋主又喜欢空旷简约的感觉,所以我们将主卧内的线条尽量拉长,高差尽量减小,足够的留白形成空间放大的效果。
床头直接使用背景墙拉通,灯带营造温柔舒适的氛围,地台减少飘窗和床之间的高度差,飘窗定制软包作为卡座,增加温馨感,也进一步放大空间。
靠近衣柜一侧利用衣柜的开放层作为床头置物使用,是设计师既不破坏整体造型又保障实用功能的小巧思。
iPhone拍摄原图
卧室窗帘采用百叶+纱帘的组合,阳光滤进室内,影影绰绰,分外浪漫。
°书房
书房是屋主夫妻非常重视的栖心地,书房分成游戏办公和阅读休闲两个区域。
书桌与落地边柜形成L形布局,作为电脑游戏和伏案办公学习的区域,拿取方便也提供环绕安全感。
一块圆地毯搭配移动小桌与藤编沙发,加上落地灯,组合成为氛围感十足的深度阅读区,落地灯还特别选择了带阅读灯的款式,实用性很强。
最新评论
在线客服
官方微信
联系电话
返回顶部