163人已浏览 时间 : 2023-12-27 11:30:10
导语:建发央玺|142㎡|三室两厅精装全案设计…
建发央玺 | 142㎡ | 三室两厅
精装全案设计

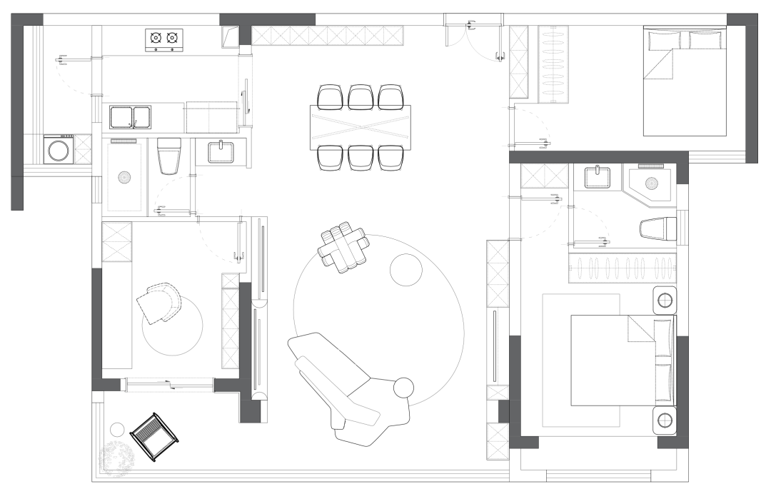
△ 左右滑动查看平面规划
“家”的设计,往往暗示着生活的使用习惯和居住者的品味。
本案屋主是一名人像摄影师,他希望让“家”回归安静自然的生活氛围。收纳空间是屋主最为看重的部分,不仅需要满足日常收纳和摄影器材的存储,还需兼备充足的展示功能,如何让空间有秩序的同时赋有温度是本次设计的关键。
建发央玺的原始户型整体较为方正,公区链接阳台客厅与餐厅,形成超尺度的家庭互动区域,自带封窗,可将小区园林景观一览无余,偶尔闲来无事,坐在阳台便可欣赏四季不同的中式造景。
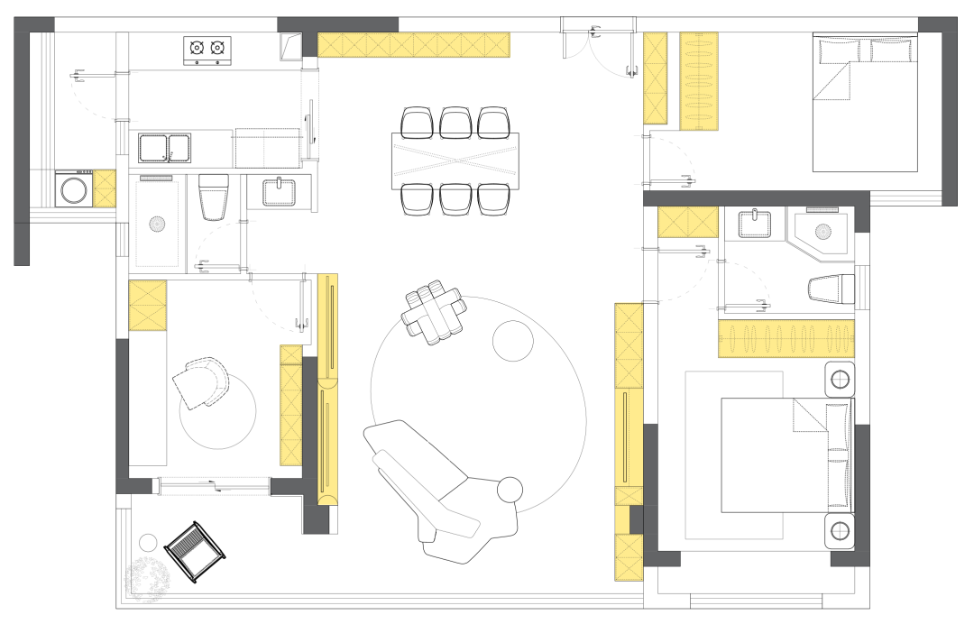
△ 收纳规划图
收纳区域的缺失,一直是精装房的诟病,在保证视觉美观的前提下,精准规划不同空间的收纳需求与行走动线。
通过对收纳空间的梳理确保了居住后一直保持着入住时的状态,不用担心物品存放的凌乱影响整体美观。
为了尽可能增加储物空间,且避免入户门正对沙发破坏私密性,我们拆除原本电视墙并与沙发墙调换位置,让电视墙与入户餐厅融为一体,增加了空间的包容性与开阔性。
原始硬装&设计效果图
视觉上木色的淡然和从容赋予了空间极致的优雅,同时白色的柜体则沉淀出宁静的观感。
两种材质和颜色的和谐碰撞,迸发出一股稳定心神的力量,身居此处,纵使一天之中有无数疲惫,也能顷刻一扫而光。
客厅承重墙位置及处理方式
除去视觉的美感,功能性也尤为重要,阳台与客厅的连接处存在一根无法拆除的承重柱。
设计师将承重柱做成开放的置物格,不仅可以陈列展示屋主的摄影作品,也解决了户型结构问题。
下方没有选择日常的电视柜,而是加入壁炉,每当夜晚来临,打开壁炉,火焰闪烁,仿佛身心都得到了慰藉。
岩石沙发打破传统摆放方式,给予屋主更完整舒适的躺座体验。圆弧形包裹的沙发背景墙,散发出悠然气息,开放展示区域容纳屋主喜好,功能与颜值在这里共存。
在另一版本的设计方案中,我们一改原始硬装和定制的木色与黑色,以白色作为空间主色调,让家具款式和风格重塑都具有更广的可选范围。
白色的餐边柜与点缀的黑色奢石让整体更具层次感,质地醇厚的黑,一处处落在白色的空间里,纯净而简洁。点缀色则使用热情的红,点燃家的生命力。
方案二效果图
书房作为屋主工作区域,需要超强的功能性,设计师首先设置了展示区域,用于放置画册等物品,其次是置物功能,考虑职业因素在右下方定制了可以放置摄影器材的恒温保险柜,美观与实用性都能完美兼顾。
整体色调上,以木色为主基调色,营造出自由松弛的空间状态,即使是工作加班,也丝毫不会觉得压抑。
黑白灰三色的搭配,巧妙的营造出理性的静享空间。
白色的一门到顶衣柜,满足了屋主的收纳需求,黑色的床头背景板,为这温润的空间画上重彩的一笔。
最后是灰色且富有质感的床体,每当静静躺在床上,感受周遭带来的包裹感,瞬间便能抚慰白日奔波的疲惫倦意。
精装房的改造,不是大刀阔斧地推倒重建,也不是一成不变地得过且过,是了解每一个空间后的合理运用,是根据每位居住者的精改细改,让空间成为每一位屋主真正意义上的“家”。
最新评论
在线客服
官方微信
联系电话
返回顶部