欢迎来到筑巢家

您的位置:筑巢家 >学装修 >装修流程

U家工场,陆肖TOD149㎡精装房“空间放大术”,柜子多空间反而显大!

87人已浏览 时间 : 2023-12-29 16:07:27

[ 手机扫码 ]

导语:陆肖TOD|149㎡|四室两厅两卫精装房全案设计与落地…

陆肖TOD | 149㎡ | 四室两厅两卫

精装房全案设计与落地

本期健身博主的新家,诠释了精装房更加“聪明”的改造方式,部分拆改却实现了全改效果,从功能和颜值上以小博大,是精装房“空间变大术”的教科级全案改造。

房屋是健身博主一家四口居住,家有两个孩子,一儿一女。这套房要考虑到夫妻二人对个人爱好的追求,还需要有更大的活动空间和收纳空间,让149的房子住起来有180的舒适感和实用性。

屋主希望在满足颜值和功能的前提下,最大限度的物尽其用,这是很多精装房业主的共同需求,也是我们全案设计师安林的核心理念,不做多余改造,始终以更好住的家为目标。

在多次方案沟通确定后,我们对原始户型进行了局部功能拆改、无主灯吊顶、全屋地板更换,以更低成本的方式最大限度实现了“柜子多,空间反而更大”的神奇逆转。






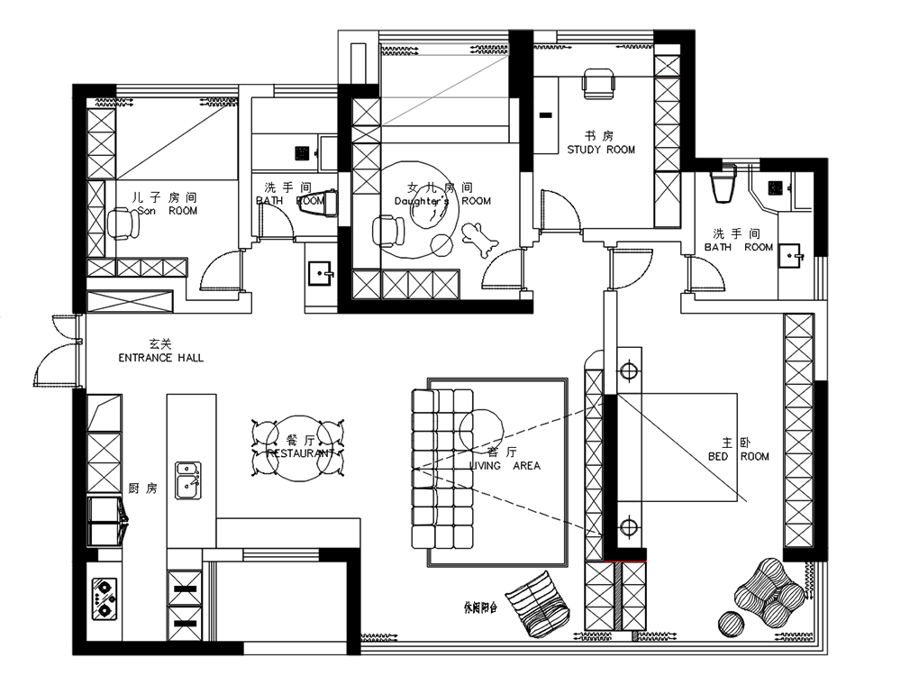
△ 平面规划图


① 拆除厨房与餐厅间墙体,变厨房餐导吧台为一体化空间。

② 把生活阳台纳入厨房,改变燃气灶及热水器位置,增加隔门解决油烟问题,同时厨房空间更大,动线更流畅。

③ 厅&主卧阳台通过柜体进行一分为二,阳台纳入客厅及主卧房间,提高空间利用率。

④ 拆除客厅吊顶,变无主灯吊顶。

⑤ 拆除地砖进行全屋木地板更换,鞋柜处保留。




餐厨区是本套方案改造较大的区域,也是落地后亮点较多的空间,为满足健身博主一家四口更好的互动及交流,餐厨和客厅形成通透且交互的生活场景,我们拆除原有厨房与餐厅的墙体,把原有狭小的厨房与生活阳台打通,重新规划厨房动线,改变原有热水器、燃气灶位置,最终实现了双一字型的厨房餐导吧台一体化。



改造后的厨房不仅变大了很多,在实用性上也升级加倍,一字型厨房左侧承载着蒸烤箱、冰箱、干货零食柜及厨房杂物收纳,右侧则是导台吧台一体化。

除此之外,为隔绝油烟,设计师还在厨房增加了一面可收缩的门,收起来是开放式厨房,拉起门来是中西厨隔断。

生活中,屋主爆炒时可关上门,西餐时可以和两个孩子在吧台或客厅交流互动,谈论当日趣事,厨房变成了一家人的欢聚场。



和导台构成L形的另一侧是小家电的栖息地,放置着屋主喜欢的咖啡机和小家电,下面是整面收纳柜,就算家里有两个小孩也不担心凌乱。

整个餐厨都是黑白配色,浅色为主的空间更加显大,同时黑色的家电和百叶窗点缀,又增加了空间的质感与稳重。



从餐厅看向客厅,和餐厨一样,你会惊讶于这个家的柜子之多,但一点也不觉得堵,反而有一种大平层的通透感和空间视觉感,这就是“空间放大术”的神奇了。





阳台纳入客厅后,客厅空间变大,和开放的餐厨空间形成整体大公区的感觉,而客厅的电视背景墙,由一整面墙的柜体+电视柜+镜柜组成,极简又统一,整个视觉有很强的延伸感。

其中,镜柜为整个空间的视觉扩大加分不少。镜柜的加入打破了死板的柜体设计,增加颜值的同时,满足了健身博主的爱好需求,偶尔在镜柜前锻炼身体、拍拍视频,分享自我成长的变化,让生活变为可见的美好。





在电视墙的另一端,由于正好是入户正对的视觉焦点,设计师用圆弧形柜体收口,并在木色的墙板上装了一个提升氛围感的壁灯,进门远看,像是一幅巧妙的画景,不仅如此,从主卧出来时,圆弧的造型也会让人觉得这里更加开敞舒适。与黑白电视墙相呼应的是我们2.8米长的黑色沙发,直线条中和着温柔圆润的造型整,让整个黑白灰的客厅空间有了极简的品质感。





客厅地面和全屋一致,为实现温馨舒适的感觉,拆除精装房原有地砖进行统一木地板更换,而在没必要拆除的地方,如玄关处的鞋柜下方进行了保留,我们通过木地板与极简扣条进行了联结,不影响美观的同时又节省了成本。

为实现现代极简的无主灯氛围感,我们拆除了原来的吊顶,改为磁吸轨道灯为主的无主灯设计,厨房与客厅相连接处的吊顶用斜切吊顶过度,舒适度和层次感更强。


主卧最大的特点是进行了床头床尾全翻转式布局调整,基于床头床尾的调换,整个主卧室的收纳空间和整体性更强。

床头背景墙进行了格栅竖条纹及墙板结合的装饰,增加了温馨的感应灯带,床头柜与背景墙是统一定制的,悬空设计更易打扫。

床头与化妆间相接处,用水磨石板材进行了过度,显得极为优雅精致。





主卧床头调换的好处,一方面可以增加主卧的隐性性,另一方面是床尾可以一整面墙做衣柜储物,可以满足男女主要对的衣物分类的需求,同时收纳量比原来的布局增加了1.5倍,且整个空间显得宽敞舒适。



一家四口对全屋的收纳要求都很高,我们能看出每个空间的柜体都很多,对夫妻二人来说,主卧整排的衣柜主要收纳当季衣物,而过季衣物则考虑放在主卧对面的衣帽间。

同时这个房间也可作为书房和钢琴房使用,是一家人的多功能共用空间,同时也是相互陪伴的美好场景。




屋主对于儿女的儿童房设计非常重视,两个儿童房面积都比较小,只有10㎡,为了更好的利用空间,两个房间都进行了榻榻米考虑。


*女孩房*


值得一提的是,女孩房是利用飘窗进行了榻榻米搭建,由于飘窗较高,我们在床的旁边进行了台阶设计,方便孩子上下床更安全,下面是抽屉可以收纳过季被褥,一旁是孩子的学习书桌,满足了睡眠收纳学习多场景使用需求。

利用飘窗后的房间变得比较宽敞,现场完全感受不到只有10个平方,显大的同时还兼顾了颜值和实用,这是小户型儿童房都可以借鉴的点。


*男孩房*

:

很多邻居都喜欢这套方案中的餐厨区改造,好的设计是打破与重构,在不经意间实现家本来应该有的样子,这是属于健身博主一家四口的家,有着他们喜欢的样子。

上一篇:U家工场,高投和悦府143㎡竖厅显大秘籍!不用牺牲功能也能实现空间放大~ 下一篇:U家工场,成都西派融城“反极简之家”,丢电视扔沙发,用色彩编织独属于屋主的住宅梦

相关推荐:

评论(共0条)


最新评论

免费装修设计