209人已浏览 时间 : 2023-12-29 16:54:34
导语:❶"本期的屋主是热爱生活的一家三口,男女主人相信生活的完整是大于空间完整的,屋主喜欢养鱼,希望拥有可以同时观影和工作的书房,愿意牺牲空间数量来达成更舒适的生活。我们通过微小的墙体调整,实现符合两人需求的空间划分,帮…
万科公园五号
215㎡ | 精装房全案 | 4室2厅3卫
❶"
本期的屋主是热爱生活的一家三口,男女主人相信生活的完整是大于空间完整的,屋主喜欢养鱼,希望拥有可以同时观影和工作的书房,愿意牺牲空间数量来达成更舒适的生活。
我们通过微小的墙体调整,实现符合两人需求的空间划分,帮助他们建立一片属于这个家的秩序,用人间烟火抵御岁月漫长。
识别二维码
获取免费设计预案
❷"


左右滑动查看户型更改
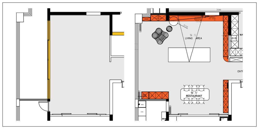
❶ 入户拆除部分原始墙体,通过圆弧转角定制柜打造对称视觉效果,提供储物功能同时增加进门视觉纵深;
❷ 景观阳台封窗,通过定制柜一分为二,分别纳入客厅和主卧室增加可使用面积,打造休闲区;
❸ 拆除原始次卫,与原始衣帽间合并,扩大衣帽收纳空间;
❹ 备用卧室房门内退,将原始次卧卫生间改为客卫。
❸"
°玄关
玄关,是家的第一仪式感。原始户型格局中是有玄关柜空间预留的,我们拆除了右侧窄墙,实用双弧柜体转角,左承电视墙,右衔全屋静区。
△ 玄关改造前后平面对比
△ 改造前后对比
由于在户型上对右侧次卧门进行移位,增加了两个墙面转角,弧形柜体更能让出过道空间,减少尖角对冲。
△ 通道枢纽
°客餐厅
客餐厅在布局上采用“依墙设柜,以柜平墙”策略,通过定制柜衔接玄关转角,和抹平阳台封窗后的墙垛与墙面转角。
同时依托餐厅两侧墙体分别增加定制柜体,与墙色融为一体,减少储物空间增加引起的厚重感。
△ 客餐厅改造前后平面对比
屋主有大量的收藏品需要进行展示,因此客厅多出侧面柜体大部分都做成了半透明玻璃柜门与柜内灯带的组合模式。
电视柜则更多承担氛围感功能,木色格栅与黑白两色墙板叠加,层次感十足,搭配壁炉和画壁电视,在家也有艺术展的氛围。
△ 改造前后对比
为了达到极简效果,设计师特别实用倒挂抽屉的形式,隐藏杂乱线路,保证完美外观的同时不会落尘,更好打理。
△ 倒挂抽屉
阳台靠近电视墙一侧,实用定制柜与原推拉门垭口找平,柜内黄金空间不设隔断,备用圆凳,换季电器,家用折叠梯都能轻松容纳。
背板安装洞洞板并留有电源,需要充电的吸尘器等等电器都可以悬挂其中。
阳台的另一侧则嵌入了屋主心心念念的鱼缸,蓝色的灯光格外动人,如同镶嵌在新家的一颗“海洋之心”。
为了达到嵌入式效果,我们先在鱼缸下方的柜内打加粗钢架,再将打氧照灯循环过滤设备内置,外包柜门同款板材,保证外观的足够简约,同时不影响正常的养鱼操作。
与鱼缸相邻的是餐厅区域,空间宽松,容得下六人长桌与定制餐边柜。
天然纹理的黑色岩板台面,搭配与沙发呼应的调色餐椅,用色小细节让空间联系更为紧密。
餐边柜依然是黑白与木色的组合,拥有加长的小电器操作台面,咖啡简餐都可以直接在这里完成。
°主卧室
主卧的重头戏在双倍衣帽间的打造上,原始衣帽间面积对于屋主夫妻来说稍显不足。
日常三口之间对三个卫生间的需求也不大,因此设计师合并原始客卫,与主卧衣帽间打通作为双门容量的新衣帽间,满足屋主衣物不换季的需求。
△ 主卧改造前后平面对比
同样是黑白木色的组合,主卧将黑色面积减为最低,白色与木色范围加大,配合暖调灯光,温馨沉静的睡眠氛围油然而生。
景观阳台的合并也为主卧提供了更多定制收纳与休闲空间,得以任性拥有独立妆台。
合并后的衣帽间以开放挂衣区和抽屉为主,拿取都很便利,达到衣物畅选的效果,让每日衣帽搭配成为一种享受。
°影音室
多功能影音室与备用卧室相通,除了双人大书桌外,还有L形展示柜作为手办收藏的展示空间,以及隐藏吊顶内的投影幕布和观影沙发。
让空间同时具备办公、游戏、展示、观影和休闲的多重功能。
书房拥有舒适的转角落地窗,景观和采光双一流,加入绿植和单椅,休闲指数拉满。
°儿童房&备用卧室
儿童房和备用卧室的面积比较有限,目前使用频率较低,在布局上以衣柜+床的经典搭配为主,在柜体的布局和灯具选择上予以巧思。
内凹的柜体设计既可以承担床头柜、临时置物和展示功能,也在视觉上予以延伸。
*
见微知著,屋主夫妻对待新家的热忱一如他们对生活的态度,将所有热爱网罗至一处,与相爱之人搭建彼此限定的未来。
最新评论
在线客服
官方微信
联系电话
返回顶部