325人已浏览 时间 : 2024-01-06 11:43:27
导语:本案是位于天府新区的【新鸿基·悦城】127㎡户型,业主通过身边的朋友推荐了解到我们,并信任和选择我们!●理想中家的样子既能满足风格的简约化,空间又能很有层次感,一切要以“舒适度”为核心。…
写在前面
本案是位于天府新区的【新鸿基·悦城】127㎡ 户型,业主通过身边的朋友推荐了解到我们,并信任和选择我们!
●理想中家的样子
既能满足风格的简约化,空间又能很有层次感,一切要以“舒适度”为核心。
❶ 动线合理 满足需求;
❷风格纯粹,要跟随自身喜好;
❸设计的实景落地为第一判断标准。
*(本文所有案例图片皆为手机拍摄)
设计
改造

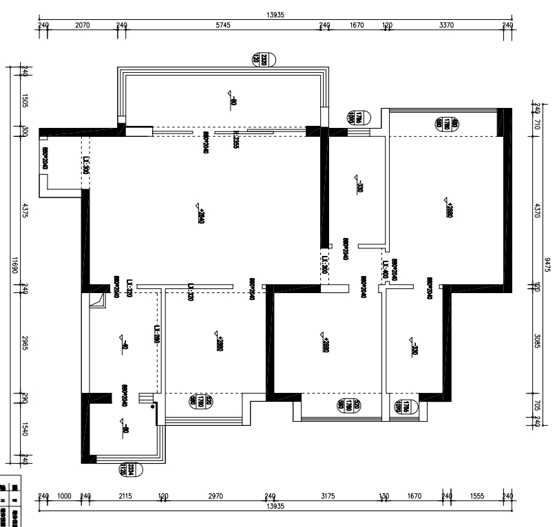
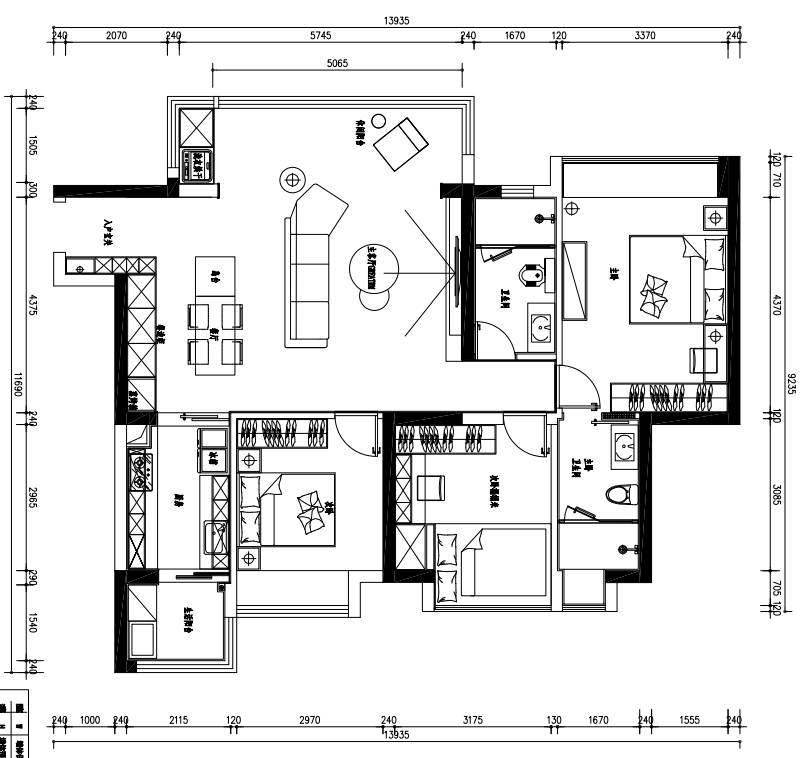
原始平面图&平面布局图
◎原始格局较好,结合业主需求没有做过多的改动,更多是通过屋主的生活动态去分析总结设计灵感的起源▼
Area / 面积:127㎡
Style / 风格:现代极简
Designer / 设计师:贺进
Design Type / 类型:全案整装
Address / 地址:成都 ·新鸿基悦城
黑白灰给客餐厅整体氛围定下基调,极简风格,高级有秩序;简单,但细看又有乾坤;电视内嵌至背景墙之中,从白到灰,沉静而深邃,无彩色的装饰下,是悄然存在背景色。
护墙板+隐形门,统一材质的延续,让餐厅和客厅相连。无主灯设计、没有奢侈材质装饰的墙面,也独有自己的造型与设计感。
全屋无主灯,在原有空间的通透性上,采用多种灯光材质以及参数从而可以随心所欲的切换成不同场景氛围~
餐厅延续整屋的配色,选择素色系列的黑白灰保持着家的平静。
精心挑选的岛台餐桌+西厨与厨房里应外合,完美解决了厨房的空间的弊端,完善了客户需求。
主卧选择黑色的床饰,灰色半墙床头背景暗藏灯带后,从缝隙透露出来的微光,让本是沉静的空间增添一丝暖意。
卧室一柜到顶的衣物收纳区,从柜体墙面延伸出来的悬浮桌面,设计梳妆台,黑白灰为主调的卧室,更显质感!
次卧设计理念和主卧类似,色系选择对立的白色打造整个空间,大力度的增大收纳空间,柜子上墙到顶,转角处设计悬浮桌面,兼并美观与实用性!
最新评论
在线客服
官方微信
联系电话
返回顶部