340人已浏览 时间 : 2024-01-06 11:55:23
导语:写在前面本案的居住者,是一位男业主;房屋是一套290㎡的顶跃,业主喜欢简单干净的家…
写在前面
本案的居住者,是一位男业主;房屋是一套290㎡的顶跃,业主喜欢简单干净的家居状态,酷一点的暗黑色系;对于生活,早已有自己清晰的想法与规划。
房屋是3层,一楼主要规划为互动生活空间,客餐厨休闲露台;二楼则是健身空间与客卧;三楼主要为业主的私人空间,主卧、衣帽间,还有窗外风景绝美的露台,也有多功能空间;合理分区,满足生活所需。
Area / 面积:290㎡
Style / 风格:暗黑系现代风
Designer / 设计师:孙斌
Design Type / 类型:清水
Address / 地址:成都 · 九林语叠云阁
识别二维码
参观工地/装修咨询/报价
*
The first floor
一楼&设计思路
△一楼平面图
一楼主要规划为互动生活空间,客餐厨休闲露台等。
进门映入眼帘的是巨高的挑高空间+围合式的沙发,整个客厅的路径写满了自由与流畅、质感与高级感。
整块花色岩板的纹路是别有用心的设置,点明了整体空间的色彩基调。与地面茶几相得益彰,电视内嵌其中,错落穿插的层次,简洁有力。

&
一旁随意摆放着独椅沙发搭配小边几,以及哈基米的专属区域,营造随性惬意的休息氛围与休闲时光。
&
都说浪漫的人有着自己的乌托邦。客厅的吊灯与整体色彩相呼应,由内而外地构建一种“美的连续性”,释放舒适轻盈的质感。
一层设置了西餐厅与开放式西厨,方便家人及朋友一同烹饪聚会,整体延续了客厅的基调,不同的是,无吊灯的设计,选择借用吊顶的落差,远远的吸附在高处,散落的光可以更均匀、更温柔。
办公一角,整面的落地窗提供着永不缺席的自然与阳光。
*
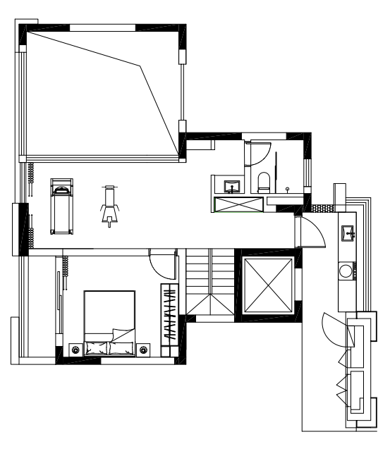
Second floor
二楼&设计思路
△二楼平面图
二楼主要为客卧以及业主的健身房。
男业主对于健身的热爱与自律,索性在家里留了一个独属的空间搭建了家庭版“健身房”,每款器材都属于私人定制,这是多少人梦寐的生活和状态~
*
Third floor
三楼&设计思路
△三楼平面图
三楼整体规划为业主的私人空间,主卧套房。
我们理解的卧室,可能只是一个休息的地方,但是对于业主本身来说,更希望这是一个全能的享受空间,似乎也是一个秀场。内心是格外欢喜。这里根据原两室的格局进行的合并,包含:书房、卫浴、衣帽间、休息区、露台。
卧室视角是极佳的,一片被大地嫉妒的生机,一种思考的空间和开放空间之间的微妙平衡。每日早起后,拉开窗帘,在如此绿意般的景色下,做做拉伸喝喝咖啡,迎着最美的日出开始新的一天。这里时刻满足。
最新评论
在线客服
官方微信
联系电话
返回顶部