欢迎来到筑巢家

您的位置:筑巢家 >学装修 >装修流程

只拆一堵墙,梯形玄关变全屋收纳,这个180㎡的现代风处处都是知识点

180人已浏览 时间 : 2023-05-23 12:29:00

[ 手机扫码 ]

导语:【风格】现代【面积】180㎡【户型】4室2厅1厨2卫【楼盘】水韵尚城【居住人数】2原始户型图…

1111

【风格】 现代

【面积】 180㎡

【户型】 4室2厅1厨2卫

【楼盘】 水韵尚城

【居住人数】 2

 

 

业主需求

希望家,不止是栖息的住所。更是一个舒适自在,能够提供能量和灵感,让自我展现,并且乐于安顿身心的据点

 

 

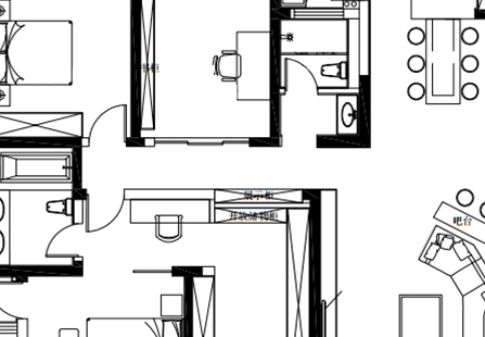
原始户型图

 

1111

 

改造难点

/ 11.7㎡的直角梯形玄关难以利用

/ 2个人住,房间划分太细,利用率不高

 

 

平面布局图

 

1111

改造点

敲掉所有能敲的墙

•打通玄关和餐厅

•次卧变衣帽间

 

 

改造亮点

 

 

/ 最难利用的梯形玄关变全屋最强收纳

1111

 

梯形玄关难以利用,解放餐厅和玄关之间的隔断,将餐厅与玄关合并成一个空间,少了一面墙,却多了餐厅&玄关的公共空间。

1111

 

难以利用的玄关,因为4m长的储物柜变成全屋焦点,餐具、日常用品,暂时用不到的装饰品都可以通用收纳。餐厅和玄关之间的动线更明确。

 

/ 主卧面积翻倍,功能翻倍

 

1111

 

180㎡的大House 2个人住,房间数量才不是衡量设计好坏的标准,如何将空间打造成最愿意融入其中反而变得更重要

1111

 

原11.6㎡次卧2和两个衣帽间空间并入18㎡的主卧,将主卧面积扩大至33㎡。次卧变成一面3m长,一面4m长的衣帽间,打通的阳台配上大面积镜子,变身瑜伽室。

1111

 

梳妆台莫兰迪脏粉,衣帽间清浅蓝,过渡到瑜伽室又是脏粉,而2m宽的床头背后是深灰,用颜色划分区域,功能感更强。

 

 

细节设计

 

 

/ 玄关

1111

 

入门即玄关挂画&黑色方钢隔断,即使有客人来,第一印象也是干净利落,而非一堆待整理的鞋子

1111

 

入门右手边的折线鞋柜很好的利用玄关的150°折角墙面,同时满足日常鞋子的收纳需求。

1111

 

4m长度的顶天立地衣柜承载客厅、餐厅的收纳需求,配合抽屉设计拿取东西更方便。

 

/ 餐厅&厨房

 

1111

 

开放式厨房给餐厅更多沟通的可能,2m*0.95m的餐桌不仅满足2个人的用餐,更方便多个好友来访时的party模式

 

1111

 

与墙同色的深灰色吊顶,根据入户是异形墙体结构做客餐厅异形吊顶,让顶面与墙体融合一体同时与家具相呼应,增加趣味感,层次更明显。

 

/ 客厅

1111

1111

客厅无主灯设计,光线分布更均匀。放了灯槽增加客厅光线层次。

1111

 

吧台设计,除了日常小酌,更是餐厅和客厅的一个隐形功能分区一边是烟火食物香,一边是身心放松地

 

1111

 

电视背景墙的护墙板设计,告别大白墙的寡淡,亚光材质更显质感。

 

1111

 

近两年流行的渔夫灯做客厅局部重点照明,设计师建议的4m的异形沙发可以完全契合客厅的异形空间。

 

1111

 

与客厅相连的阳台,用作钢琴房,拆除客厅和阳台墙面后,钢琴房与客厅交流更密切

 

/ 走廊&书房

 

1111

 

又窄又长的走廊,宽度只有0.9m,为了打破长走廊,①把书房做成玻璃推拉门,增加通透感,②增加嵌入式展示柜,配合等待使用,既可储物又附带效果,自然氛围就出来了。

 

1111

 

书房蓝色乳胶漆有别于其他功能区,大工作桌背后是整面墙书柜,玻璃门增加采光的同时与其他空间联系更紧密。

 

/ 卧室

1111

 

集化妆、换衣、影音、瑜伽于一体的多功能主卧,除了睡觉还可以干很多事情。

 

1111

 

投影暗盒设计可以隐藏幕布于无形,幕布的位置正对床头,躺在床上也可以享受影院般的质感。

 

1111

 

磨砂黑框玻璃门做睡觉区和化妆区隔断,同时也在乳胶漆颜色上进行区分,梳妆台右拐是化妆间和瑜伽区,不出卧室娱乐锻炼都兼顾了。

 


上一篇:厨房面积最小,花费却最高,到底哪些是不应该花的! 下一篇:谁说黑白灰没有温度?这套103㎡套三实现了我对家的所有渴望

相关推荐:

评论(共0条)


最新评论

免费装修设计