欢迎来到筑巢家

您的位置:筑巢家 >学装修 >装修流程

谁说黑白灰没有温度?这套103㎡套三实现了我对家的所有渴望

113人已浏览 时间 : 2023-05-24 20:09:46

[ 手机扫码 ]

导语:楼盘名称:棠湖柏林城外框面积:103.9m²楼盘户型:3室2厅2卫设计风格:现代整装价格:硬装18W+定制柜体6W“如何在有限的面积中将空间变得更大,尽可能获…

 

楼盘名称:棠湖柏林城

外框面积:103.9m²

楼盘户型:3室2厅2卫

设计风格:现代

整装价格:硬装18W+定制柜体6W

 

“如何在有限的面积中将空间变得更大,尽可能获得大的空间利用率,这是全屋设计的重点,也是业主交给设计师的一个难题。”

 

且看设计师三哥在满足这一需求的基础上,如何呈现出与众不同的绝妙空间。

 

 

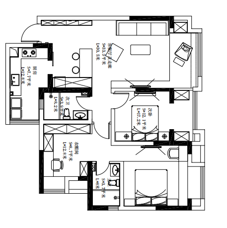
户型分析

—The house type

 

原始户型中区域分隔太多,显得每个空间都比较狭小活动范围小,设计师在详细了解业主需求后,做出了如下改动,来实现空间利用的最大化。

 

1111

▲原始户型图

1111

▲改造后平面布置图

 

①将原观景阳台与客厅之间的墙体和门打掉,与客厅合并,增加客厅使用面积也更开阔明亮。

②新建墙体将原观景阳台一分为二,另一边与次卧合并放置定制衣柜。

③将次卧门洞左移、衣帽间墙体打通、再在图示区域增加一扇门使主卧/主卫/衣帽间合并为一个套间,更适用于业主生活习惯。

④将原生活阳台打通与厨房合并,增加厨房使用面积。

 

 

1111

▲打拆新建图

 

色彩分析

—Color analysis

 

1111

 

屋是以黑白灰的主调呈现,通过柜体门板、绸缎窗帘、皮质沙发的高光增加质感,及软装搭配中的金属元素来点亮空间。卧室使用了雾霾蓝与黑白灰进行跳色丰富色彩层次,衣帽间则是少女心的脏粉色满足男女业主的不同需求。

 

 

玄关

—The hallway

 

从进门起便在呼应“小屋变大”的主题,使用表面浅色高光的PET柜体板打造了高柜+矮柜相结合的定制鞋柜,最大限度的放大视觉空间。

 

1111

 

 

餐厅

—The dining room

 

原始户型中餐厅区域只能放置一张餐桌的位置,设计师别出心裁的打造了定制餐边柜,将冰箱嵌入进去,解决了冰箱放置问题。

 

1111

 

吧台式的餐桌与柜体连通,节省空间的同时也更协调统一。

 

1111

 

餐边柜的白色PET版与鞋柜相呼应,黑色背漆玻璃凸显质感,暖调交叉色的餐椅带来新奇感。

 

 

客厅

—The living room

 

观景阳台新建墙体与电视背景墙很好的相融在一起,更具有延伸感。地台电视柜将阳台与客厅相融,从视觉上放大整体空间。与地台柜相连处打造了一个嵌入式柜体,增加储物空间。

 

1111

1111

 

在黑白灰的基础上融入金属原色增加高级感,另外由于整体风格是点线面结合的硬朗风格,所以在软装上选择了与之契合的轮廓分明的家具。

 

1111

 

为了避免整面灰色电视的单调,用欧松板+石膏板做了一块白色墙体,造价相对便宜又大方美观。

 

1111

 

 

厨房

—The kitchen

 

为打造出高级精致的厨房,设计师沿用了黑白灰的主色调,并在这基础上选用深色原木质地的谷仓门、哑光PET板材、黑色隐形拉手来凸显质感。另外细心的用吊柜将油烟机包住,使整体更为协调美观。

 

1111

 

小Tips:如果厨房柜体不够,可以考虑选用这类水槽盆洗碗机,方便实用。

 

1111

 

 

衣帽间

—The coatroom

 

通顶的定制衣柜部分也是选用了和客厅餐厅相同的白色高光PET板材,书桌与飘窗台相连接,节省了部分空间。墙面脏粉+深灰的搭配显得温馨精致。

 

1111

1111

 

 

卧室

—Master bedroom

 

将原始飘窗台改为书柜及阅读区,更适用于业主的使用习惯。将窗套打造为与黑色柜体统一的材质颜色,整体更加协调美观。

 

1111

 

氛围灯则选用了吊线灯+壁灯的不对称设计,极具造型感。

 

1111

 

黑白灰基调+雾霾蓝的跳色搭配,活力十足。

 

1111

 

 

卫生间

—The toilet

 

1111

▲主卫 U家工场爵士白定制石材卫浴柜,品质感上佳。

 

1111

▲次卫 U家工场成品卫浴柜/多层实木柜体+自动除雾镜

 

家对于每一人来说都是最特别的存在,灵感往往来源于生活,寻找一位与自己想法契合的设计师大胆说出你的想法共同配合,才能打造出理想家的模样。

 

 

对话设计师—三哥

Q&A

 

 

 

Q:说说是什么给了你灵感,打造出现在这个作品的?

A:其实灵感方案在于前一版本,而后又与客户的反复沟通以及推敲细节才得以让彼此满意。

 

Q:你对这套作品最满意的地方在哪里,为什么?

A:最满意的当然是电视墙,简单而不失大方,当然还替客户省了预算。

 

Q:为了满足客户的个性化需求,你在设计过程中做了哪些事情?

A:客户在开始施工时改方案,简直想哭~泪奔~居然尝试在飘窗上用了拉丝纹护墙板(为了达到效果想尽办法)。

 

Q:在整个装修设计期间遇到最大的挑战是什么?

A:最大的挑战就是地台床安地暖的问题,以及飘窗与地台床的整体设计和细节考虑。

 

 

 

如果你也喜欢设计师三哥的作品,或者想要了解本套案例的设计清单,扫描下方小U二维码,来撩!

上一篇:只拆一堵墙,梯形玄关变全屋收纳,这个180㎡的现代风处处都是知识点 下一篇:过道改衣帽间?玄关做酒柜+鞋柜?看设计师如何将“网红楼盘”金地天府城众多难点一一击破

相关推荐:

评论(共0条)


最新评论

免费装修设计