欢迎来到筑巢家

您的位置:筑巢家 >学装修 >装修流程

过道改衣帽间?玄关做酒柜+鞋柜?看设计师如何将“网红楼盘”金地天府城众多难点一一击破

137人已浏览 时间 : 2023-05-24 20:17:14

[ 手机扫码 ]

导语:设计师拿到一个户型要怎么和住户需求结合在一起?同一个户型不同居住人数如何靠设计来解决?小区户型分析栏目第④期的主角,是位于高新区的金地天府城,南挨极地海洋世界、西临天府大道的它,地理位置的优越性毋庸赘述。同时,它还紧邻红星路南延线,周边商业配套极其成熟,是名副其实的“网红楼盘”。…

 

设计师拿到一个户型要怎么和住户需求结合在一起?同一个户型不同居住人数如何靠设计来解决?

 

小区户型分析栏目第④期的主角,是位于高新区的金地天府城,南挨极地海洋世界、西临天府大道的它,地理位置的优越性毋庸赘述。同时,它还紧邻红星路南延线,周边商业配套极其成熟,是名副其实的“网红楼盘”。

 

本期,和小U一起看看设计师如何巧用心思,来化解“金地天府城”户型难点。

 

1111

本案设计师 陈召民

 

金地天府城

外框面积:116㎡

小区户型:4室2厅2卫

 

1111

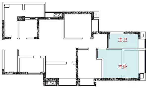
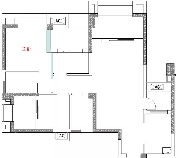
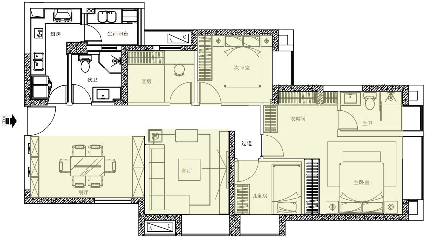
△原始户型图

户型亮点:

整体户型方正,各空间采光都比较好。

原始户型设计难点:

①原始户型中开发商做了很多隔墙,导致空间布局不合理;

②客房区域未被合理利用,需要重点设计;

③次卧门洞与主卧、儿童房门洞“挤”在一起,影响整体美观。

 

Plan A:拆拆补补,让空间合理化

 

在原户型基础上,设计师从“拆墙、移门、重建”3处下手,重新规划空间布局,保证大格局不变的同时,让每个空间的存在更合理。

 

1111

1111

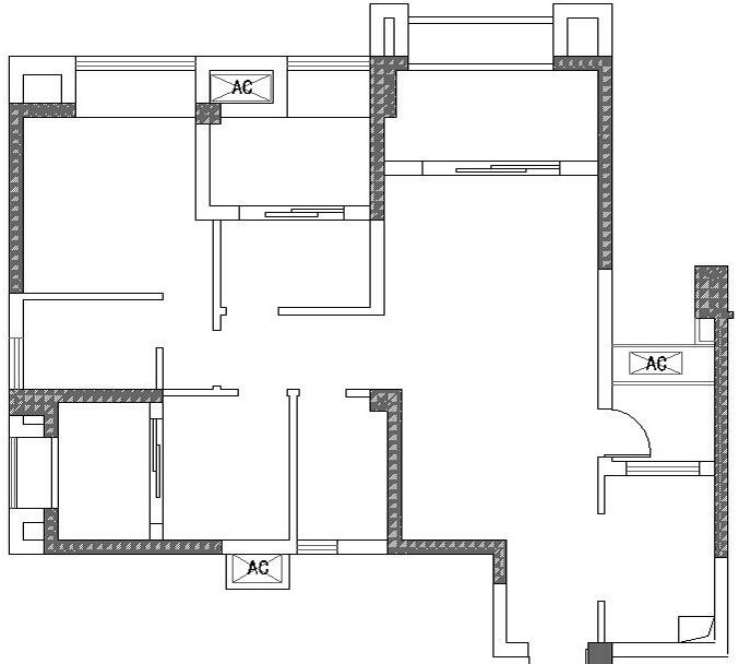
△平面布局图1

针对户型设计难点①:将多余的隔墙拆除,让客/餐厅在无形之中“扩容”,并在餐/客厅之间设计岛台,让两个区域有效分隔;

针对户型设计难点②:沿着次卫与次卧的墙体,为客房新增两处隔墙,并把客房改为书房让其具备强功能性。同时采用推拉式玻璃门,让客房与客厅两个空间更有通透性;

针对户型设计难点③:改动次卧门洞,化解原始户型中三扇门“面面相觑”的尴尬。

 

Plan B:实现主卧室的储物最大化

 

1111

1111

△平面布局图2

针对户型设计难点①、②,方案B与方案A的改造基本相同,不同之处在于书房改为客房,兼具留宿与办公功能,实现空间功能多元化;而在餐客厅之间则是用“条案”来分割,又具有储物功能。

 

1111

△客餐厅效果图

全屋采用轻美的设计风格,既有美式的稳重又兼具轻奢的质感。

 

1111

△餐厅效果图

1111

△客厅效果图

墙面做线条造型,将典型的美式主义发挥到极致;条案的加入,让客/餐厅的功能性更加明显;色彩跳跃的挂画既点缀了空间,又呼应了整体风格。

 

此外,主卧室是方案B中重点改造的区域,相对于方案A,后者更注重对主卧收纳功能的打造。

 

主卧方案:8.7m²衣帽间满足强收纳

 

1111

1111

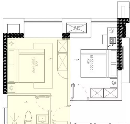
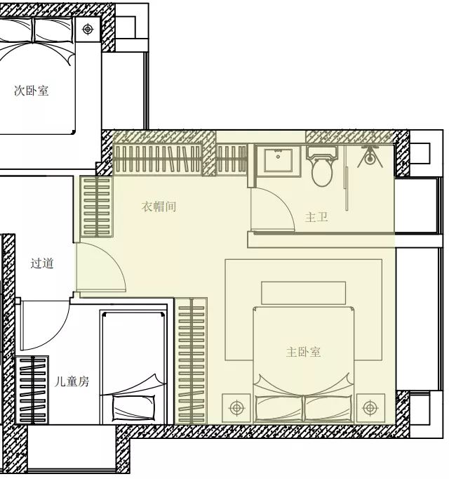
△主卧改造后

改造点:

①拆除主卧与儿童房之间的部分墙体,并将儿童房门洞向后推移缩小其面积,在保证儿童房基本使用面积的情况下,为主卧门洞“新开”位置;

②将原本的直线过道改为L型过道后,原始户型中的部分过道面积纳入主卧,并改为转角式衣帽间,提升整体储存能力;

③主卫门洞移换方向,避免卫生间门直对床尾,影响美观。

 

1111

△主卧效果图

1111

△主卧效果图

考虑到原始户型为4室,因此在设计时,也最大限度的保证居住空间有4间,采用缩小儿童房面积的方法,纳过道面积为主卧新增一面8.7m左右衣帽间,提升储物空间。

 

1111

本案设计师 孙超

 

金地天府城 H户型

外框面积:104㎡

小区户型:3室2厅2卫

 

1111

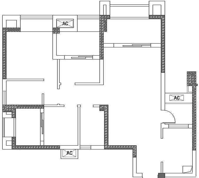
△原始户型图

户型亮点:

户型方正,各个空间比例恰当。

原始户型设计难点:

①原始户型中开发商做了很多隔墙,导致部分空间布局不合理;

②业主有强收纳需求,需重点考虑如何增加储物空间;

③主卧空间墙体略微有点异形,影响整体空间的构造。

 

01.拆除多余隔墙,让布局更合理

 

1111

1111

△空间改造3D图

针对户型设计难点①:设计师将原始户型中开发商做的3面隔断墙拆除,让客厅、次卧获得更多空间,解决布局不合理的尴尬。

 

1111

1111

△客厅效果图

改造后的客厅空间面积几乎是之前的两倍,纵向的构造让空间也更具延伸性。而在风格上,考虑到业主喜欢传统的美式风,茶几、电视柜、沙发……设计师采用了“重美式元素”的软装来打造质感。

 

同时融入脏粉色与深蓝色作为点缀,极具跳跃性的色彩打破了传统美式风的沉重感,让全屋更显温馨与轻盈。

 

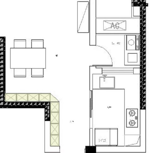
02.玄关做鞋柜+酒柜,解决收纳

 

1111

1111

△玄关改造后

针对户型设计难点②:在入户玄关区,设计师在原有的墙体下顺势而为,利用墙体转角打造了一面鞋柜+酒柜的L型柜体,为客厅提供储物空间。

 

1111

1111

△餐厅效果图

依墙而设的柜体是玄关区整面墙体“开发”的高光之处,鞋柜+酒柜的二合一设计,既满足了业主的收纳需求,又具备展示功能,真·实用。

 

03.推移主卧墙体,让空间更方正

 

1111

1111

△主卧改造后

针对户型设计难点③:将主卧与次卧之间的部分墙体向右推移,使墙体处于一条水平线上,解决原始户型中主卧墙体不规整的问题。

 

1111

△主卧效果图

在色彩上,主卧大面积采用绿色来营造氛围,自带“森林气息”的墨绿色背景墙,将卧榻休息之地与其他空间分割开来,并起到点缀的作用。

 

04.其他空间

 

1111

△多功能房效果图

沿窗而设的榻榻米将原本的飘窗区域有效利用起来,形成空间统一。同时在床榻“注入”可升降的桌子,休憩之地瞬间变为茶室,既可满足业主强收纳需求,又赋予了空间功能性的多元化。

 

1111

△儿童房效果图

儿童房则采用鲜亮的蓝色,搭配粉丝做点缀,增加卧室的趣味性。

 

1111

1111

△卫生间效果图

卫生间同样极具设计范儿,色彩、花纹相同的白色墙/地砖扩充视觉空间;兼具除雾功能的LED镜子,从细节上提升居家生活的幸福感。

 

好的设计,是要在住宅功能与屋主需求中找寻平衡点,解决户型bug的同时,为业主“量身定制”属于TA的理想·家。


上一篇:谁说黑白灰没有温度?这套103㎡套三实现了我对家的所有渴望 下一篇:北大资源颐和翡翠府112㎡现代风套三,简约不简单的居心地

相关推荐:

评论(共0条)


最新评论

免费装修设计