欢迎来到筑巢家

您的位置:筑巢家 >学装修 >装修流程

北大资源颐和翡翠府112㎡现代风套三,简约不简单的居心地

125人已浏览 时间 : 2023-05-24 20:23:03

[ 手机扫码 ]

导语:楼盘名称:北大资源颐和翡翠府硬装设计:U家工场设计风格:现代外框面积:112㎡装修价格:40w(硬装16.5w+定制柜体5.5w+软装11w+家电7w)…

 

楼盘名称:北大资源颐和翡翠府

硬装设计:U家工场

设计风格:现代

外框面积:112㎡

装修价格:40w(硬装16.5w+定制柜体5.5w+软装11w+家电7w)

 

 

业主小采访

—The interview

 

本屋业主佛系夫妻孙小姐和王先生,在生活中对很多小事儿都不爱操心,但看似佛系的他们并不是对一切没有要求,而是追求“简约不简单”的生活态度。对于家,亦是如此。

 

1111

▲孙小姐&王先生

 

在此之前孙小姐和王先生已有过一次装修经验,他们发现不管是前期设计还是后期维护,显现的问题都非常多,后来通过平台推荐找到U家工场。从一开始的有疑虑,到后期完全放手全权交给设计师打理,中间只用了短短15天的时间。今天就让我们走进他们爱的小屋吧~

 

 

户型分析

—The house type

 

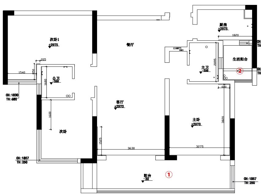
孙小姐提到本屋仅是用作过渡使用,以后会考虑换更大户型(再次感叹,有钱真好),因此不希望在户型改造上大费周章。设计师在了解实际需求后,对全屋只做出了如下2处小改动。

 

1111

▲原始户型图

 

①新建墙体将原始阳台区域一分为二,分隔为景观阳台(与客厅相连)与化妆间(并入主卧)。

②打掉隔墙,将空调外机位置纳入生活阳台,增加生活阳台面积,方便日常使用。

 

1111

▲平面布置图

 

 

色彩分析

—Color analysis

 

利用柔灰色的硬装整体色调与色彩跳跃、对比度高的软装相碰撞,打造了互相制衡协调的空间色彩组合,柔中带刚、冷暖相融。

 

1111

 

 

玄关

—The hallway

 

浅灰色定制鞋柜完美地将强弱电箱隐藏起来,虽然空间狭小,但基本满足基础收纳需求,没有多余装饰,简单实用。

 

1111

 

 

餐厅

—The dining hall

 

浅灰色定制餐边柜与鞋柜相互呼应,拥有储物功能的同时,白色大理石纹展示柜的加入更是让整体颜值提升了一个level。

 

1111

 

利用色彩极其“抢眼”的软装与挂画交相辉映;再利用餐边柜把手、餐椅桌腿、吊灯等金属元素凸显品味与质感;最后丝绒材质的餐椅,瞬间让整个空间都温柔了起来。

 

 1111 1111 

 

 

客厅

—The living room

 

大理石定制电视墙与餐边柜、鞋柜同色同质,使客餐厅区域更好的融合在了一起,营造出协调统一之感。搭配深色墙漆,设计感十足。

 

1111

1111

 

深色地面VS浅色墙面,空间颜色更具层次感。颜色活泼的挂画,为空间注入了满满活力,打破沉闷。

 

1111

 

考虑到空间的延续性,没有做复杂吊顶,只在需要光源的地方做了部分边顶。这样做,在视觉上也能更显大气。

 

1111

与客厅相连阳台打造了整面墙的储物柜,延续了餐边柜的设计,为家里增添又一储物空间的同时,美观精致。

 

 1111 1111 

 

 

主卧

—Master bedroom

 

为了满足对储物有极大需求(衣服堆成山)的业主,设计师特地在不大的主卧空间设计了三个衣柜,以及给女主人放置包包的展示柜和梳妆台,功能强大无以复加。

 

1111

1111

 

女主人喜欢的蓝色在这里也得以运用,深蓝色的墙漆与蓝色窗帘,赋予卧室安静典雅的气质。

 

1111

 

而留白的墙面则是用来为投影准备的,一整面墙的超大屏幕,带来极致的感官体验。

 

 

次卧

—Guest bedroom

 

保留L型窗户,使采光能够充分照耀到房间的每个角落。如上述所说冷暖融合,灰色大背景下些许亮色软装的点缀,让一切都恰到好处。

 

1111

1111

 

 

卫生间

—The toilet

 

全框镜面使用,在视觉上起到了空间延展作用。灰色地砖+大理石纹卫浴柜,与全屋风格完美呼应,彰显出现代风的干练简洁。

 

1111

 

 

厨房

—The kitchen

 

厨房区域采光不算好,选用白色PET面板能最大限度的将空间“照亮”。灰色墙砖和台面与纯白的搭配,经典有质感。

 

1111

 

 

软装清单

—The list

 

1111

 

看完孙小姐&王先生的家,小U感受到了,邂逅生活最美的样子,原来一切都可以如此简单。心之所往,便是家的地方。

 


上一篇:过道改衣帽间?玄关做酒柜+鞋柜?看设计师如何将“网红楼盘”金地天府城众多难点一一击破 下一篇:理工boy的家可以有多美?这套86平三居拆了7堵墙后,用经典蓝打造出神仙轻美风

相关推荐:

评论(共0条)


最新评论

免费装修设计