欢迎来到筑巢家

您的位置:筑巢家 >学装修 >装修流程

理工boy的家可以有多美?这套86平三居拆了7堵墙后,用经典蓝打造出神仙轻美风

151人已浏览 时间 : 2023-05-24 20:33:54

[ 手机扫码 ]

导语:房屋类型:清水楼盘名称:香山长岛楼盘户型:套三外框面积:86㎡装修风格:轻美整装价格:40w从事汽车硬件设计工作的唐先生是个real理工男,工作性质使他常年保持严谨且带有轻微强迫症。因此,质感是唐先生对于家的最大诉求,任何细节都要力求完美。同时唐先生也拥有感性的一…

房屋类型:清水

楼盘名称:香山长岛

楼盘户型:套三

外框面积:86㎡

装修风格:轻美

整装价格:40w

 

从事汽车硬件设计工作的唐先生是个real理工男,工作性质使他常年保持严谨且带有轻微强迫症。因此,质感是唐先生对于家的最大诉求,任何细节都要力求完美。同时唐先生也拥有感性的一面,沉迷于电影、动漫、人工智能的他,希望把自己的爱好也能融入家中时刻陪伴。

 

 

 

 

效果图VS实景

超越效果图的精致实景

 

 1111编辑搜图 1111编辑搜图 

 ▲客餐厅效果图                 ▲客餐厅实景

 

 1111编辑搜图 1111编辑搜图 

 ▲主卧效果图                    ▲主卧实景

 

 

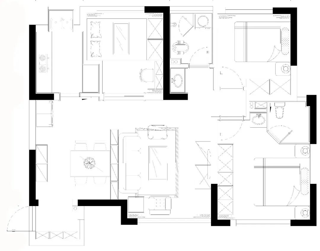
户型分析

 —The house type

 

1111编辑搜图

 

厨房过小、卧室开门正对镜子、主卧门正对客厅无隐私性、主卧布局不合理.......这间看似“功能齐全”的套三其实暗藏不少bug,因此设计师在户型改造中也花了许多功夫去解决。

 

1111编辑搜图

▲原始户型图

 

①扩大厨房空间,为橱柜预留位置

拆掉图示AB点墙体,新建L型新墙适配高柜,B点处墙体改为推拉门并将电箱移动到新建墙体上。

②改变次卧门洞位置,使之不正对卫浴柜镜子

拆掉图示C点墙体,新建次卧门洞与次卫分离开,进门不正对次卫。

③给异性浴缸预留位置,让主卫布局更加合理

拆掉图示D点墙体,用钻石型玻璃隔断隔出主卫,同时能正好放下鹅蛋型浴缸。

④在图示E点延长电视背景墙,增加主卧私密性。

 

1111编辑搜图

▲改造后平面布局图

 

 

色彩分析

—Color analysis

 

除了黑白灰的基调外,贯穿全屋的还有国际权威色彩机构发布的2020年度代表色——classic blue经典蓝,简约中流露优雅的经典蓝让人感到平和安静,这也非常贴合业主的个人喜好。

 

1111编辑搜图

 

 

餐厅

—The dining hall

 

经过入户区域便是餐厅,由于是横厅户型,在客餐厅中间位置定制了一面矮柜来区分两个区域,沙发背后有了足够“安全感”的同时,也给全屋增加了足够的收纳空间。

 

1111编辑搜图

 

与矮柜同色同质的美式黄杨木餐边柜让整体统一和谐,放上摆件和咖啡机等小家电,顿时提升家居品质感。

 

1111编辑搜图

 

搭配同样精致的美式进口橡胶木餐桌餐椅,极大提升用餐体验。

 

 

客厅

—The living room

 

与餐厅“一柜之隔” 的客厅,延续了轻美带来的精致家居体验。灰调石材纹与浅灰墙面低调内敛,为空间打下沉稳基调。

 

1111编辑搜图

 

棕色皮质沙发承袭了美式风格一贯的贵气与情调,拥有流畅线条感的实木茶几、电视柜与电视墙造型石膏线match十足。

 

1111编辑搜图

 

值得一提的是,有趣的客餐厅的呼应。花朵造型被运用到餐厅墙壁的浮雕装饰与主灯、壁灯上,抱枕与挂画的排列、颜色、图案也有精心统一规划,视觉上非常有延续性。

 

1111编辑搜图1111编辑搜图

 

 

主卧

—Master bedroom

 

整个家中改动最大的莫属主卧,要在仅14㎡的面积中融入通顶大衣柜、浴缸、投影,还要解决卧室门直对客厅的bug布局,设计师可谓是绞尽脑汁。

 

1111编辑搜图1111编辑搜图

 

原始主卫墙体拆除后,用玻璃隔断替代。将洗手台外置,给开门空间预留足够位置。洗手台处地面部分使用地砖与卧室木地板区别开来,防水防潮。

 

1111编辑搜图

 

钻石型的淋浴间完美适配鹅卵形浴缸,浴缸前利用壁龛将小电视嵌入,回到家后尽情享受美妙的沐浴时光。白天,在百叶窗的折射下,制造出绝佳的光影效果。

 

 1111编辑搜图 1111编辑搜图 

 

 

书房

—The study

 

黑色极简边框的超白柜,拥有超强储物的同时通透感十足,在视觉上空间显大,柜内安装智能光源,唐先生的超多手办模型在这边找到了"栖息地“。

 

1111编辑搜图

 

眼尖的小伙伴一定发现了,这里的榻榻米比普通款更高一些,这是因为里面隐藏了一张麻将桌。没错!当收起麻将桌时铺上软垫和小桌子这里是休闲品茗区,升起麻将桌这里便成为了唐先生和麻友们欢乐的海洋。

 

1111编辑搜图

 

 

次卧

—Guest room

 

完美复刻了主卧精致感的次卧,缩小版的次卧将优雅的经典蓝运用得淋漓尽致。床头浮雕的挂画让空间更加活泼灵动。

 

1111编辑搜图1111编辑搜图

 

厨房

—The kitchen

 

L型的满排经典蓝定制橱柜,相比浅色系橱柜增添一份稳重内敛。另一侧的定制高柜除了用作日常储物外,能将蒸烤箱完美嵌入其中,满足了唐先生对于厨电的高要求。

 

1111编辑搜图

 

房子是冰冷的建筑,但家不是。将爱与心血融入家中,它将会给你一个满意的答复。

上一篇:北大资源颐和翡翠府112㎡现代风套三,简约不简单的居心地 下一篇:不拆墙不重装?这3个低成本改造妙招,让你的精装房颜值直线上升

相关推荐:

评论(共0条)


最新评论

免费装修设计