欢迎来到筑巢家

您的位置:筑巢家 >学装修 >装修流程

看完招商时代公园这套152m²中古氛围家,极简风再也不香了!

158人已浏览 时间 : 2023-09-09 15:20:38

[ 手机扫码 ]

导语:…

#成都精装房设计 #成都精装房改造 #成都装修设计 #致美优家 #U家工场#招商时代公园

建筑艺术性极佳的招商·时代公园,在自然主义设计理念下,使用大面积Low-E玻璃创造超高窗墙比,视觉上现代、整洁又耐看,完全符合时下的建筑审美。

本期「致宅生活研究院」在对楼盘进行现场勘查和业主需求深度研究后,结合大宅品质呈现感、功能实用性、视觉颜值等多重维度,探索出了属于152m²户型的精装新可能


识别二维码免费获取设计预案

楼盘:招商·时代公园

面积:152m²

户型:4室2厅2卫

类型:精装改造+全案软装



法式优雅、后现代的摩登和浓浓的中古风情,多种风格如何和谐混搭在同一个家中?还能让每一个角落都美得高级而不失温度?

对于这对喜欢复古风的新婚夫妻来讲,为新家注入生机和浪漫,享受宅家的每一个瞬间是TA们所期待的新变化。家可以是夏夜里阳台上的一杯冰茶,可以是充满包裹感的柔软沙发,也可以光穿过古典屏风带来的治愈感……




踏进他们的家,仿若定格在18世纪的老电影中,随处透露优雅与秩序。

墨绿岛台、藤编餐椅、宝格丽岛台、精美的艺术漆……每一件选材搭配都在诉说着对家的个性定义,美到叫人挪不开眼。

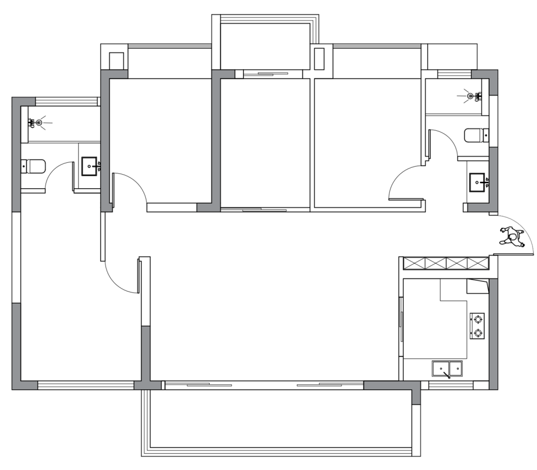
招商·时代公园原始户型方正,动静分区明确,近7m的超大观景阳台视野非常通透,整体空间布局优势明显。

但屋主对于原始精装风格不太喜欢,由于面积问题,餐厅也缺乏可以进行简餐操作和小电器存放的位置,另外对于如何利用双阳台打造日常休闲和家政储物均能满足的功能区也有待解决……

TA们希望设计师通过部分精装改良,最大程度优化出一个颜值和功能完美演绎的居所。

原始户型图▲

平面布局图▲

改造点:

➊. 将阳台扩入客厅,并将原始承重柱、客厅吊顶+横梁使用圆弧造型包裹处理,既能避免日常磕碰也更好的提升了公区整体审美感。➋. 原始电视墙拆改,与阳台承重柱一体化设计弱化剪力墙存在,拉伸整体视觉效果。➌. 生活阳台与景观阳台间使用梦幻帘进行软隔断,完成视觉隐形设计效果整体干净整洁。❹.入户走廊对侧利用墙面厚度内掏10公分,打造内嵌小端景,丰富归家仪式感。❺.多功能房墙体内推30公分,新建餐边柜储存家用小电器,解决收纳痛点。❻.书房与次卧墙体改造为“双面展示柜”,两部分各有所用将空间利用到极致。❼.餐岛区与生活阳台连接处,通过打孔迁移水位,实现西厨自由操作用水。

奶白色泡芙沙发、花瓣茶几、复古屏风、丝绒质墨绿单椅……不同的材质与色彩在同一空间融合,视觉瞬间就可以被拉回到18世纪在客厅与浓浓的中古风情来一场邂逅。

阳台下拉的梦幻帘,让光影可以在室内变幻出不同角度,视线定格在每一个角落都能感受到如同电影般的氛围感。

电视背景墙作为颜值输出的主力存在,不容忽视。在对原造型做拆除后,设计师利用阳台承重柱将背景墙相连接做了一体化设计。通刷的艺术漆质感满满,点缀木饰面材质与灯带将整个视觉感延伸的非常大气,墙角圆弧处理的方式也完美的对剪力墙结构进行了弱化。

除了电视墙的圆弧造型运用,在入户走廊的正对面,设计师同样用弧形凹槽搭配绿植和灯光打造了一处仪式感端景,让公区的整体视觉效果呼应的更为和谐。

休闲阳台由于与生活阳台相邻,为保证阳台的整洁和清爽感,这里亦使用梦幻帘对两个区域进行软隔断。在内部,将洗烘、家政收纳、晾晒区合理布局,既达到了外观设计的隐形感,也很好地解决了家庭生活的便利性。

另外一侧,则结合女主人的兴趣爱好单独打造了一个音乐角出来,木百叶、屏风和梦幻帘的选择让角落不至于过于闭塞,但又很好的保留了独处的私密性。平时在这里喝喝下午茶、听一首自己喜欢的唱片,可谓治愈感十足。

餐厅选用原木餐桌搭配藤编元素的餐椅条凳,肌理感点缀出的细节十分考究。旁边的墨绿色岛台亦与客厅色彩形成了呼应,融合宝格丽天然花纹的设计凸显着一丝古典精致感,让复古秩序与现代生活在这里完成了一次亲密对话。

餐厅另一个亮点,则是设计师“无中生有”创造出的这一餐边柜。

由于户型面积限制,成品餐边柜无处安放的问题一直困扰着屋主,设计师为解决这一问题,将餐厅旁的多功能房间墙体内推了30公分,利用该区域打造了一个既能收纳小家电,又能满足日常餐厨收纳的强功能性餐边柜。

宝格丽花纹搭配中古风的骨骼线条,让餐区散发出独特又迷人的优雅气质,勾勒出了一个艺术美学和时尚气息浓厚的场域。

此外,西厨岛台还利用生活阳台进行了水位迁移设计,方便日常用水的同时也为屋主留出了更多的时间与家人一同享受美食乐趣。

主卧同样延续公区风格,营造出了自由慵懒的生活氛围,以奶白、灰绿和木色为主的经典色彩搭配,一踏入便能立刻让人放松下来。

另外,家具的选品细节处也无不彰显这屋主对品质的追求。落地灯和小台灯的局部柔光与顶部灯带光源相互映衬将氛围拉满,试想疲惫的夜晚窝在松软床铺上,与爱人一同享受静谧的夏夜时光,是多么浪漫的体验~

书房在复古的基调下化繁从简,运用木质元素寻找现代与复古的平衡点,更多地在空间拓展性上发挥了设计巧思。

这里设计师将书房与相邻次卧间的墙体拆除,替换成了一面可以做展示使用,另一面可以做封闭式收纳的“双面柜体”,让设计思考真正结合家庭真实需求点,为不同空间打造了更加多元丰富的可利用场景。

搭配超长的定制书桌和吊柜,日常屋主二人同时在这里办公或阅读都能拥有各自舒展的空间,做到互不干扰。

:

释放一些区域,合并一些空间,让每个空间都恰如其分地发挥它的作用。家,是可以变化的,一个流动的家,就像一条缓慢的河,我们泛舟在其中摇摇晃晃,沿途看到的皆是美景。

从结果来看,这个家每一个布局之处都在绽放着属于屋主的喜好品味与审美态度,正是这样的设计起点,让一切都变得更加有趣。

上一篇:无机胶黏剂种类和在人造板中的应用! 下一篇:麓湖188㎡大平层竟没生活阳台!设计师怒拆两面墙,用三道弧线化解户型硬伤!

相关推荐:

评论(共0条)


最新评论

免费装修设计