115人已浏览 时间 : 2023-09-09 15:23:45
导语:麓湖生态城琉璃溪岸188㎡|清水房全案|4室2厅2卫本期的屋主是喜欢松弛自然生活郑先生夫妻,选择「都市绿肺」的麓湖,正是看中了城市公园的好风景。房子日常是屋主夫妻居住,同时有两…
麓湖生态城琉璃溪岸
188㎡ | 清水房全案 | 4室2厅2卫
❶"
本期的屋主是喜欢松弛自然生活郑先生夫妻,选择「都市绿肺」的麓湖,正是看中了城市公园的好风景。
房子日常是屋主夫妻居住,同时有两组「潮汐成员」孩子和老人,屋主同样贴心为他们准备了各自的房间。
屋主重视归家的仪式感,希望拥有更开阔的烹饪空间和公区,设计师通过简单的墙体调整,为他们打造了仪式感满分的门厅、通透的半开放厨房以及隔而不断的客厅和书房。
❷"
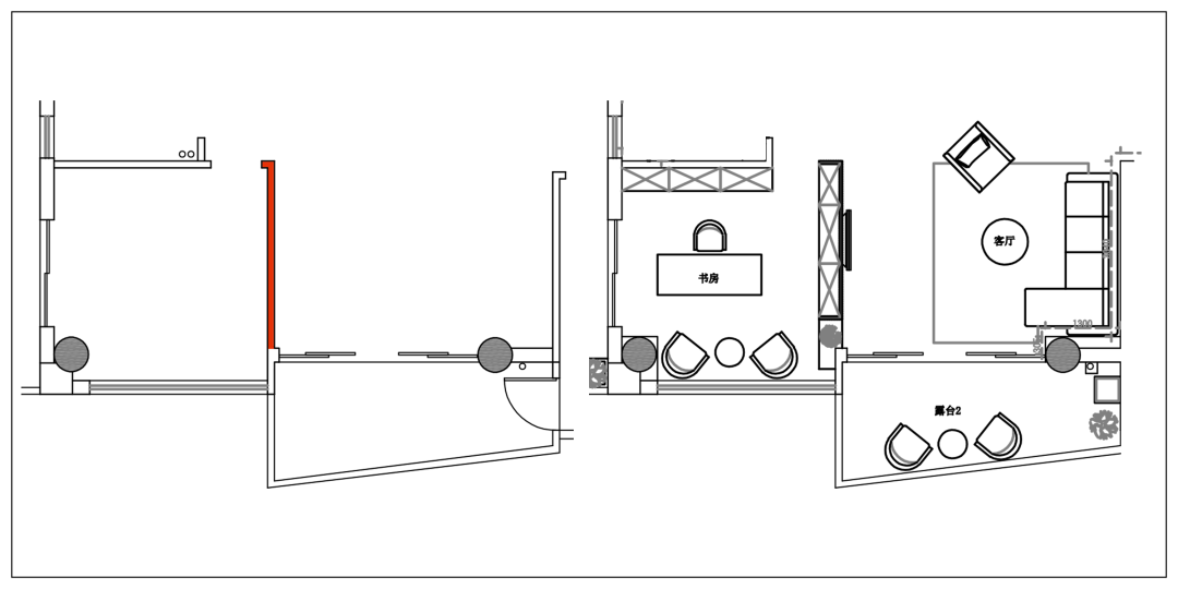
°门厅
地产老炮们常说,房子的品质如何,一看门厅便知。
琉璃溪岸150户型的门厅呈长方形,承担着郑先生一家四季鞋履、快递暂存、洗烘家清等多重功能,三面定制收纳空间可以轻松满足所有需求,但直接加柜子会让门厅骤显逼仄。
设计师拆除了靠近厨房的墙体和进入客厅门洞,已达到定制与硬装严丝合缝,入户门正对的柜体使用一体成型的金属弧形板做内凹设计,板材是设计师特别为屋主定制的,加上小雕塑达到入户见景的效果,也更显宽敞。
△ 玄关改造前后平面对比
△ 入户见景 效果与实景对比
靠近厨房的一侧则作为悬空鞋柜使用,日常鞋履直接在柜下穿脱,不显凌乱。
中线增加抽屉方便存放出门必备小物,也让柜体造型更有层次,镜面柜门省去了穿衣镜的空间,颜值与功能兼备。
°客厅
客餐厅使用了经典竖厅布局,特别之处在于电视墙是拆除原有墙体后重构的。
与电视墙背后的小书房打通,以双面柜的形式进行隔断,地台与吊柜组合使用,让书房与客厅隔而不断,靠近客厅的一侧以石材打底,85寸电视上墙,干净清爽又不失品质。
△ 客厅书房打通前后平面对比
°半开放书房
双面柜靠近书房一侧承担了书籍和客厅收纳功能,书房不设门,半开放式格局让办公阅读空间都更为开敞。
背对另一面定制柜设置书桌,低头是开卷有益,抬头便置身景中。
△ 玻璃展示柜内设有灯带
°餐厨
餐厅与厨房关系紧密,原始厨房封闭狭小,只有一个与门厅相连的小窗,我们封闭了此窗以便安置门厅鞋柜,同时打开并内推面向餐厅的墙壁。
虽然整体厨房面积减少,但西厨电器和冰箱都移至门外,U型橱柜上下空间均成为有效收纳空间,实际使用是更为合理方便的。
同时使用折叠推拉门,作为采光来源,非爆炒时间均可打开折叠门,增加餐厨的空间延伸感。
△ 餐厨改造前后平面对比
△ U形厨房操作台
餐厅使用定制柜体将外移电器无缝内嵌,餐边柜深度与承重柱齐平,让破坏空间完整的承重柱“消失”也提供了充足的食品和日用消耗品囤货空间。
餐桌使用与电视墙呼应的石纹台面,搭配与沙发同色系的浅卡其餐椅,温柔沉静,协调统一。
°主卧室
主卧室面积充裕,以营造舒适助眠环境为设计核心,延续使用木色墙板打造前面层次分割,中性配色贯穿始终,静谧安宁的空间氛围油然而生。
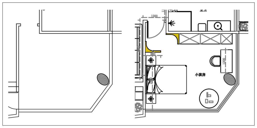
°孩子房间
钻石型的孩子房间拥有270°超强景观,其中较长墙面附近有一根承重柱,会阻挡床周动线,只有直冲门口的墙面可以作为床头墙。
设计师使用两个弧线轻松打破困局,衣柜内推加入木质弧线,床头窄隔断也增加弧线,解决了因增加隔断而产生的多夹角堆叠问题,避免房间门直对床头的同时使动线更为宽敞。
△ 儿童房双弧线隔断
°父母卧室
父母来家里的频率较低,房间是床+衣柜的经典格局,设计师使用木质墙板包裹承重柱与背景墙相连位置,弱化了柱体存在感,也增加了墙面造型的灵动。
如果你也喜欢这套案例
添加微信ujia01
即可与本案设计师1v1沟通新家规划
❸"



左右滑动查看户型更改
❶ 入户与厨房间窗口封闭,墙体拆除改为薄墙,增设鞋柜;
❷ 厨房与餐厅间墙体拆除内推,改为半开放厨房;
❸ 客厅与书房间墙体拆除,增加镂空双面定制柜,打造半开放书房;
❹ 儿童房门口处使用双弧线定制隔断,丝滑进入室内同时保证隐私。
最新评论
在线客服
官方微信
联系电话
返回顶部