142人已浏览 时间 : 2023-09-09 15:36:06
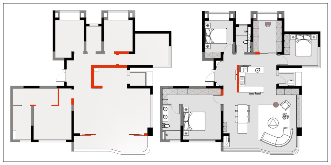
导语:△平面规划图(红色为新建/拆除墙体)本案屋主是一对创业型夫妇,新居主要是一家三口居住,由于小朋友即将升学步入初中,二…
融侨望云 | 170㎡ | 三室两厅两卫
清水全案设计

△ 平面规划图(红色为新建/拆除墙体)
本案屋主是一对创业型夫妇,新居主要是一家三口居住,由于小朋友即将升学步入初中,二人对于孩子平时居家的教育氛围营造非常重视。TA们希望家的每一个空间都是具有呼吸感的存在,能满足一家人彼此互动陪伴的成长需要,可以由内而外获得一种家的温柔滋养。
170的原始户型方正,端厅270°的视野采光极佳,整体公区可利用空间大,但全屋户型的可储物空间却比较局促。因此设计师针对公区进行了3组洄游动线规划,打造“不走回头路”的环状布局,连接客餐厅、卧室及儿童房。
通过环形动线,将大小空间都串联起来让动线更加流畅开阔,从而达到提升生活效率及空间利用率的目的。
客厅的规划上设计师与屋主一致认为就孩子的成长过程来讲,行为习惯的培养至关重要,而家庭空间的布局亦在潜移默化影响着人在空间中的行为。
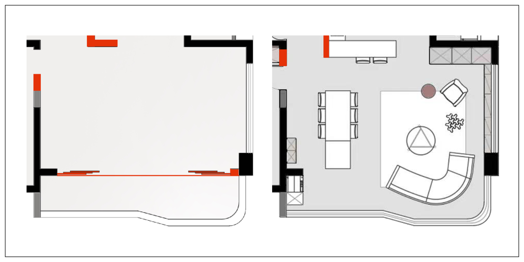
△ 客厅平面图
理解屋主想要营造家庭学习和互动氛围的基本诉求后,设计师打破了传统公区概念,采用“去电视化”洄游设计动线把阅读、休闲交流等日常行为在空间中形成了一个渐进序列。
将可容纳100+图书的L型书架作为客厅活动中心,真正做到去客厅化,打造了一个“不打扰却看得见陪伴”的理想家庭厅。
阳台与客厅打通后,整个公区视野明亮宽敞,简单搭配弧形沙发、颇具造型感的懒人单椅与组合茶几,这里就彰显出了屋主简约生活的艺术品味。
一旁钓鱼灯的点缀亦让空间拥有了错落有致的视觉美感,使全家人随时可以在轻松流动的空间韵律中,享受被喜爱事物所包围的美好所在。
柴米油盐的琐碎日常便是生活的艺术。餐岛区与客厅视觉一体化融合,结合生活便捷性的同时也充分考虑了家人间的交流互动性。
内嵌式烤箱及冰箱设计在方便平时使用的同时又保证了整个餐区简洁美观的调性。
△ 餐厅平面图
拆除墙体后特意打造的U型厨房在一侧增加了操作台面,既能切洗菜、也能当作小吧台和公卫洗手池,真正做到一厨多用。平时屋主做饭时家人在这里帮忙备菜出菜也能分担一部分家务。
另外,考虑到厨房噪音与油烟的问题,设计师还在厨房洗菜位置增加了一个隐形门,关起来就可以有效解决这一担忧,不用的时候推开也能让整个空间更显通透。
除了厨房的洄游设计,在中岛区我们同样能看到这一设计原理的运用。
六人位餐桌与岛台的一体化设计方便一家三口就餐的同时,也可以当作亲子手工操作台使用,贴心地为公区增加出一个日常亲子紧密互动的陪伴场域。
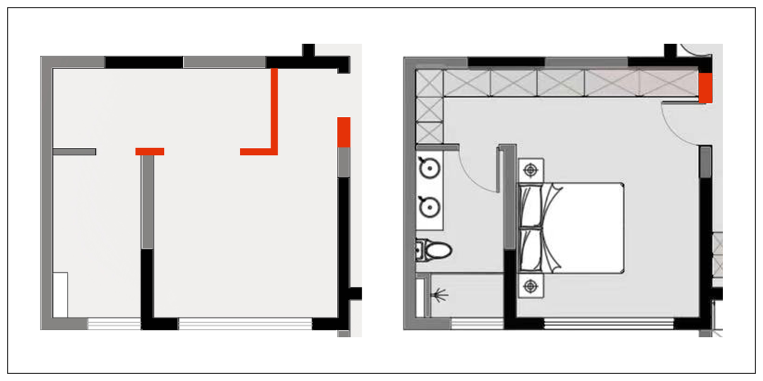
睡眠空间布局由比例柔和而精准的细节主导,无论是背景格栅饰面造型、软装颜色上都完美协调呈现出独特而现代的设计风格,给主卧增添惬意与舒适感。
△ 主卧平面图
作为私区,除了隐形的情感需求外,储物收纳规划也是相当重要的。设计师拆除了进门处原始墙体单独改造了一个超大L型衣帽间来供男女主人存放衣物。改造后的格局令整个卧室更显宽敞,长短衣物功能分区合理的设计让日常存取衣物更加轻松便捷。
无主灯设计搭配氛围灯带与室内整体构成和谐的光影互动,将空间氛围也显得格外精巧和谐。
宅家享受和家人间的热络联结,感受点滴设计细节带来的氛围变化。我们始终相信家的治愈力除了设计上的构思,更在于屋主对家长此以往的点滴热爱。
U家正将更多的目光聚焦于让空间满足业主的真实心理诉求,为客户打造一处真正可以好住的美好家。
最新评论
在线客服
官方微信
联系电话
返回顶部