110人已浏览 时间 : 2023-09-09 15:58:50
导语:❶"本期屋主从事工装行业,对工艺技法和材料结构都有着颇深的了解,与爱人都信奉「物有所爱,人有所归」的生活方式,希望新家可以格局开敞、细节极…
碧云天骄
135㎡ | 精装全案 | 4室2厅2卫
❶"
本期屋主从事工装行业,对工艺技法和材料结构都有着颇深的了解,与爱人都信奉「物有所爱,人有所归」的生活方式,希望新家可以格局开敞、细节极致。
设计师通过房间合并和室内造窗等格局调整,使用定制与成品的巧妙组合,为屋主实现了不落俗套的定制美宅。
❷"
°客厅
客厅围绕屋主喜爱的格调打造,将阳台空间纳入室内,简洁有力的横厅布局,横平竖直的硬装及定制线条,让公区视觉划分非常鲜明,映射出屋主极强的逻辑性。
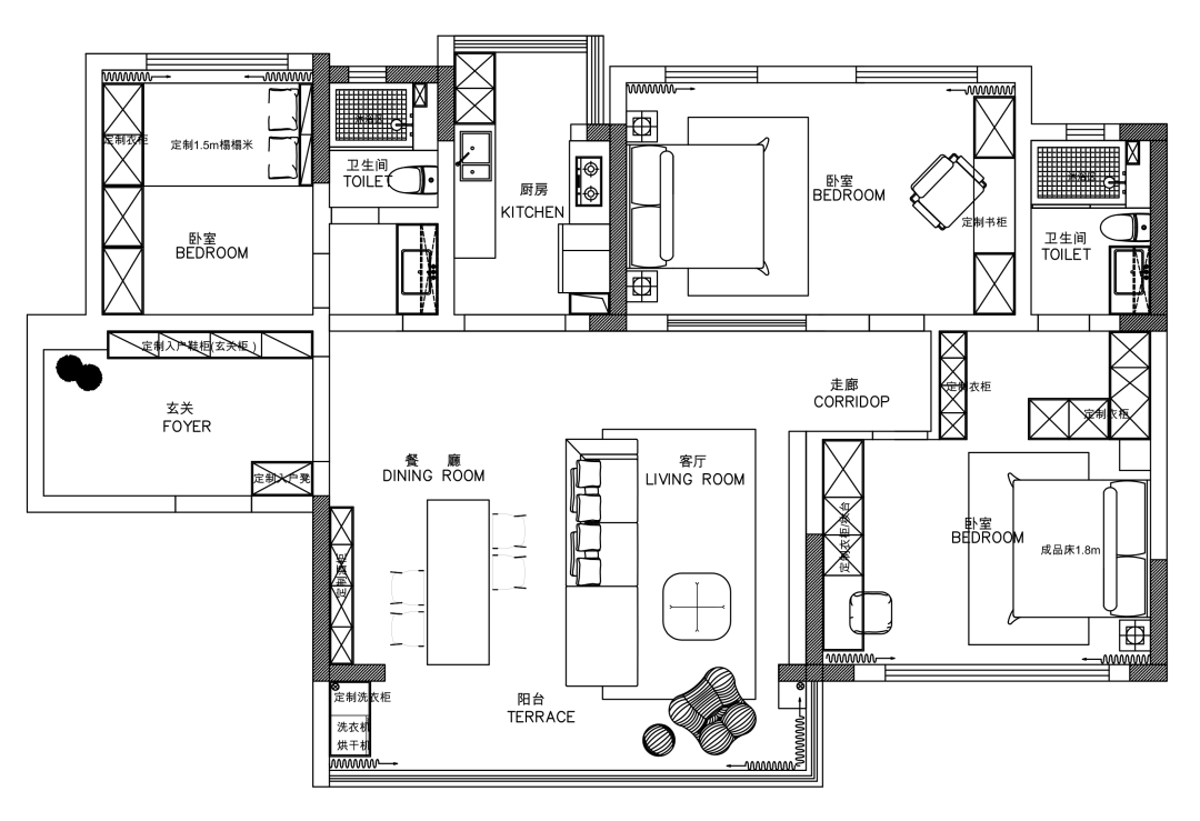
客厅平面布局
屋主喜欢100寸的大电视,横厅电视墙宽度有限,我们以同色系内嵌的方式弱化电视视觉上的笨重,让电视成为定制造型的一部分。
靠近阳台一侧的垭口使用柜门上墙的方式处理,统一包边,将阳台「拉」进客厅,有效增加视觉宽度。
沙发选用单扶手的模块组合,真皮材质与电视柜质感呼应,全屋品质瞬间提升。
双面可坐的造型让餐厅与客厅的联动更为紧密,也让阳台有机会发挥出更多功能。
由于原始户型中厨房外的生活阳台较窄,且易出现油烟,所以设计师直接将其并入厨房增加橱柜收纳,将洗烘和家政空间移至客厅的景观阳台区域。
定制阳台柜让洗烘一体机保持简洁美观,同时落地柜隐藏了扫拖一体机,可接入上下水,无需手动更换,减少繁琐家务。
°餐厅
餐厅的重点在餐边柜的打造上,无操作台的反常规餐边柜,为屋主的藏酒留有足够展示空间,入住后也不必担心台面摆放混乱影响家中颜值,加长岩板餐桌完全足够承载日常用餐需求。
°主卧室
主卧室延续黑白灰色彩,通过落日灯和单人沙发增加温暖色相。
床头在墙板内增加灯带,右侧黑色的收紧与左侧床头柜对应柜体的白色呼应,拉出黄金比例色块节奏。
设计师将一侧床头柜与衣帽间柜体联通定制双面可视玻璃衣柜,加上床尾墙面,打造三处衣柜收纳,屋主夫妻的衣服轻松容纳,使用不打挤更易拥有高级感。
° 孩子房间
屋主的小孩已经是少年阶段,作为家中的潮汐成员,屋主依然为他精心准备了自己的房间。
打通两间小次卧,将房间打造为书房、衣帽间、卧室、游戏房三合一空间,蓝紫氛围灯光的加入,让室内白天黑夜呈现两种不同风格。
为解决房间窗口尺度不足导致憋闷感,我们在靠近客厅的一侧开景观窗,配合黑色百叶和极窄窗口,拥有呼吸感的同时也保护孩子隐私。

床尾墙面储物柜+书柜的组合模式,留有足够的活动和学习空间,屋外窗景绝佳,屋主偶尔也可以使用此处办公。
书桌窗景 · iPhone拍摄原图
° 父母房
父母房是家中唯一使用木色的空间,原木背景墙+床头柜,与镂空实木床头相呼应,营造质朴稳重的氛围。
床头柜与衣柜一体化定制,在有限尺度内实现多重功能。
❸"


左右滑动查看户型更改
❶ 拆除景观阳台推拉门,增加公区可用面积;
❷ 拆除电视墙延伸出的多余墙体,让空间更为开阔;
❸ 拆除厨房与生活阳台之间的墙体,增加橱柜面积;
❹ 打通两件次卧,在与客厅之间的墙面上开窗,增加空间开阔性;
最新评论
在线客服
官方微信
联系电话
返回顶部