140人已浏览 时间 : 2023-09-09 16:02:36
导语:△原始平面图“家”的定义是什么?是虽身处浮世,…
高线公园 | 188㎡ | 四室两厅
精装全案设计

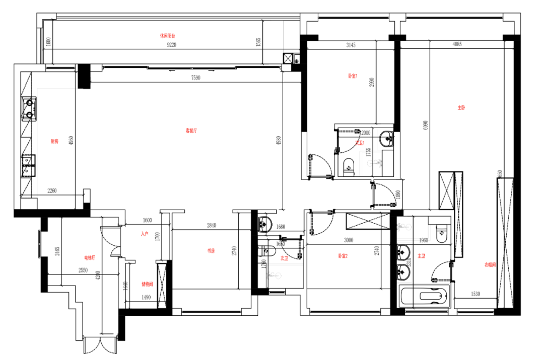
△ 原始平面图
“家”的定义是什么?
是虽身处浮世,只需踏进家门的一瞬间,即可释放疲惫,放松神经,进入自己的世界,是永远都存在的“一方净土”。
高线公园188原户型是标准大宅横厅,在不封窗方案中,我们将阳台与客餐厨合并统筹,形成LDKG模式的超尺度格局。不仅规划了景观阳台的观赏和休闲功能,还加入了室内外视线与场景的互动,把整个公区打造成现代住宅的空中花园,打造家人互动设计的天花板。
设计师在玄关处设置了端景造型,加入荔枝纹玻璃来达到光线的交互,为玄关引入更多自然光的同时也营造出朦胧的美感。
暖白色柜门搭配木纹框架,让整个视觉更有层次,推门而入的瞬间,即被眼前的画面所吸引,放下一天的疲惫。
△ 玄关设计手稿
原阳台尺寸有9m,设计师希望可以为屋主保留一个世外桃源般的空间,让居住者舒心惬意。
于是选择了不封窗,将原本面积过大且包含固定扇,对室内室外的交互都不太友好的推拉门更换为折叠门,以便最大程度的将室外景观扩入室内。
不管在哪个位置,只要把折叠门拉到极致,向外望去室内外再无边界,四季景色都尽收眼底。
吊顶部分采用木格栅装饰,用最原始的元素来还原自然的质感,设置近7米超长花池,观叶植物与花卉植物高低错落,搭配顶部吊灯,犹如空中花园一般。
除了观赏性,也考虑了身临其境的游玩性,一侧铺上石板与鹅卵石,形成天然的散步消食园路,另一侧则设置悬浮卡座,偶尔喝喝小酒,吹吹晚风,好不惬意。
屋主希望客厅可以不再是单调的观影围坐,而是可以成为一家人最多交互的陪伴空间,于是我们摒弃了传统电视墙的设计,将电视墙设置为更赋予意义的区域。
△ 电视墙手绘设计稿
电视墙的功能除了标准的收纳,额外增加书籍摆放,照片展示等,同时配备可以就坐的地台,让它充当偶尔的阅读角。
圆弧的设计元素也让空间有趣的同时让视觉更加柔美,搭配画镜电视,既有个性也让观影的自由都更高。
可随意组合的模块沙发,把客厅变成社交中心,让客厅与餐厅的交流更直接。
需要什么样的社交环境即可移动沙发,摆放成合适的样子,无论是饭前的家人交谈,还是饭后的欣赏美景,都能很好的契合。
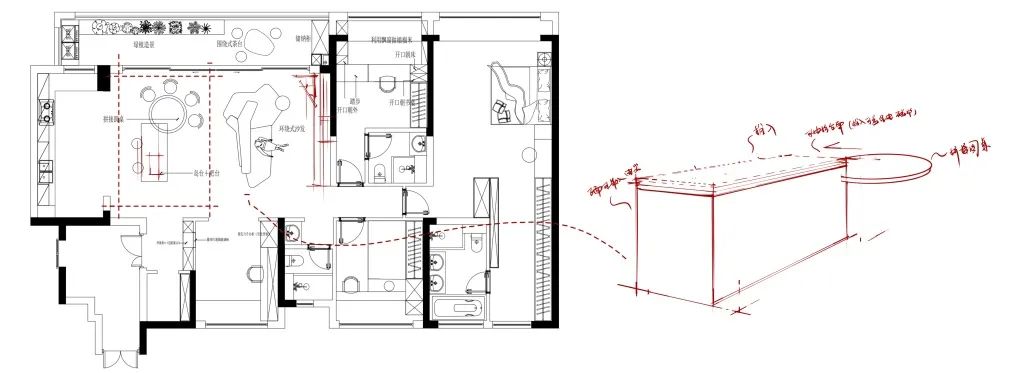
在餐厅部分加入大中岛,奢石的天然纹理提升了空间的审美格调,但不只是极致的美感更是功能的满载。
下方玻璃柜搭配灯带,让藏酒更显珍贵,上方可按生活需求搭配各类五金,让这里成为你的第二厨房。
△ 岛台手绘设计图
值得剖析的岛台藏着满满的“心机”,将电器收纳在下方,让空间更加整洁干净。可抽拉的台面,在不使用电磁炉时让统一性达到巅峰。
圆桌与岛台的咬合设计,能满足不同人数的用餐需求,天气好的时候,还可以把圆桌拉到阳台用餐。
让餐厅不再是简单的几桌几椅,空间限制被打开,岛与岛,餐与岛均有交互,备菜不再是一个人在厨房闷头忙碌,做饭也可以时陪伴与享受。
书房配备了收纳柜与展示柜,可以用于是日常的使用,另外考虑到收纳电竞设备,特别添加了洞洞板,可以随心所欲的安置屋主的热爱。
除此之外,也考虑了陪伴空间,利用飘窗搭起一个可盘坐的休闲地台,放上蒲团,家人在工作的时候自己也能倚靠在上面,喝会儿茶追追剧。
即使不说话,各自做着各自的事,也有家人在旁的安心感。
LDKG的设计打破了空间的限制让景观资源室内更大化,让家庭社交更亲密,将空间的观赏性和功能性都发挥到极致,设计的美感不在于表面,而是在于如何「沉浸于生活」。
最新评论
在线客服
官方微信
联系电话
返回顶部