175人已浏览 时间 : 2023-10-07 17:14:03
导语:△左右滑动查看一楼平面图△左右滑动查看二楼平面图…
中建锦澜壹号 | 230㎡ | 四室两厅三卫
精装房改造设计


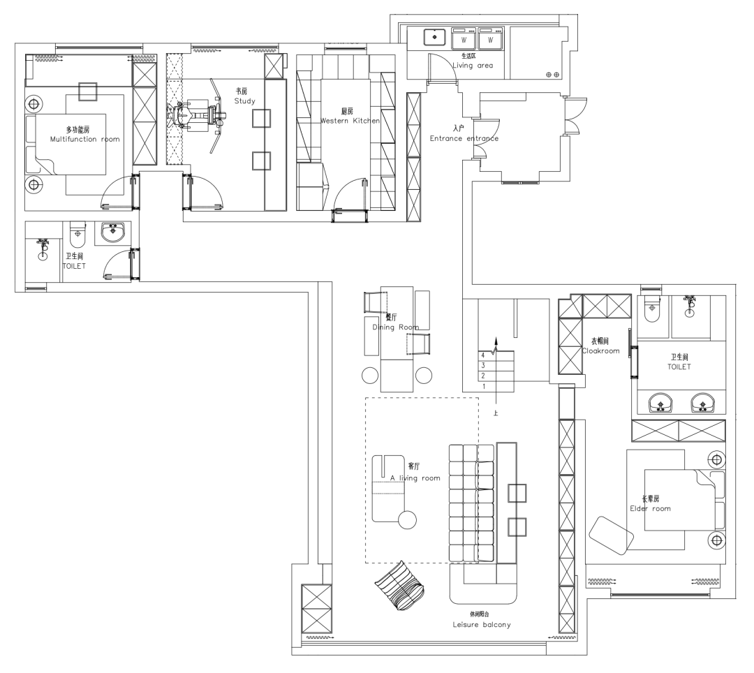
△ 左右滑动查看一楼平面图

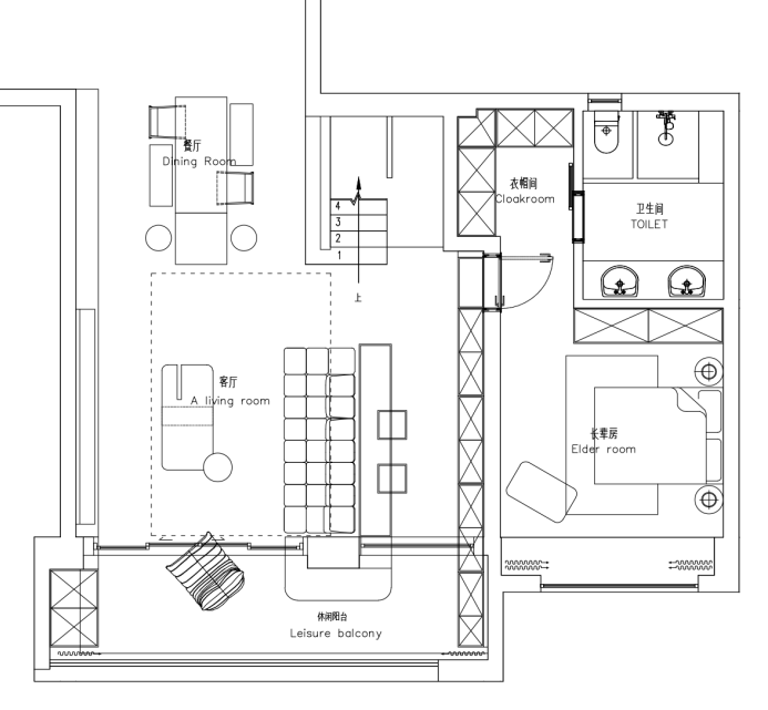
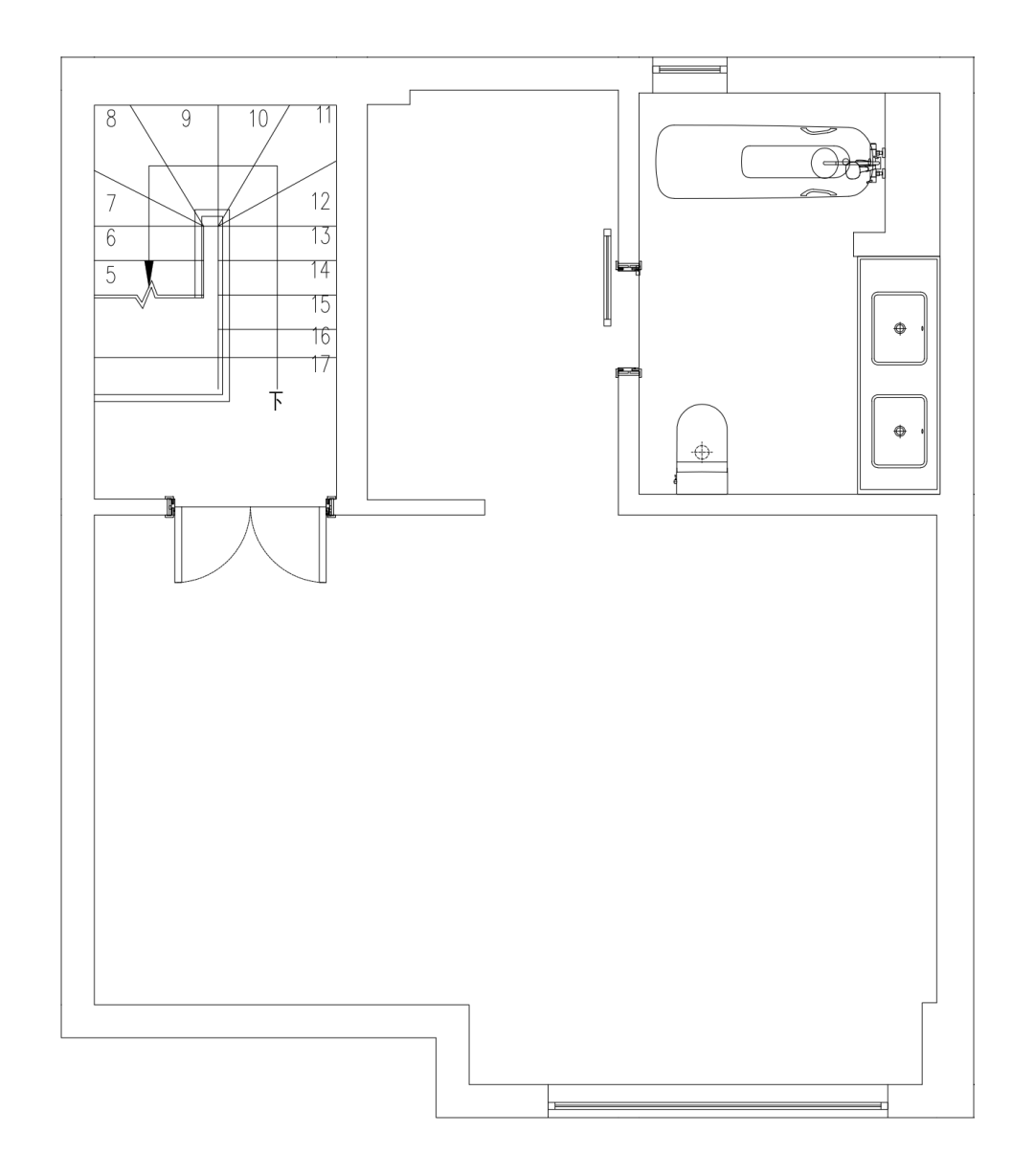
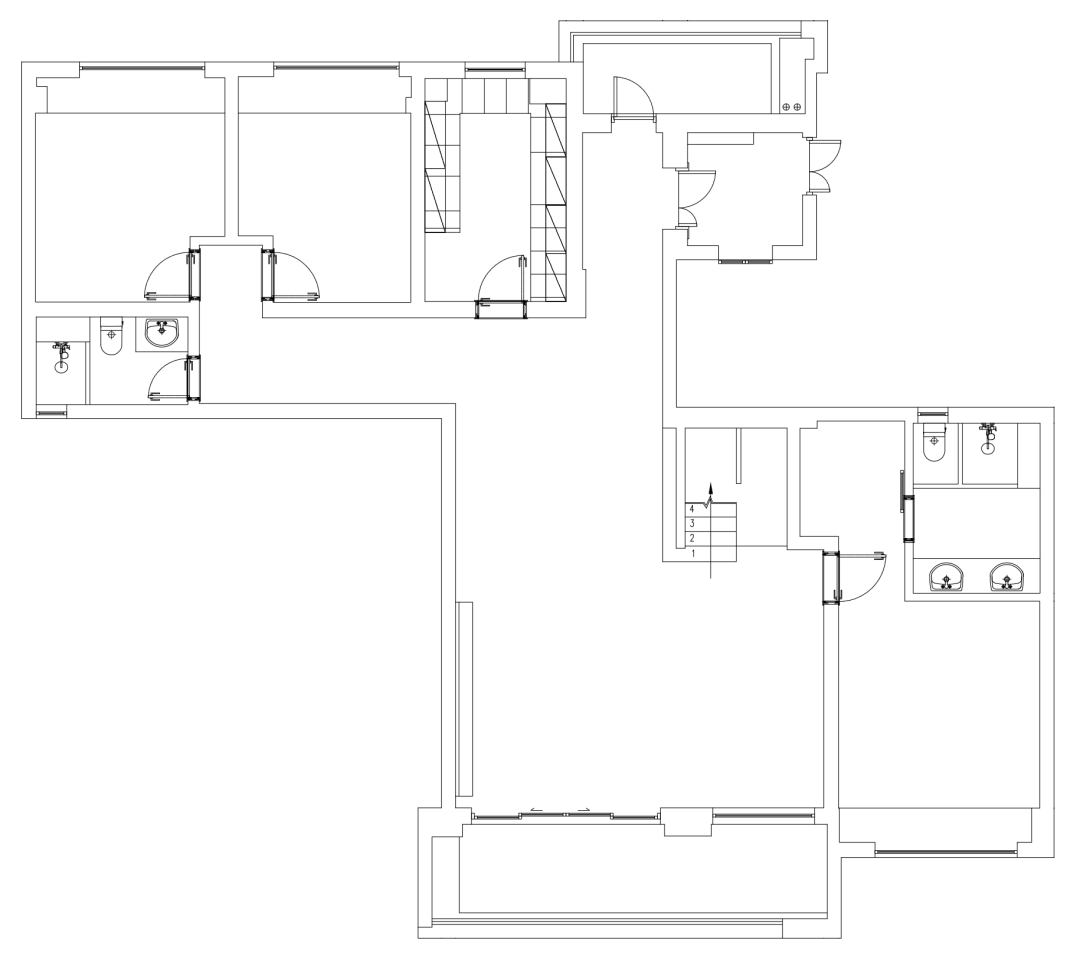
△ 左右滑动查看二楼平面图
屋主夫妇对轻法式生活的喜爱,让TA们在拥有房子的那一刻,就敲定了自己心中所钟意的法式复古风基调。
和谐温柔的色调,恰到好处又不繁复的装饰线条,中古家具、壁炉、罗马柱……每一个与经典复古所贴合的元素都构成了这个家简约又富有腔调的特点。
此外,明确的公区与卧室收纳需求、兴趣爱好及爱宠的独立空间也一并在这个家中被贴心考量,让新家成为小夫妻随性生活的理想住宅。

△ 标红部分为客厅拆改墙体
在屋主看来,客厅是与家人、朋友围炉而坐最能让人感到舒适与放松的地方。为最大程度享受阳光带来的慵懒感,满足公区收纳需求,设计师将阳台与客厅整体打通,打造了一个视野极佳的落地窗。
颇具装饰感的罗马柱延伸在天花板,搭配电视背景墙石洞样的小壁炉,一气呵成演绎着法式浪漫风情,格调拉满的同时又不显突兀。
电视墙与沙发背后拆除原始饰面后定制了大面积收纳柜体,封闭式柜门让整体更加干净整洁,奶白色的色彩处理也不会造成视觉压迫感。
搭配质感在线的黑色大钢牙沙发和实木书桌,连同异形落地灯和单椅一起,创造了家中值得反复品味的景观。
餐区实木质感餐桌与岛台组合形成了空间具有分量感的存在,造型各异的四把餐椅和球形吊灯,中和了整个区域的色彩与材质,避免了视觉失衡的问题。
长桌不仅可以用来日常饮食和家人聚餐,还可以变身办公桌、烘焙台和阅读桌,两人同用也不会感到局促,等未来有孩子,这里也是辅导功课、玩乐的好去处。
一旁连接二楼私区的楼梯处,我们拆除了侧墙和第一级梯步解决了原始楼梯空间面积浪费的问题,同时在楼梯下方还为家里的狗狗留出了一角休息区。
整体楼梯配色采用与邻近墙体相近的木质调美化,让空间较好地凝聚为一体,配上艺术挂画颇具韵味。
小狗可以:只有我和哈利波特住在楼梯下!
主卧犹如家中的秘境,是更为隐秘的地带,在色调和风格上更为浓郁。床体选择的是简洁的落地款式,无论是墙壁的雕花线条还是顶部的花盘设计,都为空间增添了法式情趣。

面积宽绰的卧室格局,让衣帽间有了容身之地,另外这里还增设了一个浪漫小吧台做隔断来区分两块功能区,精巧的设计被当作夜晚小酌、阅读的场所享受或作为女主人日常的梳妆台都是不错的选择~
对于屋主来说,相比于高度同质化和模板化的风格,融入喜好和品味的家,能让人随意又自如的生活,才是自己的心之所向。
我们始终相信家的治愈力除了设计上的构思,更在于屋主对家长此以往的点滴热爱。
最新评论
在线客服
官方微信
联系电话
返回顶部