263人已浏览 时间 : 2023-10-07 17:16:13
导语:△平面规划(红色为拆除墙体)本案屋主是一家五口,父母与之同住,孩子正处在成长的关键阶段,空间的布局除了日常所具备的基…
悦蓉东方 | 192㎡ | 四室两厅
精装全案设计

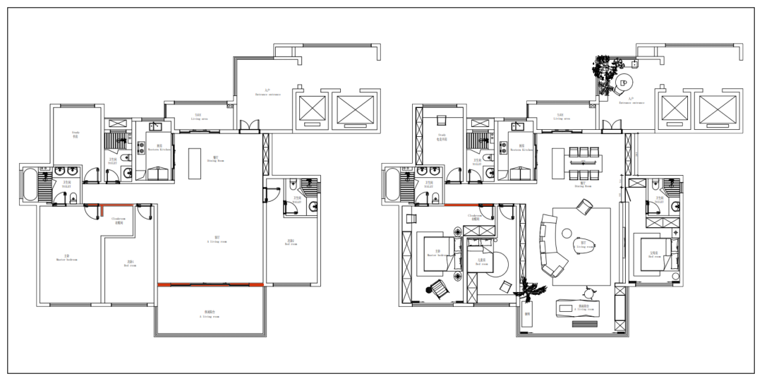
△ 平面规划(红色为拆除墙体)
本案屋主是一家五口,父母与之同住,孩子正处在成长的关键阶段,空间的布局除了日常所具备的基础功能外,还需兼顾孩子的学习,兴趣爱好等空间。
悦蓉东方192原户型一户三花园,奢阔观景视野给诗意生活无限情趣,约6.4m开阔的餐客横厅,满满生活仪式感,但在室内动线上有所遮挡,约3米进深6.4米超大景观阳台,拥览四季变化,收纳功能却较为缺乏。
了解屋主家庭情况与房屋现场情况后,在精装房已有的基础上,通过不同材质的运用和空间元素的搭配,打造真正意义上的景观大宅。
客厅原始结构会导致移动动线受阻和软装搭配受限,设计师将沙发和电视墙的位置对调,电视墙与餐厅、入户相连接,增加了空间的互动性与功能性,超强的纵深感,给人带来视觉的放松。
电视墙选择木色为基础色调搭配奢石点缀,在细节处采用凹凸肌理,让空间在多种材质的碰撞下产生不一样的视觉感受。
异形沙发的加入让客厅空间布局更加饱满,足够大的沙发可以满足不同的坐姿需求,也可以实现更多的互动场景,搭配一个单椅,让空间更有错落感的同时也增加了就坐位置。
沙发背后的设计暗藏了设计师的巧思,将展示柜与书柜结合,实现功能与视觉美观共存,不仅可以用于日常书籍存放,也可以作为收藏品的展示。
阳台不再仅仅只局限于阳台,而是赋予更多的功能与定位。将阳台与客厅打通,以LDK形式进行多空间组合,使空间之间互相联通彼此渗透。
顶部的设计格外特别,木质元素与水波纹材质相呼应,在光线的折射下,波光粼粼,犹如海中波浪,下方摆放茶桌,闲来无事喝喝小茶,惬意生活。
除了氛围感,功能性也非常重要,将孩子需要练习的钢琴摆放在阳台与客厅的交界处,圆弧形植物端景陪伴在侧,窗外景色尽收眼底。
对侧采用镂空的方式定制家政收纳柜,用百叶做窗帘,通过调节折页来实现不同的光影氛围,为屋主保留采光并形成新的室内端景。
入户区域与餐厅合并,三种不同形式的柜体加入让餐边柜有了新的定义。
它可以是用于隐藏闲置物品的悬浮收纳柜,可以是点缀空间摆放艺术品的装饰台面,也可以是屋主的私人收藏展示空间,一物饰三角,功能性被运用到了极致。
搭配极具透光性的亚克力餐椅,“一柔一刚”的材质碰撞,让空间更加轻盈,光影的折射是餐厅最好的点缀。
设计师针对户型结构,准备了两版主卧重塑方案:
第一版方案是将书房与卧室打通,扩大使用面积,增加独立的衣帽间。
第二套方案是拆除原本衣帽间的墙体,把房门向右平行移动,优化了主卧动线和主卧格局的统一性。
本案屋主希望保留书房,后期更改为电竞房,所以选择了第二版方案。
△ 主卧室平面方案对比
卧室作为夫妻两的独享空间,希望将这里打造成她们的逃离空间。套间格局清晰明了,从区域划分为三个部分:睡眠区域,休闲区域与功能区域。
落地窗旁摆放着单人沙发椅,天气正好的时候,打开窗帘,倚靠在椅子上,听着音乐,看着书,将所有的疲惫与烦闷抛掷脑后,这一刻,所有都与“我”不在相关。
床头背景墙选择木色覆盖,形成视觉连贯,大大提升了空间质感,呈现出宁静与平和的舒适氛围。
床头与床尾对调,将床头背景与进门衣柜以圆弧形相连接,有效遮挡进门视线,围合形态给睡眠时提供了满满的安全感。
红色背板的加入,如同Christian Louboutin的经典红底鞋,半隐半现的艳丽,最为性感。
床尾设置满墙衣柜,一门到顶的隐藏收纳与展示收纳相结合,同时定制与梳妆柜一体化,满足卧室更多元化的使用功能。
在这里镜与柜自身便是一处景色,有效的弱化了空间界限,虚实相交,于表于里皆有其效。
家,没有既定的风格与属性,唯独与居住者的审美,经历相关。
我们一直在探索空间更多的可能性,希望将美好生活美好家带给每一位屋主,实现无论是空间视觉还是居住感受的极致化。
……
最新评论
在线客服
官方微信
联系电话
返回顶部