369人已浏览 时间 : 2023-12-29 17:02:13
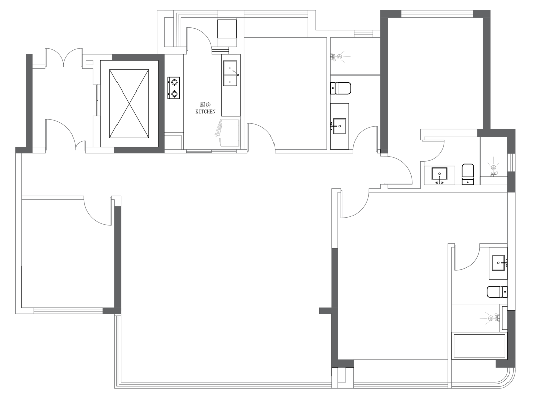
导语:△平面规划图对于住宅来说,人与空间统一才能融合为一个松弛且极具意义的家,“互动性”是我们在与屋主沟通过程中反复被提及…
招商时代公园 | 191㎡ | 四室两厅三卫
精装房改造设计


△ 平面规划图
对于住宅来说,人与空间统一才能融合为一个松弛且极具意义的家,“互动性”是我们在与屋主沟通过程中反复被提及的词语,如何在有限的空间结构中,搭建出多元化的家庭互动场景是本次设计的关键。
原始功能区域划分较为独立,若采用常规的横厅布局,行动路线的占比势必会增加,互动性便会随之减少,设计师选择打破各自空间的定义,将客、餐以及阳台进行整合处理,赋予公区崭新的功能组成,重新构建空间与人的沟通纽带。
将阳台纳入客厅后,公区形成开放式布局,纵向的延展拉伸了整个空间的尺度,视野上的通透感让居住在此的家人们心境更加豁然开朗。
电视墙作为入户的第一视觉,在原有风格基础上,下方增加奢石地台与氛围感十足的壁炉,打造出满满的归家仪式感,灵活可移动的画境电视,无论是吃饭还是聚会都可尽情享受观影带来的乐趣。
右侧的洞洞板设计满足动手乐趣的同时增添空间的可变性,搭配线性灯带的点缀,让功能与视觉在这里得到了完美的展现。
阳台一侧与电视墙链接,不同材质的碰撞,搭建出了室内的平衡之美,作为亲子阅读区,开放格的设计可以更加方便书籍的拿取,休息日时,女主人可以带着小朋友在此地翻阅绘本,体验亲子时光。
沙发的选择尤为重要,不仅需要为观影提供舒适的坐感还需兼顾阅读区的陪伴使用,北极熊沙发的多面都可入坐恰好满足,无论是坐着还是躺着,大白熊的怀抱都能让人消除疲惫,瞬间放松。
用餐区选择了“大餐大岛”的组合形式,与其他功能区域自然相连,消除了空间与空间之间的独立性,将美食与生活串联。
同时,为了丰富用餐区的功能,设计师在岛台嵌入电磁炉,简单的烹饪不再需要单独进入厨房,在这里不仅可以与朋友随时畅聊人生,还可以在准备美食的期间,与家人进行亲密的交流与互动。
岛台与桌面采用了与原始地面相近的大地色石纹,保证了用餐区与整体空间的高度统一,灯光部分,选择了具有造型特点的葫芦吊灯,不仅照亮空间,还为用餐环境带来温馨的氛围。
黑色与木质藤编搭配的餐椅,是餐厅的点睛之笔,深浅不一的颜色组合,给予了餐厅不一样的美学表现力,让就餐不再单一。
原本的餐厅背景墙是咖色的护墙板,缺乏功能性,设计师通过了解屋主的生活习惯,利用全屋定制,打造出同时具备多种使用场景的功能区域。
隐藏式的收纳柜+开放格,及可以满足屋主的大胃王式的囤货需求,也可以放置收藏的纪念品与手办,嵌入式的蒸烤箱,则是巧妙的和中西厨形成了完整的烹饪系统,在这里空间的利用被运用到了极致。
主卧纯粹且极具设计感,简约而不简单,进门处衣柜的圆弧设计,展现了功能与美学的结合,柔和了推门而入的视觉体验,L型的衣柜布局,最大化的满足了女主人的收纳需求,再也不用担心美美的衣服无处安放。
休息区与衣帽区之间的空间太过空旷,设计师将床头设置成一体式屏风+梳妆台的组合形式,增加睡眠时的包裹感,同时为女主人提供了日常梳妆的区域,圆弧的造型体现了慵懒与舒适的氛围,让男女主人可以拥有松弛且放松的休憩之地。
:
生活的冷暖并不取决于空间的大小与色彩,而是家人之间的远近。在有限的空间里,打破常规布局,实现更多的互动场景,让家不再是单一的休憩之所,更是灵魂的停泊之地。
最新评论
在线客服
官方微信
联系电话
返回顶部