379人已浏览 时间 : 2023-12-29 17:04:20
导语:❶"本期屋主是一对对生活有着无限的热忱的新婚夫妻。这座房龄20年的房屋曾是屋主爷爷奶奶的住所,装修有10多年了,房子承载了一家人满满的幸福时光。房子南北通透,前院有小花园,是天然的窗景,只是对于小两口来说,现有的空间分隔和风格不甚理想,没有独立的玄关,…
中华家园西区
152㎡ | 旧房改造 | 3室2厅2卫
❶"
本期屋主是一对对生活有着无限的热忱的新婚夫妻。这座房龄20年的房屋曾是屋主爷爷奶奶的住所,装修有10多年了,房子承载了一家人满满的幸福时光。
房子南北通透,前院有小花园,是天然的窗景,只是对于小两口来说,现有的空间分隔和风格不甚理想,没有独立的玄关,餐厨空间拥挤,收纳空间不足,二楼公区几乎无采光。设计师根据二人当下及未来的生活习惯和喜好,重新进行空间划分,让家的幸福继续传承。
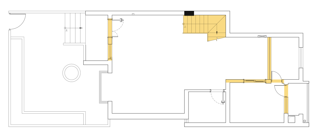
❷"


一楼改造前后平面图
❶ 改变楼梯方向,让出更宽的电视墙空间,并通过楼梯自然划分客餐空间;
❷ 室外玄关包入室内,增加储物;
❸ 打开原始厨房和生活阳台,依托承重墙打造餐岛一体和开放厨房。

二楼改造前后平面图
❶ 保留三个卧室,原始主卫和客卫合并,改为宽敞的双台盆三分离浴室;
❷ 次卧阳台封窗作为猫屋;
❸ 儿童房一体化定制,满足全年龄阶段收纳需求。
❸"
°入户玄关
当代年轻人深知独立玄关的重要性,这里不仅承担了诸多的实用功能,更是家与外界的缓冲带,承载了归家的仪式感。
在不破坏客厅方正格局的前提下,我们将入户外玄关包进室内,并且拆掉了隔墙和小窗,用落地窗扩大采光面积增加光线,形成独立门厅。
°客厅
进入客厅后,最大的改动在与楼梯方向和造型的改变,楼梯侧面作为更现代的影壁,避免了入户们直对楼梯,为室内增添安全感,也为电视墙让出更开阔的空间。
透明扶手保证了上下楼的安全性,也不遮挡从南向窗子照入的阳光。
改造前后对比
透明扶手
客厅拥有外延的落地窗,采光极好,全白墙壁让空间更为开阔,但绝不会无聊。
带有弧度的墙面让线条更为多元,黑色沙发和黑色线条灯为整个空间画上了重点,经典耐看的韩式中古风,是女主人在多个风格中反复纠结后的选择。
所有的色彩都出现在软装中,方便随心更换,让家常住常新。其中最特别的是男女主人亲自绘制的画作,用色大胆明晰,作为新家的装点再合适不过。
改造前后对比
°餐厨
屋主日常烹饪时间较少,所以餐厨位置打掉了原始的厨房墙体改为开放式厨房,不仅让去往阳台的动线更为流畅,也解决了原始客餐厅面积比重失调的感觉。
原始的小窗拓宽为落地推拉门,让阳光更好的投入室内。搭配长虹玻璃增加视觉隐私,只见绿意,不见杂乱。
改造前后对比
用餐区通过定制柜作为墙体的“加宽”让餐桌稳稳的靠在墙面,增加轨道插座,方便冬日的火锅或者干脆边吃饭边看剧时给手机和平板充电。
°主卧室
二楼主卧原本的卫生间被并入次卫中,门洞封闭后解决了卫生间门直对的问题,可以顺畅的将床头调换位置,放在风景采光都更好的一侧。
床头背景墙也贯彻了轻硬装重软装的模式,通过简单的墙面起伏,让装饰效果和软装聚焦度都得到大幅提升。
改造前后对比
床边风景
床尾全墙定制衣柜和梳妆台,沿用白色打底、黑色+胡桃木点缀的色彩搭配原则,绿意盎然的窗景是这一区域最好的点缀。

改造前后对比
°猫卧室
猫卧室实际是供客人留宿的小次卧,原始户型中,虽然有阳台,但小窗小门导致采光非常差,浪费阳台景色,我们通过封窗与门窗合并来解决采光问题。
次卧阳台在门厅正上方,快乐的落地窗区域留给喜欢登高望远的猫咪提供再合适不过,铲屎官们不在家的时候,猫咪可以独立欣赏小区绿化,怀念以前小区里流浪但自由的日子(笑)。
改造前后对比
°卫生间
一楼和二楼的卫生间风格基本一致,受限于面积,一楼卫生间只做了简单的隔断,二楼则在卫生间合并后拥有严格的三分离。大面积的白色墙地和玻璃材质,让两个全暗卫也能具有通透感,大砖铺贴减少缝隙,清洁起来也更加方便。
虽然目前长期居住的只有两口人,但为未来家庭成员增多和父母回归养老的情况做的提前计划,三分离是更适合的方案。

二楼卫生间未合并前
二楼卫生间改造前后对比
一楼卫生间
*
屋主相信,家的味道会随着入住时间的增加,慢慢沉淀出独属于自己的特色和风格。我们认为,家是动态的,是人内心的映射,常住常新的家背后,是时时自我迭代不断向上的人。
最新评论
在线客服
官方微信
联系电话
返回顶部